Снять ПСН 102 м²
ID 1532657
Цена
561 000 ₽/мес
Ставка
66 000 ₽ / м² / год
Площадь
102 м²
Этаж
1 из -
ИФНС
7702
агентство недвижимости
г Москва, б-р Цветной, д 30
На карте
Цветной бульвар
Описание
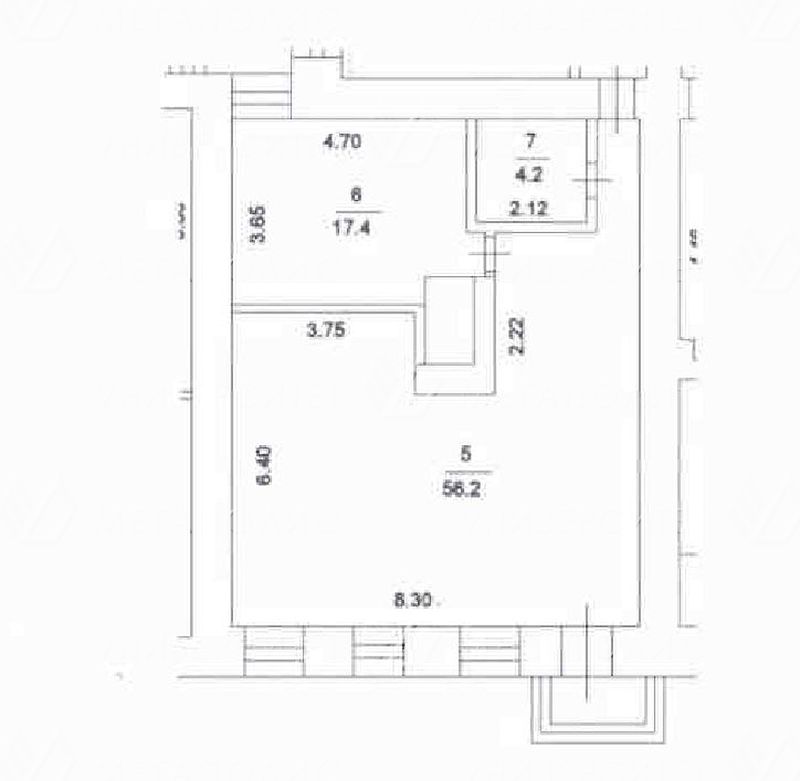
Лот №1022710 Сдается помещение свободного назначения, отдельный вход со двора. Цокольный этаж. Открытая планировка. Хороший реомнт.
Система кондиционирования. Приточно-вытяжная вентиляция, центральное отопление.
Общая площадь 102 кв.м. Парковка во довре.
Класс здания: В
Транспортная доступность:
5 минут пешком до м. "Цветной бульвар"
7 минут пешком до м. “Трубная”
8 минута пешком до м. “Сухаревская”
Освобождается с марта 2026 года.
Стоимость аренды: 66000 руб/м2/год (561000 руб в месяц) В цену включено: эксплуатационные расходы, НДС 22%. В цену не включено: затраты на электричество, коммунальные расходы, уборка.
Чтобы получить ПОДРОБНУЮ ПРЕЗЕНТАЦИЮ С ПЛАНИРОВКОЙ И ФОТОГРАФИЯМИ на этот объект, звоните. Высылаем в течение 15 минут по запросу!
☎ Конт. лицо: Дмитрий Викторович, доб. 220, ЛОТ №1022710
Система кондиционирования. Приточно-вытяжная вентиляция, центральное отопление.
Общая площадь 102 кв.м. Парковка во довре.
Класс здания: В
Транспортная доступность:
5 минут пешком до м. "Цветной бульвар"
7 минут пешком до м. “Трубная”
8 минута пешком до м. “Сухаревская”
Освобождается с марта 2026 года.
Стоимость аренды: 66000 руб/м2/год (561000 руб в месяц) В цену включено: эксплуатационные расходы, НДС 22%. В цену не включено: затраты на электричество, коммунальные расходы, уборка.
Чтобы получить ПОДРОБНУЮ ПРЕЗЕНТАЦИЮ С ПЛАНИРОВКОЙ И ФОТОГРАФИЯМИ на этот объект, звоните. Высылаем в течение 15 минут по запросу!
☎ Конт. лицо: Дмитрий Викторович, доб. 220, ЛОТ №1022710
Расположение
г Москва, б-р Цветной, д 30
Цветной бульвар
Технические характеристики
Новость дня
Все новости
Вчера — 27 апреля, понедельник / Москва
Гастропространство «НеДетский» на 630 посадочных мест открылось в Центральном детском магазине на Лубянке.
Вчера — 27 апреля, понедельник / Москва
"FORMA завершает продажу всех офисных помещений в бизнес-центре «ЛЕЙКС»"
Вчера — 27 апреля, понедельник / Москва
"Прогноз: восстановление офисного рынка Москвы ожидается к 2028 году"
Вчера — 27 апреля, понедельник / Москва
Проект строительства промышленного парка с двумя зданиями на востоке Москвы.
Вчера — 27 апреля, понедельник / Москва
Бизнес-центр площадью 22,7 тыс. кв. м открылся в Нагатинской пойме.
Вчера — 27 апреля, понедельник / Самарская
Недостроенный птицеводческий комплекс "Евробиотех" в Самарской области ищет покупателя
Вчера — 27 апреля, понедельник / Москва
"Планируется строительство восьмиэтажной автостоянки с коммерческими помещениями на 465 машиномест в Новой Москве"
Вчера — 27 апреля, понедельник / Москва
"«Монарх» приобрел участок площадью 1,36 га на территории бывшего Карачаровского механического завода"
Вчера — 27 апреля, понедельник / Москва
"Производство растительного молока от Сварщицы Екатерины"
Вчера — 27 апреля, понедельник / Москва
"Будущее магазинов Gate 31 под угрозой из-за финансовых трудностей"
Вчера — 27 апреля, понедельник / Воронежская
Название статьи: "Открытие клубов Spirit Fitness площадью не менее 1,6 тыс. кв. м в Воронеже и Липецке"
24 апреля, пятница / Москва
"Продажа бывшего офиса ПСБ на Таганке на аукционе"
24 апреля, пятница / Москва
Компания Level Group планирует создать в юго-восточной части Москвы Многофункциональный комплекс с отелем, термальным центром и спортивными объектами
24 апреля, пятница / Москва
"Более миллиона квадратных метров складских помещений доступны для использования в Московском регионе"
24 апреля, пятница / Санкт-Петербург
Инвестиции в петербургскую недвижимость уменьшились на 9% за первый квартал
24 апреля, пятница / Москва
В Бутырском районе планируют построить бизнес-центр с амфитеатром.
24 апреля, пятница / Москва
"ГК «Калашников» приобрела часть акций десяти швейных фабрик"
24 апреля, пятница / Москва
"«Восток Инвестиции» приобрел долю в 20% компании Tasty Coffee"
24 апреля, пятница / Москва
Магазин «М.Косметик» открыл свой первый филиал в Краснодарском крае, специализирующийся на товарах для дома.
24 апреля, пятница / Москва
В Тверском районе Москвы планируется создание дворцово-садового комплекса с водоемом рядом с жилым домом.