Описание
Предложение на продажу № 63290.
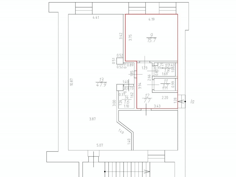
Продажа помещения свободного назначения, 250 м², Ленинградский проспект
.
. 1. Локация
. * Ленинградский проспект — главная магистраль с интенсивным трафиком
. * 1–2 мин до м. «Сокол»
. * рядом бизнес‑центры, магазины, кафе, остановки
. * постоянная аудитория: жители, офисные сотрудники, посетители
.
. 2. Характеристики
. * площадь: 250 м²
. * два входа (с проспекта и со двора)
. * достаточная мощность электросети
. * естественное освещение
. * готово к эксплуатации (без капремонта)
. * гибкая планировка
. * промышленная вытяжка (подходит для общепита)
.
. 3. Преимущества покупки
. * выгодное расположение у метро и магистрали
. * два входа — оптимизация потоков и возможность разделения пространства
. * не требует ремонта — быстрый запуск бизнеса
. * универсальность использования
. * экономия на вентиляции благодаря вытяжке
. * высокий трафик — стабильный поток клиентов
. * потенциал для сдачи в аренду или собственного бизнеса.
.
. Варианты использования
. * кафе/ресторан
. * кулинария/пекарня
. * торговый павильон/шоурум
. * офис с клиентской зоной
. * мини‑производство с точкой продаж
. * сервисный центр
.
. Для деталей и просмотра — звоните.
Торговая недвижимость, Street Retail. 1 линия домов. Ресторанная вытяжка. Витрины. Место для рекламы. Зона разгрузки. Проходное и проездное место.
Без комиссии.
Продажа помещения свободного назначения, 250 м², Ленинградский проспект
.
. 1. Локация
. * Ленинградский проспект — главная магистраль с интенсивным трафиком
. * 1–2 мин до м. «Сокол»
. * рядом бизнес‑центры, магазины, кафе, остановки
. * постоянная аудитория: жители, офисные сотрудники, посетители
.
. 2. Характеристики
. * площадь: 250 м²
. * два входа (с проспекта и со двора)
. * достаточная мощность электросети
. * естественное освещение
. * готово к эксплуатации (без капремонта)
. * гибкая планировка
. * промышленная вытяжка (подходит для общепита)
.
. 3. Преимущества покупки
. * выгодное расположение у метро и магистрали
. * два входа — оптимизация потоков и возможность разделения пространства
. * не требует ремонта — быстрый запуск бизнеса
. * универсальность использования
. * экономия на вентиляции благодаря вытяжке
. * высокий трафик — стабильный поток клиентов
. * потенциал для сдачи в аренду или собственного бизнеса.
.
. Варианты использования
. * кафе/ресторан
. * кулинария/пекарня
. * торговый павильон/шоурум
. * офис с клиентской зоной
. * мини‑производство с точкой продаж
. * сервисный центр
.
. Для деталей и просмотра — звоните.
Торговая недвижимость, Street Retail. 1 линия домов. Ресторанная вытяжка. Витрины. Место для рекламы. Зона разгрузки. Проходное и проездное место.
Без комиссии.
Расположение
г Москва, пр-кт Ленинградский, д 69 стр 1
Сокол
—
3 мин
Аэропорт
—
11 мин
Панфиловская
—
16 мин
Технические характеристики
Параметры
Статус владельца объявления
агентство
Новость дня
Расширение возможностей для B2B-клиентов: Avito вводит новые услуги для строительства складов
На платформе Авито теперь доступна категория "Коммерческое строительство" в сегменте услуг, предлагающая широкий выбор специализированных работ и возведение объектов "под ключ" для бизнеса, что упрощает поиск подрядчиков и субподрядчиков для коммерческих проектов.
Все новости
Вчера — 6 мая, среда / Москва
Рекордное количество офисных помещений введено в Москве за первый квартал текущего года.
Вчера — 6 мая, среда / Москва
"Сокращение объемов складских помещений в Московском регионе достигло 14% за первый квартал"
Вчера — 6 мая, среда / Москва
Лишь 10% жилых комплексов располагаются вблизи берега Москвы-реки.
Вчера — 6 мая, среда / Москва
Цены на отели в Москве снизились впервые за два года
Вчера — 6 мая, среда / Карачаево-Черкесская
Капиталовложения в размере 5,83 млрд рублей на развитие курорта "Альто" на Домбае от компании "Плато Девелопмент"
Вчера — 6 мая, среда / Москва
Строительство склада площадью 80 тыс. кв. м для Ozon в Пушкино будет осуществлено компанией NK Group.
Вчера — 6 мая, среда / Санкт-Петербург
«Дача Фаберже в Санкт-Петербурге будет продана на аукционе компанией «Дом.РФ»»
Вчера — 6 мая, среда / Москва
Строительство коммерческих объектов в Москве упало на 91% за год
Вчера — 6 мая, среда / Москва
Как в Москве за первый квартал 2026 года построили 5,433 тыс. кв. м офисов, готовых к адаптации.
Вчера — 6 мая, среда / Санкт-Петербург
Продуктовые сети в России увеличили свои площади в торгово-развлекательном центре Петербурга на треть за последние 6 лет.
Вчера — 6 мая, среда / Москва
С начала года в Москве получили разрешение на строительство более 130 недвижимостей.
5 мая, вторник / Москва
"Сбербанк и Альфа-банк подали в суд на производителя обоев «Артекс» с требованием объявить его банкротом"
5 мая, вторник / Красноярский
"Магазин «ВкусВилл» открыл отдел shop-in-shop в Красноярске через партнерство"
5 мая, вторник / Адыгея
Строительство жилого комплекса на территории туристического парка "Дегуакская поляна" в Адыгее начнется архитектурным проектом от "Семьи" объемом 360 тыс. квадратных метров.
5 мая, вторник / Москва
"Прогнозируется достижение рекордной площади 500 тыс. кв. м под light industrial в Московском регионе к 2026 году"
5 мая, вторник / Астраханская
Фитнес-клуб DDX Fitness открылся в Торгово-Развлекательном Центре «Ярмарка» в городе Астрахань.
5 мая, вторник / Москва
"Объем спроса на офисные помещения в Москве сократился вдвое за последний год"
5 мая, вторник / Москва
"Рост стоимости отделки офисов в Москве превышает уровень инфляции"
5 мая, вторник / Москва
В России впервые за 20 лет не было открыто ни одной новой гостиницы в первом квартале
5 мая, вторник / Москва
Спрос на услуги аренды апартаментов в Санкт-Петербурге упал на четверть.