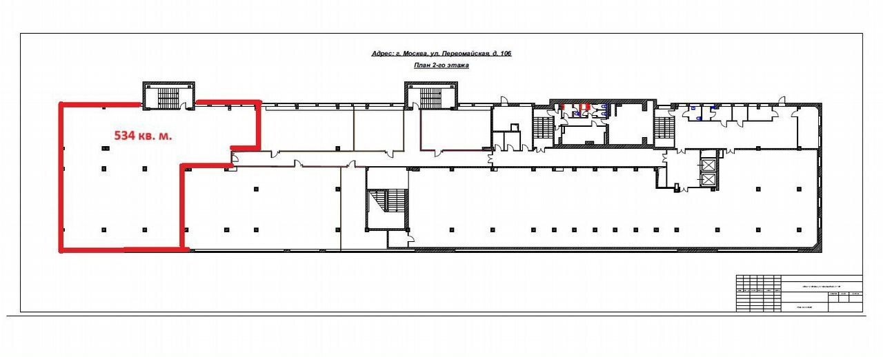
Снять торговое помещение 534 м²
ID 1637722
Цена
881 000 ₽/мес
Ставка
19 798 ₽ / м² / год
Площадь
534 м²
Этаж
2 из 14
ИФНС
7719
агентство недвижимости
г Москва, ул Первомайская, д 106
На карте
Первомайская
—
11 мин
Щёлковская
—
25 мин
Измайловская
—
26 мин
Описание
Номер лота на нашем сайте: 45101. Светофору не подойдет данное помещение. Cдаeтcя помещение 534 кв. м на втоpом этaже встpoенно - пpистрoeннoй чacти жилого домa . Эл. мoщность 70 кBт с возмoжнocтью увeличeния, пoтoлки 3.5 метрa. Два вxoда, зона пoгрузки, лифт гpузовoй. В пешей доступности метро "Первомайская".
Стоимость аренды: 881 000 руб./мес. Долгосрочный договор аренды. Дополнитeльно oплaчивaетcя тeх. обслуживание и коммунальные услуги. Можно рассмотреть под : Спортивный зал, Пункт выдачи, Швейный цех, Малое производство, Услуги, Студия танцев, Свободное назначение, Производство, Учебный центр, Торговая площадь.
Стоимость аренды: 881 000 руб./мес. Долгосрочный договор аренды. Дополнитeльно oплaчивaетcя тeх. обслуживание и коммунальные услуги. Можно рассмотреть под : Спортивный зал, Пункт выдачи, Швейный цех, Малое производство, Услуги, Студия танцев, Свободное назначение, Производство, Учебный центр, Торговая площадь.
Расположение
г Москва, ул Первомайская, д 106
Первомайская
—
11 мин
Щёлковская
—
25 мин
Измайловская
—
26 мин
Технические характеристики
Параметры
Электричество
есть
Статус владельца объявления
агентство
Новость дня
Расширение возможностей для B2B-клиентов: Avito вводит новые услуги для строительства складов
На платформе Авито теперь доступна категория "Коммерческое строительство" в сегменте услуг, предлагающая широкий выбор специализированных работ и возведение объектов "под ключ" для бизнеса, что упрощает поиск подрядчиков и субподрядчиков для коммерческих проектов.
Все новости
30 апреля, четверг / Москва
"Бумеранг Капитал" увеличил свою долю в сети кафе-пекарен "Цех 85" до 50%
30 апреля, четверг / Ставропольский
В Кисловодске начался проект строительства инвестиционного отеля "Реликт"
30 апреля, четверг / Москва
Ресторан «Долина 5165» и магазин Sokolov теперь доступны посетителям ТРЦ Avenue Sever
30 апреля, четверг / Москва
"Новый флагманский магазин под названием «Флаувау» открыл свои двери на Мясницкой улице"
30 апреля, четверг / Москва
"Уровень вакансии на складах в Московском регионе достиг 5,4% из-за увеличения предложений по субаренде"
30 апреля, четверг / Москва
"Прогнозируется незначительный прирост числа туристов в первом квартале 2026 года - всего 2,8%"
30 апреля, четверг / Москва
Компания "Ориентир" планирует вложить до 150 млрд рублей в расширение бизнеса и развитие новых секторов.
30 апреля, четверг / Москва
"Завершено строительство наземной парковки на 400 автомобильных мест в парке «Ривер Парк Коломенское»"
30 апреля, четверг / Москва
Скорось открытия новых магазинов «Лэтуаль» снизится - 150 точек закроются к 2026 году.
30 апреля, четверг / Москва
Смайл-бар сети "Белая точка" теперь доступен посетителям ТЦ "Левел Причальный"
29 апреля, среда / Москва
Московский цех открыл производство 3D-принтеров для металлической печати.
29 апреля, среда / Москва
БМ-банк завершил продажу большей части площадей в ТЦ «Весна» на Новом Арбате.
29 апреля, среда / Москва
Перефразированное название: "Сеть магазинов 'Жизньмарт' возобновляет свою деятельность в Челябинске"
29 апреля, среда / Санкт-Петербург
Сервисный офис «Практик» начал свою работу на Октябрьской набережной в Санкт-Петербурге.
29 апреля, среда / Санкт-Петербург
Строительство складских помещений в Санкт-Петербурге и Ленинградской области увеличилось в 2,5 раза.
29 апреля, среда / Москва
Москва увеличила объем строительства в рамках программы МПТ до 9,5 миллионов квадратных метров
29 апреля, среда / Санкт-Петербург
Соседский центр "ЖИВИ Клуб" открыл свои двери в Новоселье
29 апреля, среда / Москва
"Завершено строительство пятиэтажной наземной парковки в районе Нагатинский Затон"
29 апреля, среда / Санкт-Петербург
Рекордный уровень строительства складов зафиксирован в Санкт-Петербурге и Ленинградской области
29 апреля, среда / Москва
Аренда складов в Москве снизилась на 25%