Описание
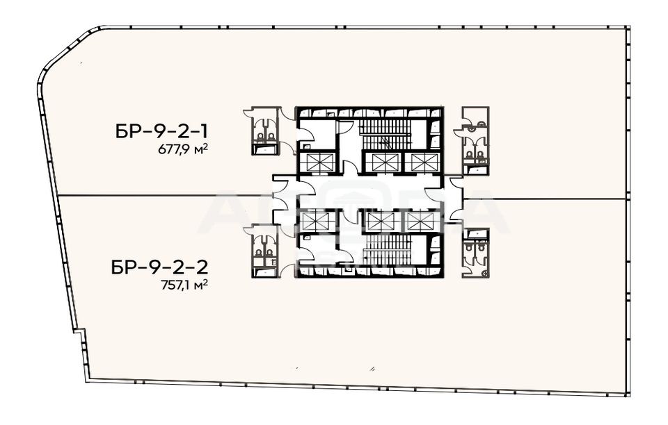
Номер объекта: 550075. Продажа офиса в новом БЦ класса А, в 5 минутах пешком от м.Тульская. Площадь офиса 757,1 м2. Офис занимает половину 9-го этажа новой Башни Рябов на территории Товарищества Рябовской мануфактуры (на плане этажа - блок БР 9-2-2). Планировка свободная. Высота потолков 3,7 м. Панорамное остекление обеспечивает высокий уровень освещенности офиса. Наличие мокрой зоны с выведенными коммуникациями для обустройства кухни и с/у.
Офис подходит для размещения представительского офиса.
Башня Рябов – 13-ти этажное здание с современной инженерией, центральными коммуникациями, высокоскоростными лифтами. Наземная бесплатная парковка на 300 машиномест. Общая площадь бизнес-центра Башня Рябов 23 000 м2, арендопригодная площадь - 16 000 м2. Есть 3-х уровневый подземный паркинг на 150 м/м.
Деловой квартал Товарищество Рябовской Мануфактуры - это деловой и творческий кластер общей площадью более 55 000 м2, в состав которого входят 16 зданий переменной этажности. Среди арендаторов делового квартала – офисы, кафе и рестораны, шоу-румы одежды и мебели, мастерские и сервисный центр, салоны красоты и тату-салоны, интернет-магазины, логистическая компания, отель и т.д.
В ближайшем окружении находятся новые ЖК премиум и бизнес-класса, такие как Deco Residence, Данилов дом, Павелецкая Сити, ЖК Зиларт, ЖК Донской Олимп. Университеты, расположенные рядом - РЭУ им. Плеханова, Школа Дизайна, Институт экономики и бизнеса.
БЦ Башня Рябов вводится в эксплуатацию - 4 кв. 2026 г.
Объект № 550075
Офис подходит для размещения представительского офиса.
Башня Рябов – 13-ти этажное здание с современной инженерией, центральными коммуникациями, высокоскоростными лифтами. Наземная бесплатная парковка на 300 машиномест. Общая площадь бизнес-центра Башня Рябов 23 000 м2, арендопригодная площадь - 16 000 м2. Есть 3-х уровневый подземный паркинг на 150 м/м.
Деловой квартал Товарищество Рябовской Мануфактуры - это деловой и творческий кластер общей площадью более 55 000 м2, в состав которого входят 16 зданий переменной этажности. Среди арендаторов делового квартала – офисы, кафе и рестораны, шоу-румы одежды и мебели, мастерские и сервисный центр, салоны красоты и тату-салоны, интернет-магазины, логистическая компания, отель и т.д.
В ближайшем окружении находятся новые ЖК премиум и бизнес-класса, такие как Deco Residence, Данилов дом, Павелецкая Сити, ЖК Зиларт, ЖК Донской Олимп. Университеты, расположенные рядом - РЭУ им. Плеханова, Школа Дизайна, Институт экономики и бизнеса.
БЦ Башня Рябов вводится в эксплуатацию - 4 кв. 2026 г.
Объект № 550075
Расположение
г Москва, пер Холодильный, д 3 к 1 стр 1
Тульская
—
3 мин
Технические характеристики
Параметры
Охрана
есть
Инженерия
кондиционер, лифт
Статус владельца объявления
агентство
Класс
a
Параметры помещения
Высота потолков
—
Новость дня
Расширение возможностей для B2B-клиентов: Avito вводит новые услуги для строительства складов
На платформе Авито теперь доступна категория "Коммерческое строительство" в сегменте услуг, предлагающая широкий выбор специализированных работ и возведение объектов "под ключ" для бизнеса, что упрощает поиск подрядчиков и субподрядчиков для коммерческих проектов.
Все новости
30 апреля, четверг / Москва
"Бумеранг Капитал" увеличил свою долю в сети кафе-пекарен "Цех 85" до 50%
30 апреля, четверг / Ставропольский
В Кисловодске начался проект строительства инвестиционного отеля "Реликт"
30 апреля, четверг / Москва
Ресторан «Долина 5165» и магазин Sokolov теперь доступны посетителям ТРЦ Avenue Sever
30 апреля, четверг / Москва
"Новый флагманский магазин под названием «Флаувау» открыл свои двери на Мясницкой улице"
30 апреля, четверг / Москва
"Уровень вакансии на складах в Московском регионе достиг 5,4% из-за увеличения предложений по субаренде"
30 апреля, четверг / Москва
"Прогнозируется незначительный прирост числа туристов в первом квартале 2026 года - всего 2,8%"
30 апреля, четверг / Москва
Компания "Ориентир" планирует вложить до 150 млрд рублей в расширение бизнеса и развитие новых секторов.
30 апреля, четверг / Москва
"Завершено строительство наземной парковки на 400 автомобильных мест в парке «Ривер Парк Коломенское»"
30 апреля, четверг / Москва
Скорось открытия новых магазинов «Лэтуаль» снизится - 150 точек закроются к 2026 году.
30 апреля, четверг / Москва
Смайл-бар сети "Белая точка" теперь доступен посетителям ТЦ "Левел Причальный"
29 апреля, среда / Москва
Московский цех открыл производство 3D-принтеров для металлической печати.
29 апреля, среда / Москва
БМ-банк завершил продажу большей части площадей в ТЦ «Весна» на Новом Арбате.
29 апреля, среда / Москва
Перефразированное название: "Сеть магазинов 'Жизньмарт' возобновляет свою деятельность в Челябинске"
29 апреля, среда / Санкт-Петербург
Сервисный офис «Практик» начал свою работу на Октябрьской набережной в Санкт-Петербурге.
29 апреля, среда / Санкт-Петербург
Строительство складских помещений в Санкт-Петербурге и Ленинградской области увеличилось в 2,5 раза.
29 апреля, среда / Москва
Москва увеличила объем строительства в рамках программы МПТ до 9,5 миллионов квадратных метров
29 апреля, среда / Санкт-Петербург
Соседский центр "ЖИВИ Клуб" открыл свои двери в Новоселье
29 апреля, среда / Москва
"Завершено строительство пятиэтажной наземной парковки в районе Нагатинский Затон"
29 апреля, среда / Санкт-Петербург
Рекордный уровень строительства складов зафиксирован в Санкт-Петербурге и Ленинградской области
29 апреля, среда / Москва
Аренда складов в Москве снизилась на 25%