Снять офис 2915 м² в ш Киевское
Описание
Предлагаем в аренду офис на 243 - 647 сотрудников в бизнес-центре "КомСити".
Разработаем планировку под вашу команду бесплатно с неограниченными правками.
Площадь: 2 915 м².
Состояние: готов к въезду.
Арендная плата: 8 901 933 руб./мес.
Ставка: 36 646 руб./м²/год (включая эксплуатацию).
Налогообложение: включая НДС.
Коммунальные расходы: оплачиваются по факту.
Тип аренды: Прямая аренда.
Этаж: 2, 3 из 7.
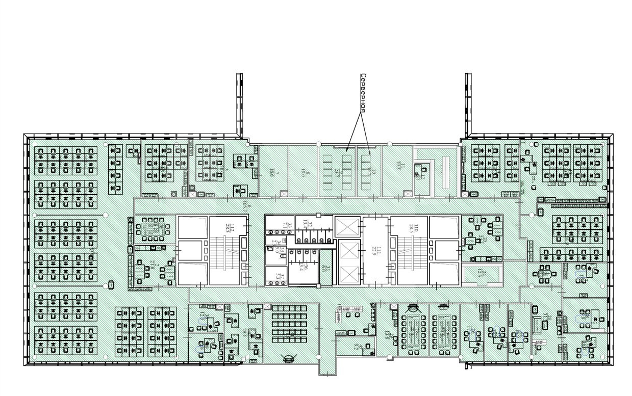
Помещение с функциональной смешанной планировкой. Переговорные комнаты, собственные санузлы, обустроенная кухня, зона руководителя, панорамный вид, с мебелью.
Вентиляция: приточно-вытяжная.
Кондиционирование: центральное.
Охрана: круглосуточная охрана здания.
Пожарная сигнализация: спринклерная система.
КомСити — бизнес-центр класса А. Территория комплекса включает благоустроенное зелёное пространство с разнообразными деревьями, кустарниками и цветами, пешеходными дорожками, оригинальными скамейками и фонтанами. В план развития инфраструктуры входит обустройство территории Тропарёвского лесопарка. Ближайшая станция метро — Румянцево, удобный выезд на Киевское шоссе и МКАД.
Предусмотрена наземная парковка на 927 мест и подземная на 2600. Инфраструктура бизнес-парка включает столовую, кафе, ресторан, продуктовый магазин, трёхзвёздочную гостиницу с конференц-центром, спортивную площадку, фитнес-центр с бассейном и детский сад. Бизнес-центр оборудован современными инженерными системами и 8 пассажирскими лифтами. Юридические адреса обслуживаются в налоговой №29.
Звоните или пишите в чат - организуем просмотр в день обращения и направим презентацию по объекту.
Этот лот состоит из нескольких помещений: 1315 кв. м. и 1600 кв. м.
Бесплатно разработаем планировку под вашу команду, рассчитаем оптимальную рассадку и зонирование.
*Количество рабочих мест рассчитано автоматически: от 4,5 до 12 м² на человека.
ID объекта: 037139
Разработаем планировку под вашу команду бесплатно с неограниченными правками.
Площадь: 2 915 м².
Состояние: готов к въезду.
Арендная плата: 8 901 933 руб./мес.
Ставка: 36 646 руб./м²/год (включая эксплуатацию).
Налогообложение: включая НДС.
Коммунальные расходы: оплачиваются по факту.
Тип аренды: Прямая аренда.
Этаж: 2, 3 из 7.
Помещение с функциональной смешанной планировкой. Переговорные комнаты, собственные санузлы, обустроенная кухня, зона руководителя, панорамный вид, с мебелью.
Вентиляция: приточно-вытяжная.
Кондиционирование: центральное.
Охрана: круглосуточная охрана здания.
Пожарная сигнализация: спринклерная система.
КомСити — бизнес-центр класса А. Территория комплекса включает благоустроенное зелёное пространство с разнообразными деревьями, кустарниками и цветами, пешеходными дорожками, оригинальными скамейками и фонтанами. В план развития инфраструктуры входит обустройство территории Тропарёвского лесопарка. Ближайшая станция метро — Румянцево, удобный выезд на Киевское шоссе и МКАД.
Предусмотрена наземная парковка на 927 мест и подземная на 2600. Инфраструктура бизнес-парка включает столовую, кафе, ресторан, продуктовый магазин, трёхзвёздочную гостиницу с конференц-центром, спортивную площадку, фитнес-центр с бассейном и детский сад. Бизнес-центр оборудован современными инженерными системами и 8 пассажирскими лифтами. Юридические адреса обслуживаются в налоговой №29.
Звоните или пишите в чат - организуем просмотр в день обращения и направим презентацию по объекту.
Этот лот состоит из нескольких помещений: 1315 кв. м. и 1600 кв. м.
Бесплатно разработаем планировку под вашу команду, рассчитаем оптимальную рассадку и зонирование.
*Количество рабочих мест рассчитано автоматически: от 4,5 до 12 м² на человека.
ID объекта: 037139
Расположение
г Москва, км Киевское шоссе 22-й (п Московский), д 6 стр 1
Румянцево
—
6 мин
Саларьево
—
5 мин
Солнцево
—
8 мин
Тропарёво
—
35 мин
Технические характеристики
Новость дня
Все новости
24 апреля, пятница / Москва
"Продажа бывшего офиса ПСБ на Таганке на аукционе"
24 апреля, пятница / Москва
Компания Level Group планирует создать в юго-восточной части Москвы Многофункциональный комплекс с отелем, термальным центром и спортивными объектами
24 апреля, пятница / Москва
"Более миллиона квадратных метров складских помещений доступны для использования в Московском регионе"
24 апреля, пятница / Санкт-Петербург
Инвестиции в петербургскую недвижимость уменьшились на 9% за первый квартал
24 апреля, пятница / Москва
В Бутырском районе планируют построить бизнес-центр с амфитеатром.
24 апреля, пятница / Москва
"ГК «Калашников» приобрела часть акций десяти швейных фабрик"
24 апреля, пятница / Москва
"«Восток Инвестиции» приобрел долю в 20% компании Tasty Coffee"
24 апреля, пятница / Москва
Магазин «М.Косметик» открыл свой первый филиал в Краснодарском крае, специализирующийся на товарах для дома.
24 апреля, пятница / Москва
В Тверском районе Москвы планируется создание дворцово-садового комплекса с водоемом рядом с жилым домом.
24 апреля, пятница / Москва
"Компания 'Росспиртпром' находится в процессе обсуждения возможности приобретения компании Stellar Group"
23 апреля, четверг / Москва
STONE предлагает комплексный ремонт офисных помещений по цене от 85 тыс. руб. за квадратный метр.
23 апреля, четверг / Краснодарский
"Продаётся агрокомбинат «Тепличный» в Краснодаре за 2,8 млрд рублей"
23 апреля, четверг / Москва
Nike увеличил срок действия исключительных прав на свои бренды в России до 2036 года
23 апреля, четверг / Москва
Расширение площади флагманского магазина AMAZING RED в ТРЦ "Авиапарк"
23 апреля, четверг / Москва
"Магазин «Азбука вкуса» теперь работает круглосуточно в ЖК «Остров»"
23 апреля, четверг / Москва
"Появится комьюнити-центр с крышным огородом в районе Прокшино"
23 апреля, четверг / Москва
"Разработчик жилищного проекта "Дом.РФ" продал земельные участки общей площадью 175 гектаров в 24 регионах за первый квартал"
23 апреля, четверг / Москва
"Снижение инвестиций в коммерческую недвижимость России в первом квартале на 64%"
23 апреля, четверг / Татарстан
В Казани будет возведен самый просторный президентский люкс России
23 апреля, четверг / Москва
В галерее «Чкалов» появились уголки с итальянскими и паназиатскими блюдами.