Снять ПСН 228 м²
ID 1761922
Цена
758 667 ₽/мес
Ставка
39 930 ₽ / м² / год
Площадь
228 м²
Этаж
1 из -
ИФНС
7703
агентство недвижимости
г Москва, ул Большая Грузинская, д 12 стр 3
На карте
Баррикадная
—
5 мин
Краснопресненская
—
5 мин
Улица 1905 года
—
13 мин
Описание
Аренда ОСЗ 227,6 м² у м. Баррикадная (ЦАО)Расположение:
Москва ЦАО р-н Пресненский Большая Грузинская ул. 12С3
Отдельно стоящее здание (1–2 этаж) БЦ «Николаевский» класс ВТранспорт:
🚇 Баррикадная — 5 мин. пешком
🚇 Краснопресненская — 6 мин. пешком
🚇 Улица 1905 года — 17 мин. пешкомОписание помещения:
🔹 Площадь: 227,6 м²
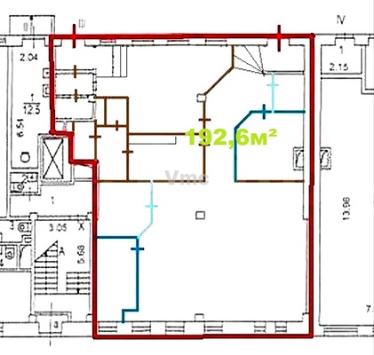
🔹 Состояние: Офисная отделка, косметический ремонт 2025 года, готов к заезду. Планировка: кабинеты 33 м², 38 м², 6 м², просторный зал более 100 м², склад, кухня, 2 санузла.
🔹 Коммуникации:
▫️ Высота потолков: 3 м
▫️ Мощность: 50 кВт
▫️ Холодное и горячее водоснабжение, канализация, отопление
▫️ Пожарная сигнализацияИнфраструктура:
✅ Наземная охраняемая парковка — 3 машиноместа (25 000 руб./место с НДС)
✅ Круглосуточная охрана, видеонаблюдение, датчики
✅ Регистрация юридического адреса (ИФНС №3)
✅ Отдельный входКлючевые преимущества:
📍 БЦ «Николаевский» в 5 минутах от метро Баррикадная в центре Москвы
⚡ Полная готовность к заезду: свежий ремонт 2025 года, офисная отделка, вся инженерия
🔄 Гибкий договор аренды от 11 месяцев до 10 летУсловия аренды:
• Коммунальные платежи: оплачиваются отдельно (коммунальные услуги, клининг)
• Тип сделки: Прямая аренда
• Обеспечительный платеж: 2 месяца арендной платы
• Минимальный срок аренды: 11 месяцевПомещение в отдельно стоящем здании бизнес-центра «Николаевский» с собственной охраняемой парковкой. Свежая офисная отделка, разнообразные кабинеты и просторный зал (более 100 м²). Возможность долгосрочной аренды до 10 лет и регистрация юридического адреса.Звоните для организации просмотра и уточнения деталей! Объект №3100-954761.
Москва ЦАО р-н Пресненский Большая Грузинская ул. 12С3
Отдельно стоящее здание (1–2 этаж) БЦ «Николаевский» класс ВТранспорт:
🚇 Баррикадная — 5 мин. пешком
🚇 Краснопресненская — 6 мин. пешком
🚇 Улица 1905 года — 17 мин. пешкомОписание помещения:
🔹 Площадь: 227,6 м²
🔹 Состояние: Офисная отделка, косметический ремонт 2025 года, готов к заезду. Планировка: кабинеты 33 м², 38 м², 6 м², просторный зал более 100 м², склад, кухня, 2 санузла.
🔹 Коммуникации:
▫️ Высота потолков: 3 м
▫️ Мощность: 50 кВт
▫️ Холодное и горячее водоснабжение, канализация, отопление
▫️ Пожарная сигнализацияИнфраструктура:
✅ Наземная охраняемая парковка — 3 машиноместа (25 000 руб./место с НДС)
✅ Круглосуточная охрана, видеонаблюдение, датчики
✅ Регистрация юридического адреса (ИФНС №3)
✅ Отдельный входКлючевые преимущества:
📍 БЦ «Николаевский» в 5 минутах от метро Баррикадная в центре Москвы
⚡ Полная готовность к заезду: свежий ремонт 2025 года, офисная отделка, вся инженерия
🔄 Гибкий договор аренды от 11 месяцев до 10 летУсловия аренды:
• Коммунальные платежи: оплачиваются отдельно (коммунальные услуги, клининг)
• Тип сделки: Прямая аренда
• Обеспечительный платеж: 2 месяца арендной платы
• Минимальный срок аренды: 11 месяцевПомещение в отдельно стоящем здании бизнес-центра «Николаевский» с собственной охраняемой парковкой. Свежая офисная отделка, разнообразные кабинеты и просторный зал (более 100 м²). Возможность долгосрочной аренды до 10 лет и регистрация юридического адреса.Звоните для организации просмотра и уточнения деталей! Объект №3100-954761.
Расположение
г Москва, ул Большая Грузинская, д 12 стр 3
Баррикадная
—
5 мин
Краснопресненская
—
5 мин
Улица 1905 года
—
13 мин
Технические характеристики
Новость дня
Все новости
Вчера — 27 апреля, понедельник / Москва
Гастропространство «НеДетский» на 630 посадочных мест открылось в Центральном детском магазине на Лубянке.
Вчера — 27 апреля, понедельник / Москва
"FORMA завершает продажу всех офисных помещений в бизнес-центре «ЛЕЙКС»"
Вчера — 27 апреля, понедельник / Москва
"Прогноз: восстановление офисного рынка Москвы ожидается к 2028 году"
Вчера — 27 апреля, понедельник / Москва
Проект строительства промышленного парка с двумя зданиями на востоке Москвы.
Вчера — 27 апреля, понедельник / Москва
Бизнес-центр площадью 22,7 тыс. кв. м открылся в Нагатинской пойме.
Вчера — 27 апреля, понедельник / Самарская
Недостроенный птицеводческий комплекс "Евробиотех" в Самарской области ищет покупателя
Вчера — 27 апреля, понедельник / Москва
"Планируется строительство восьмиэтажной автостоянки с коммерческими помещениями на 465 машиномест в Новой Москве"
Вчера — 27 апреля, понедельник / Москва
"«Монарх» приобрел участок площадью 1,36 га на территории бывшего Карачаровского механического завода"
Вчера — 27 апреля, понедельник / Москва
"Производство растительного молока от Сварщицы Екатерины"
Вчера — 27 апреля, понедельник / Москва
"Будущее магазинов Gate 31 под угрозой из-за финансовых трудностей"
Вчера — 27 апреля, понедельник / Воронежская
Название статьи: "Открытие клубов Spirit Fitness площадью не менее 1,6 тыс. кв. м в Воронеже и Липецке"
24 апреля, пятница / Москва
"Продажа бывшего офиса ПСБ на Таганке на аукционе"
24 апреля, пятница / Москва
Компания Level Group планирует создать в юго-восточной части Москвы Многофункциональный комплекс с отелем, термальным центром и спортивными объектами
24 апреля, пятница / Москва
"Более миллиона квадратных метров складских помещений доступны для использования в Московском регионе"
24 апреля, пятница / Санкт-Петербург
Инвестиции в петербургскую недвижимость уменьшились на 9% за первый квартал
24 апреля, пятница / Москва
В Бутырском районе планируют построить бизнес-центр с амфитеатром.
24 апреля, пятница / Москва
"ГК «Калашников» приобрела часть акций десяти швейных фабрик"
24 апреля, пятница / Москва
"«Восток Инвестиции» приобрел долю в 20% компании Tasty Coffee"
24 апреля, пятница / Москва
Магазин «М.Косметик» открыл свой первый филиал в Краснодарском крае, специализирующийся на товарах для дома.
24 апреля, пятница / Москва
В Тверском районе Москвы планируется создание дворцово-садового комплекса с водоемом рядом с жилым домом.