Описание
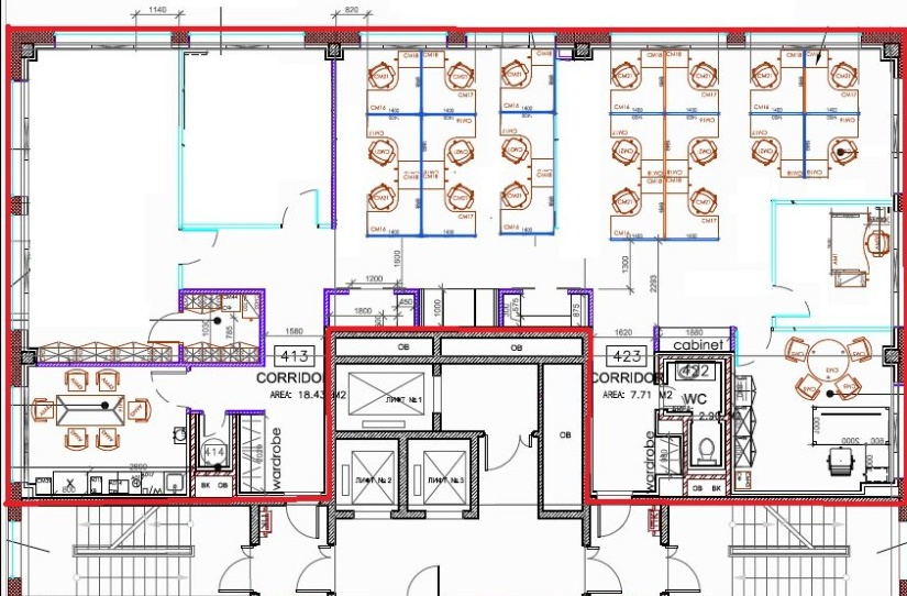
РАБОТАЕМ С АГЕНТАМИ И ПЛАТИМ! РЕНТАВИК— участник ассоциации агентств КОКОН. Бизнес-центр расположен в престижной локации Белорусского Делового Района. Удобный доступ к Садовому и Третьему Транспортному Кольцу, на 1-ю Тверскую-Ямскую улицу и на Ленинградский проспект. Презентабельная входная группа и места общего пользования. Описание помещения: Помещение включает 6 кабинетов, 2 санузла, кухню и серверную, находится в отличном состоянии и полностью меблировано.
Отдельный вход. Этаж: 4. Планировка: кабинетная ( коридорная ). Офисная отделка. Мебель. Высокие потолки. Высота потолка: 3.3м. Тип налогообложения: С НДС. Отдельно по счётчикам оплачивается электроэнергия и тепло. Налоговая: 10. Лифты: Есть. Вентиляция: Приточно-вытяжная. Кондиционирование: Центральное. Безопасность: Круглосуточный доступ, Круглосуточная охрана, Контроль доступа, Система пожаротушений, Видеонаблюдение. Провайдеры: Билайн, rinet, realcom. Парковка: Подземная, Наземная. Лот 54025-133
Отдельный вход. Этаж: 4. Планировка: кабинетная ( коридорная ). Офисная отделка. Мебель. Высокие потолки. Высота потолка: 3.3м. Тип налогообложения: С НДС. Отдельно по счётчикам оплачивается электроэнергия и тепло. Налоговая: 10. Лифты: Есть. Вентиляция: Приточно-вытяжная. Кондиционирование: Центральное. Безопасность: Круглосуточный доступ, Круглосуточная охрана, Контроль доступа, Система пожаротушений, Видеонаблюдение. Провайдеры: Билайн, rinet, realcom. Парковка: Подземная, Наземная. Лот 54025-133
Расположение
г Москва, пер 4-й Лесной, д 13
Белорусская
—
3 мин
Белорусская
—
3 мин
Белорусская
—
3 мин
Белорусская
—
3 мин
Технические характеристики
Новость дня
Все новости
Сегодня — 15 апреля, среда / Москва
"Сеть садовых центров «Лемана ПРО» расширяется с открытием нового филиала в Жуковском"
Сегодня — 15 апреля, среда / Москва
"Ozon запустил новый логистический центр в Ватутинках"
Сегодня — 15 апреля, среда / Москва
"Открытие супермаркета Eurospar в торговом центре «АФИ Галерея» на станции метро Белорусская"
Сегодня — 15 апреля, среда / Москва
"Падение спроса на коммерческую недвижимость в новостройках Москвы почти на треть"
Сегодня — 15 апреля, среда / Москва
Новый филиал Сбербанка открылся в Торгово-развлекательном центре «Щёлковский»
Сегодня — 15 апреля, среда / Москва
"Откроется сервисный офис площадью 4,5 тыс. кв. м в бизнес-центре Dubinin’Sky"
Сегодня — 15 апреля, среда / Санкт-Петербург
Сделки на складском рынке Петербурга упали на 80% в первом квартале
Сегодня — 15 апреля, среда / Москва
"Компания 'Росспиртпром' приобрела долю в 23,99% Иткульского спиртзавода в Алтайском крае"
Сегодня — 15 апреля, среда / Самарская
Сеть «Монетка» расширила свою присутствие, открыв магазины в Самаре и селах Самарской области
Сегодня — 15 апреля, среда / Москва
Падение чистой прибыли сети Rendez-Vous на 93% в 2025 году.
Вчера — 14 апреля, вторник / Санкт-Петербург
Планируется развитие культурной инфраструктуры на Ново-Адмиралтейском острове: открытие концертного зала и музея
Вчера — 14 апреля, вторник / Санкт-Петербург
Объем доступных складских площадей в Санкт-Петербурге достиг 5,8 миллиона квадратных метров
Вчера — 14 апреля, вторник / Москва
"«Авивир» переезжает в деловой квартал 'Сколково Парк' в качестве резидента"
Вчера — 14 апреля, вторник / Москва
"Производство российских микрофокусных рентгеновских устройств стартовало в ОЭЗ «Технополис Москва»"
Вчера — 14 апреля, вторник / Москва
"Рост рынка торговой недвижимости притормозил"
Вчера — 14 апреля, вторник / Москва
«Строительная компания "Галс-Девелопмент" планирует возведение первого бизнес-центра в районе "Южный порт"»
Вчера — 14 апреля, вторник / Москва
"«Роснефть» расширяет свои активы, приобретая компанию «Саянскхимпласт», специализирующуюся на производстве ПВХ"
Вчера — 14 апреля, вторник / Москва
"Первый магазин смысловой 226 открывается в пространстве Яндекс-01"
Вчера — 14 апреля, вторник / Москва
"Askona преобразует сеть магазинов в помещения размером от 600 до 1,500 квадратных метров"
Вчера — 14 апреля, вторник / Москва
Эдактируй заявку: Незавершенное производственное сооружение в Егорьевске выставлено на продажу за 152,5 миллионов рублей