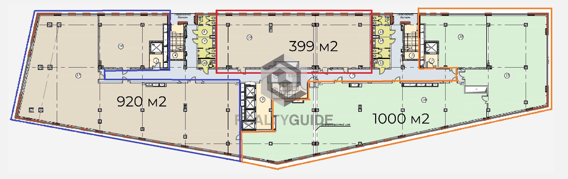
Описание
Бизнес-центр имеет удобно расположен в центре города, в 10 минутах ходьбы от метро Бауманская. К зданию можно подъехать как с Садового кольца, так и с ТТК. Также имеются выезды на набережную. Лефортовский парк находится на противоположной стороне от здания. Описание помещения: В блоке оборудована VIP-зона с кабинетом, лобби и переговорной с кухней, оснащенная премиальной мебелью и техникой. Остальное пространство включает - большую кухню, зону отдыха, отдельные кабинеты, зоны open space, переговорные, Zoom-комнаты, 4 санузла, ресепшен и серверную. Отдельный вход. Этаж: 4. Планировка: смешанная. Офисная отделка. VIP-офис. Мебель. Высокие потолки. Тип налогообложения: С НДС. Коммунальные платежи оплачиваются отдельно. Налоговая: 09. Лифты: Есть. Вентиляция: Приточно-вытяжная. Кондиционирование: Центральное. Безопасность: Круглосуточная охрана, Контроль доступа, Система пожаротушений, Видеонаблюдение. Провайдеры: . Парковка: Подземная, Наземная. Лот 87079-133
Расположение
г Москва, ул Радио, д 24 к 1
Бауманская
—
12 мин
Технические характеристики
Новость дня
Все новости
Сегодня — 15 апреля, среда / Москва
"Сеть садовых центров «Лемана ПРО» расширяется с открытием нового филиала в Жуковском"
Сегодня — 15 апреля, среда / Москва
"Ozon запустил новый логистический центр в Ватутинках"
Сегодня — 15 апреля, среда / Москва
"Открытие супермаркета Eurospar в торговом центре «АФИ Галерея» на станции метро Белорусская"
Сегодня — 15 апреля, среда / Москва
"Падение спроса на коммерческую недвижимость в новостройках Москвы почти на треть"
Сегодня — 15 апреля, среда / Москва
Новый филиал Сбербанка открылся в Торгово-развлекательном центре «Щёлковский»
Сегодня — 15 апреля, среда / Москва
"Откроется сервисный офис площадью 4,5 тыс. кв. м в бизнес-центре Dubinin’Sky"
Сегодня — 15 апреля, среда / Санкт-Петербург
Сделки на складском рынке Петербурга упали на 80% в первом квартале
Сегодня — 15 апреля, среда / Москва
"Компания 'Росспиртпром' приобрела долю в 23,99% Иткульского спиртзавода в Алтайском крае"
Сегодня — 15 апреля, среда / Самарская
Сеть «Монетка» расширила свою присутствие, открыв магазины в Самаре и селах Самарской области
Сегодня — 15 апреля, среда / Москва
Падение чистой прибыли сети Rendez-Vous на 93% в 2025 году.
Вчера — 14 апреля, вторник / Санкт-Петербург
Планируется развитие культурной инфраструктуры на Ново-Адмиралтейском острове: открытие концертного зала и музея
Вчера — 14 апреля, вторник / Санкт-Петербург
Объем доступных складских площадей в Санкт-Петербурге достиг 5,8 миллиона квадратных метров
Вчера — 14 апреля, вторник / Москва
"«Авивир» переезжает в деловой квартал 'Сколково Парк' в качестве резидента"
Вчера — 14 апреля, вторник / Москва
"Производство российских микрофокусных рентгеновских устройств стартовало в ОЭЗ «Технополис Москва»"
Вчера — 14 апреля, вторник / Москва
"Рост рынка торговой недвижимости притормозил"
Вчера — 14 апреля, вторник / Москва
«Строительная компания "Галс-Девелопмент" планирует возведение первого бизнес-центра в районе "Южный порт"»
Вчера — 14 апреля, вторник / Москва
"«Роснефть» расширяет свои активы, приобретая компанию «Саянскхимпласт», специализирующуюся на производстве ПВХ"
Вчера — 14 апреля, вторник / Москва
"Первый магазин смысловой 226 открывается в пространстве Яндекс-01"
Вчера — 14 апреля, вторник / Москва
"Askona преобразует сеть магазинов в помещения размером от 600 до 1,500 квадратных метров"
Вчера — 14 апреля, вторник / Москва
Эдактируй заявку: Незавершенное производственное сооружение в Егорьевске выставлено на продажу за 152,5 миллионов рублей