Снять ПСН 1400 м²
ID 1855020
Цена
2 419 667 ₽/мес
Ставка
20 740 ₽ / м² / год
Площадь
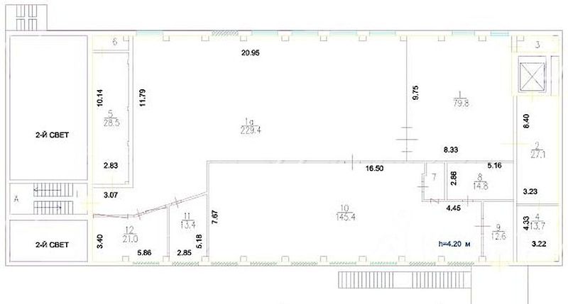
1400 м²
Этаж
1 из 2
ИФНС
7726
агентство недвижимости
г Москва, ш Варшавское, д 13Б
На карте
Верхние Котлы
—
12 мин
Тульская
—
14 мин
Описание
БЕЗ КОМИССИИ! Складской комплекс. Сдаётся под склад или производство здание целиком площадью 1400 кв.м. Стандартная отделка. Электрическая мощность 210 кВт.НДС включен. Варшавское шоссе, 13Б, 14 минут пешком от метро Тульская. ЛОТ № 247962
Расположение
г Москва, ш Варшавское, д 13Б
Верхние Котлы
—
12 мин
Тульская
—
14 мин
Технические характеристики
Новость дня
Все новости
Вчера — 24 апреля, пятница / Москва
"Продажа бывшего офиса ПСБ на Таганке на аукционе"
Вчера — 24 апреля, пятница / Москва
Компания Level Group планирует создать в юго-восточной части Москвы Многофункциональный комплекс с отелем, термальным центром и спортивными объектами
Вчера — 24 апреля, пятница / Москва
"Более миллиона квадратных метров складских помещений доступны для использования в Московском регионе"
Вчера — 24 апреля, пятница / Санкт-Петербург
Инвестиции в петербургскую недвижимость уменьшились на 9% за первый квартал
Вчера — 24 апреля, пятница / Москва
В Бутырском районе планируют построить бизнес-центр с амфитеатром.
Вчера — 24 апреля, пятница / Москва
"ГК «Калашников» приобрела часть акций десяти швейных фабрик"
Вчера — 24 апреля, пятница / Москва
"«Восток Инвестиции» приобрел долю в 20% компании Tasty Coffee"
Вчера — 24 апреля, пятница / Москва
Магазин «М.Косметик» открыл свой первый филиал в Краснодарском крае, специализирующийся на товарах для дома.
Вчера — 24 апреля, пятница / Москва
В Тверском районе Москвы планируется создание дворцово-садового комплекса с водоемом рядом с жилым домом.
Вчера — 24 апреля, пятница / Москва
"Компания 'Росспиртпром' находится в процессе обсуждения возможности приобретения компании Stellar Group"
23 апреля, четверг / Москва
STONE предлагает комплексный ремонт офисных помещений по цене от 85 тыс. руб. за квадратный метр.
23 апреля, четверг / Краснодарский
"Продаётся агрокомбинат «Тепличный» в Краснодаре за 2,8 млрд рублей"
23 апреля, четверг / Москва
Nike увеличил срок действия исключительных прав на свои бренды в России до 2036 года
23 апреля, четверг / Москва
Расширение площади флагманского магазина AMAZING RED в ТРЦ "Авиапарк"
23 апреля, четверг / Москва
"Магазин «Азбука вкуса» теперь работает круглосуточно в ЖК «Остров»"
23 апреля, четверг / Москва
"Появится комьюнити-центр с крышным огородом в районе Прокшино"
23 апреля, четверг / Москва
"Разработчик жилищного проекта "Дом.РФ" продал земельные участки общей площадью 175 гектаров в 24 регионах за первый квартал"
23 апреля, четверг / Москва
"Снижение инвестиций в коммерческую недвижимость России в первом квартале на 64%"
23 апреля, четверг / Татарстан
В Казани будет возведен самый просторный президентский люкс России
23 апреля, четверг / Москва
В галерее «Чкалов» появились уголки с итальянскими и паназиатскими блюдами.