Описание
Продажа коммерческого помещения
в Нижегородском районе Москвы! С Арендатором!
Готовый арендный бизнес
"Склад индивидуального хранения"
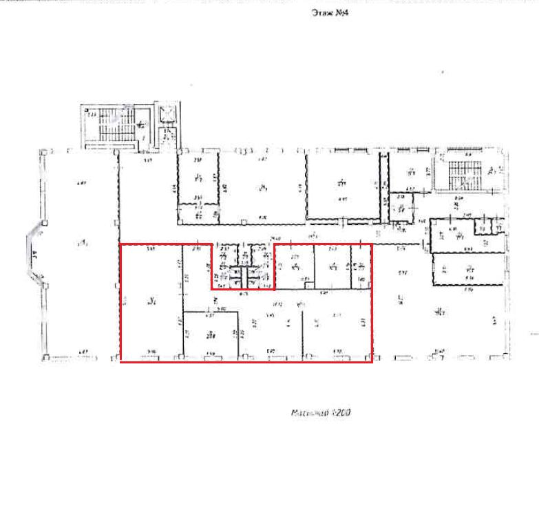
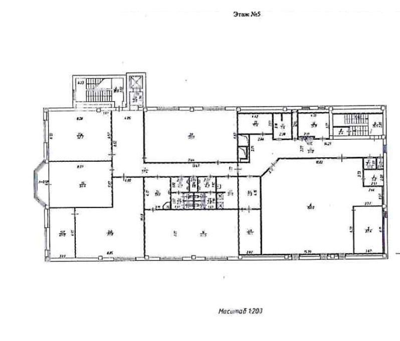
Площадь: 978,8 м2!
Арендная ставка 2 100 руб./кв.м. в месяц
Постоянная арендная плата 2 055 480 руб. в месяц
Индексация ежегодная от 8% до 12%
Быстрый выход на сделку!
Рассрочка, лизинг, ипотека!
Помещение находится в бизнес-парке «Смирновский»
на юго-востоке Москвы.
В стильном комплексе зданий проведена полная реновация,
но при этом сохранена историческая память —
строительство было завершено в 1863 году, а надежные технологии XIX века и современные решения помогли сохранить архитектурный объект в отличном состоянии.
Помещение подойдет для различных видов деятельности.
Здесь можно открыть офис, мастерскую, пункт выдачи заказов, шоурум, кофейню, салон красоты, сервис услуг и реализовать многие виды бизнеса.
Сейчас бизнес-парк органично вписывается в городской массив: фасады изящно стилизованы растениями, а также подсветкой.
На огороженной территории обустроены места отдыха и зеленые зоны. Резидентам и их клиентам доступны парковочные места.
Комплекс находится в густонаселенном районе столицы с высокой проходимостью, что обеспечит большой поток потенциальных клиентов. Поблизости расположены торговые и бизнес-центры, муниципальные учреждения, супермаркеты, кафе и рестораны, школы и детские сады, спортивные и медицинские учреждения, аптеки.
Удачное транспортное расположение:
МЦД Калитники — 9 минут пешком
Транспортный узел станции Нижегородская (метро, МЦК и МЦД) —
15 минут на транспорте,
Метро Волгоградский проспект — 12 минут езды
МКАД — 8 минут езды
Также рядом есть выезд на крупные транспортные артерии — Рязанский и Волгоградский проспекты.
Ежедневный показ. Онлайн-показ. Быстрая сделка!
Звоните! Ответим на все ваши вопросы.
в Нижегородском районе Москвы! С Арендатором!
Готовый арендный бизнес
"Склад индивидуального хранения"
Площадь: 978,8 м2!
Арендная ставка 2 100 руб./кв.м. в месяц
Постоянная арендная плата 2 055 480 руб. в месяц
Индексация ежегодная от 8% до 12%
Быстрый выход на сделку!
Рассрочка, лизинг, ипотека!
Помещение находится в бизнес-парке «Смирновский»
на юго-востоке Москвы.
В стильном комплексе зданий проведена полная реновация,
но при этом сохранена историческая память —
строительство было завершено в 1863 году, а надежные технологии XIX века и современные решения помогли сохранить архитектурный объект в отличном состоянии.
Помещение подойдет для различных видов деятельности.
Здесь можно открыть офис, мастерскую, пункт выдачи заказов, шоурум, кофейню, салон красоты, сервис услуг и реализовать многие виды бизнеса.
Сейчас бизнес-парк органично вписывается в городской массив: фасады изящно стилизованы растениями, а также подсветкой.
На огороженной территории обустроены места отдыха и зеленые зоны. Резидентам и их клиентам доступны парковочные места.
Комплекс находится в густонаселенном районе столицы с высокой проходимостью, что обеспечит большой поток потенциальных клиентов. Поблизости расположены торговые и бизнес-центры, муниципальные учреждения, супермаркеты, кафе и рестораны, школы и детские сады, спортивные и медицинские учреждения, аптеки.
Удачное транспортное расположение:
МЦД Калитники — 9 минут пешком
Транспортный узел станции Нижегородская (метро, МЦК и МЦД) —
15 минут на транспорте,
Метро Волгоградский проспект — 12 минут езды
МКАД — 8 минут езды
Также рядом есть выезд на крупные транспортные артерии — Рязанский и Волгоградский проспекты.
Ежедневный показ. Онлайн-показ. Быстрая сделка!
Звоните! Ответим на все ваши вопросы.
Расположение
г Москва, ул Смирновская, д 2 стр 1
Калитники
—
4 мин
Новохохловская
—
17 мин
Нижегородская
—
18 мин
Технические характеристики
Параметры
Отопление
есть
Новость дня
Все новости
Сегодня — 29 апреля, среда / Москва
Московский цех открыл производство 3D-принтеров для металлической печати.
Сегодня — 29 апреля, среда / Москва
БМ-банк завершил продажу большей части площадей в ТЦ «Весна» на Новом Арбате.
Сегодня — 29 апреля, среда / Москва
Перефразированное название: "Сеть магазинов 'Жизньмарт' возобновляет свою деятельность в Челябинске"
Сегодня — 29 апреля, среда / Санкт-Петербург
Сервисный офис «Практик» начал свою работу на Октябрьской набережной в Санкт-Петербурге.
Сегодня — 29 апреля, среда / Санкт-Петербург
Строительство складских помещений в Санкт-Петербурге и Ленинградской области увеличилось в 2,5 раза.
Сегодня — 29 апреля, среда / Москва
Москва увеличила объем строительства в рамках программы МПТ до 9,5 миллионов квадратных метров
Сегодня — 29 апреля, среда / Санкт-Петербург
Соседский центр "ЖИВИ Клуб" открыл свои двери в Новоселье
Сегодня — 29 апреля, среда / Москва
"Завершено строительство пятиэтажной наземной парковки в районе Нагатинский Затон"
Сегодня — 29 апреля, среда / Санкт-Петербург
Рекордный уровень строительства складов зафиксирован в Санкт-Петербурге и Ленинградской области
Сегодня — 29 апреля, среда / Москва
Аренда складов в Москве снизилась на 25%
Вчера — 28 апреля, вторник / Москва
"Появление двух новых брендов на российском рынке в начале 2026 года"
Вчера — 28 апреля, вторник / Москва
27-этажный бизнес-центр класса А в Коммунарке завершает процесс утверждения своего архитектурного дизайна
Вчера — 28 апреля, вторник / Москва
Перефразированное название статьи: "Открытие первого флагманского магазина Lumique в «Авиапарке»"
Вчера — 28 апреля, вторник / Москва
"Подольская фабрика офсетной печати выставляет на приватизацию 49% своих акций"
Вчера — 28 апреля, вторник / Москва
Самострои в ЮВАО: площадь почти 4 тыс. кв. м за первый квартал
Вчера — 28 апреля, вторник / Москва
Иск на 11,7 млрд рублей подан банком «Санкт-Петербург» к структуре «Гранели»
Вчера — 28 апреля, вторник / Москва
"«Яндекс Фабрика» запускает цепь офлайн-магазинов в Москве"
Вчера — 28 апреля, вторник / Москва
Детская сеть магазинов "Кораблик" столкнулась с финансовыми трудностями
Вчера — 28 апреля, вторник / Москва
Снижение загрузки премиум отелей Москвы в первом квартале до 69,4%
Вчера — 28 апреля, вторник / Крым
"Продается комплекс солнечных электростанций на полуострове Крым"