Описание
Цены указаны с условием 100% оплаты и стандартной ипотеки.
Прямая продажа от застройщика!
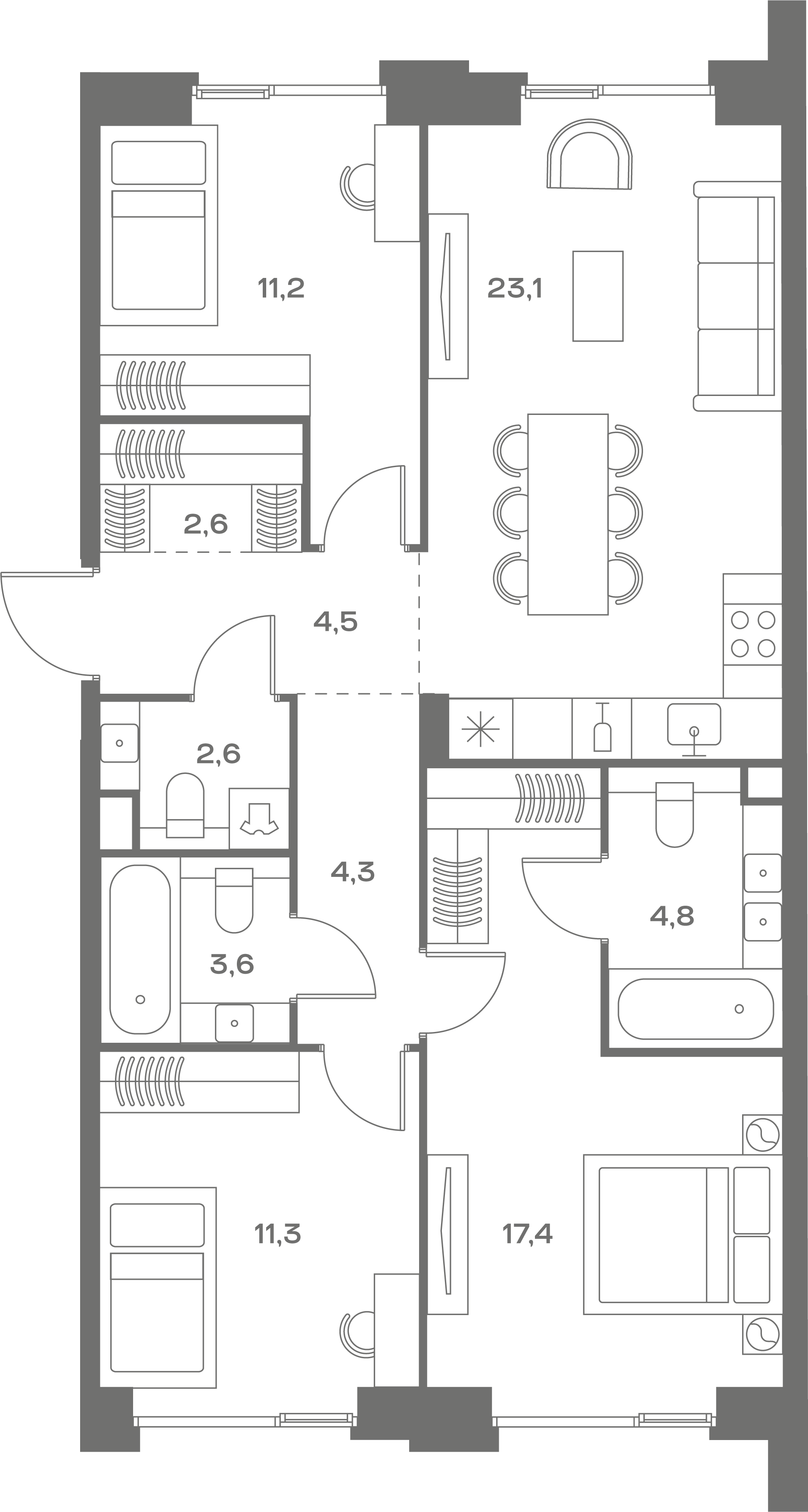
Продается 3-к. квартира номер 75 общей площадью 96.4 кв.м. на 6-м этаже 7 этажного дома, камерные дома СОУЛ (премиум-класс). Без отделки.
Проект бизнес-класса СОУЛ от девелопера FORMA. До метро Сокол 10 мин пешком. Архитектура от британского бюро SimpsonHaugh. Благоустройство дворов — Gillespies и GAFA. Территория состоит из культурного парка и приватных дворов. Озеленение в эстетике лесного оазиса. Насыщенное благоустройство: прогулочные тропинки, релакс-зоны, пряный и сенсорный сады, развивающие детские площадки и воркауты.
В центре проекта объект культурного наследия — общественное пространство Изофабрика, построенная в 30-х годах по проекту архитектора Георгия Гольца. Здесь будут располагаться мастерские для взрослых и детей, выставочные залы, коворкинги, образовательный центр, рестораны и кафе.
Квартиры с панорамными окнами, мастер-спальнями, гардеробными, классическими балконами и лоджиями, видовыми террасами. Высота потолков от 2,9 до 3,5 м.
В проекте 2 детских сада на 100 и 200 малышей. Клубная гостиная, фитнес-комната, детская игровая комната, дизайнерские лобби, подземный паркинг и кладовые.
Прямая продажа от застройщика!
Продается 3-к. квартира номер 75 общей площадью 96.4 кв.м. на 6-м этаже 7 этажного дома, камерные дома СОУЛ (премиум-класс). Без отделки.
Проект бизнес-класса СОУЛ от девелопера FORMA. До метро Сокол 10 мин пешком. Архитектура от британского бюро SimpsonHaugh. Благоустройство дворов — Gillespies и GAFA. Территория состоит из культурного парка и приватных дворов. Озеленение в эстетике лесного оазиса. Насыщенное благоустройство: прогулочные тропинки, релакс-зоны, пряный и сенсорный сады, развивающие детские площадки и воркауты.
В центре проекта объект культурного наследия — общественное пространство Изофабрика, построенная в 30-х годах по проекту архитектора Георгия Гольца. Здесь будут располагаться мастерские для взрослых и детей, выставочные залы, коворкинги, образовательный центр, рестораны и кафе.
Квартиры с панорамными окнами, мастер-спальнями, гардеробными, классическими балконами и лоджиями, видовыми террасами. Высота потолков от 2,9 до 3,5 м.
В проекте 2 детских сада на 100 и 200 малышей. Клубная гостиная, фитнес-комната, детская игровая комната, дизайнерские лобби, подземный паркинг и кладовые.
Расположение
г Москва, ул Часовая, д 28
Красный Балтиец
—
7 мин
Сокол
—
8 мин
Аэропорт
—
16 мин
Технические характеристики
Параметры
Статус владельца объявления
застройщик
Тип здания
монолитный
Параметры помещения
жилая площадь м²
39
площадь кухни м²
26
Высота потолков
3.02
Новость дня
Все новости
Вчера — 29 апреля, среда / Москва
Московский цех открыл производство 3D-принтеров для металлической печати.
Вчера — 29 апреля, среда / Москва
БМ-банк завершил продажу большей части площадей в ТЦ «Весна» на Новом Арбате.
Вчера — 29 апреля, среда / Москва
Перефразированное название: "Сеть магазинов 'Жизньмарт' возобновляет свою деятельность в Челябинске"
Вчера — 29 апреля, среда / Санкт-Петербург
Сервисный офис «Практик» начал свою работу на Октябрьской набережной в Санкт-Петербурге.
Вчера — 29 апреля, среда / Санкт-Петербург
Строительство складских помещений в Санкт-Петербурге и Ленинградской области увеличилось в 2,5 раза.
Вчера — 29 апреля, среда / Москва
Москва увеличила объем строительства в рамках программы МПТ до 9,5 миллионов квадратных метров
Вчера — 29 апреля, среда / Санкт-Петербург
Соседский центр "ЖИВИ Клуб" открыл свои двери в Новоселье
Вчера — 29 апреля, среда / Москва
"Завершено строительство пятиэтажной наземной парковки в районе Нагатинский Затон"
Вчера — 29 апреля, среда / Санкт-Петербург
Рекордный уровень строительства складов зафиксирован в Санкт-Петербурге и Ленинградской области
Вчера — 29 апреля, среда / Москва
Аренда складов в Москве снизилась на 25%
28 апреля, вторник / Москва
"Появление двух новых брендов на российском рынке в начале 2026 года"
28 апреля, вторник / Москва
27-этажный бизнес-центр класса А в Коммунарке завершает процесс утверждения своего архитектурного дизайна
28 апреля, вторник / Москва
Перефразированное название статьи: "Открытие первого флагманского магазина Lumique в «Авиапарке»"
28 апреля, вторник / Москва
"Подольская фабрика офсетной печати выставляет на приватизацию 49% своих акций"
28 апреля, вторник / Москва
Самострои в ЮВАО: площадь почти 4 тыс. кв. м за первый квартал
28 апреля, вторник / Москва
Иск на 11,7 млрд рублей подан банком «Санкт-Петербург» к структуре «Гранели»
28 апреля, вторник / Москва
"«Яндекс Фабрика» запускает цепь офлайн-магазинов в Москве"
28 апреля, вторник / Москва
Детская сеть магазинов "Кораблик" столкнулась с финансовыми трудностями
28 апреля, вторник / Москва
Снижение загрузки премиум отелей Москвы в первом квартале до 69,4%
28 апреля, вторник / Крым
"Продается комплекс солнечных электростанций на полуострове Крым"