Описание
Предложение на продажу № 46470.
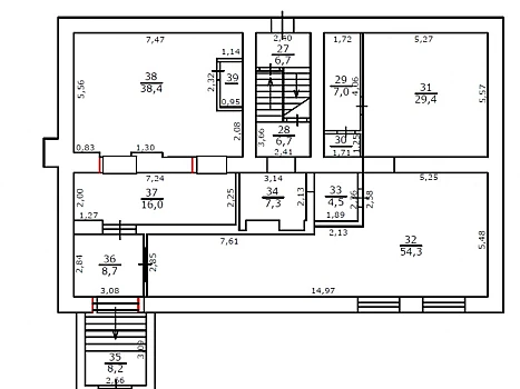
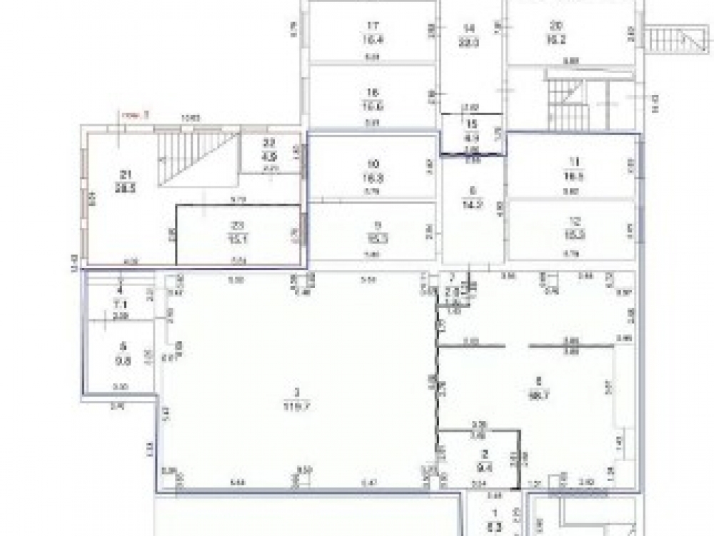
Предлагается в продажу помещение свободного назначения. Помещение с арендатором.
. Заключен договор на 5 лет с арендатором "Яндекс Лавка" 12 января 2024 года
. МАП 547 600 руб, коммунальные платежи не включены и оплачиваются арендатором дополнительно.
. Отдельный вход, доступ 24/7
. Центральные коммуникации
. Собственник - физическое лицо.
Торговая недвижимость, Street Retail. 1 линия домов. Витрины. Место для рекламы. Зона разгрузки. Проходное и проездное место.
Арендный бизнес. Окупаемость c индексацией: 8 лет и 10 меc. Ежегодная индексация: 3%. По первому году: 9 лет и 11 меc. Доходность c индексацией: 11.32%. Доходность c индексацией: 11.32%. По первому году: 10.08%. Присутствует арендатор: Яндекс.Лавка. Срок договора: 5 лет.
Без комиссии.
Предлагается в продажу помещение свободного назначения. Помещение с арендатором.
. Заключен договор на 5 лет с арендатором "Яндекс Лавка" 12 января 2024 года
. МАП 547 600 руб, коммунальные платежи не включены и оплачиваются арендатором дополнительно.
. Отдельный вход, доступ 24/7
. Центральные коммуникации
. Собственник - физическое лицо.
Торговая недвижимость, Street Retail. 1 линия домов. Витрины. Место для рекламы. Зона разгрузки. Проходное и проездное место.
Арендный бизнес. Окупаемость c индексацией: 8 лет и 10 меc. Ежегодная индексация: 3%. По первому году: 9 лет и 11 меc. Доходность c индексацией: 11.32%. Доходность c индексацией: 11.32%. По первому году: 10.08%. Присутствует арендатор: Яндекс.Лавка. Срок договора: 5 лет.
Без комиссии.
Расположение
г Москва, ул Энергетическая, д 13
Авиамоторная
—
15 мин
Авиамоторная
—
15 мин
Авиамоторная
—
15 мин
Сортировочная
—
8 мин
Технические характеристики
Параметры
Статус владельца объявления
агентство
Новость дня
Расширение возможностей для B2B-клиентов: Avito вводит новые услуги для строительства складов
На платформе Авито теперь доступна категория "Коммерческое строительство" в сегменте услуг, предлагающая широкий выбор специализированных работ и возведение объектов "под ключ" для бизнеса, что упрощает поиск подрядчиков и субподрядчиков для коммерческих проектов.
Все новости
Сегодня — 4 мая, понедельник / Москва
Российский складской рынок продолжает расти: площадь складских помещений превысит 60 млн кв. м к концу 2026 года
Сегодня — 4 мая, понедельник / Москва
"Компания "Галс-Девелопмент" получила одобрение на строительство делового центра "Дубининский"."
Сегодня — 4 мая, понедельник / Москва
Инвестиционный фонд "Бумеранг Капитал" стал владельцем половины сети кофеен "Цех 85"
Сегодня — 4 мая, понедельник / Краснодарский
В Анапе откроется первый отель с инновационными IT-сервисами
Сегодня — 4 мая, понедельник / Москва
Планируется строительство торгового центра площадью свыше 6 тыс. кв. м в Краснопахорском районе Москвы.
Сегодня — 4 мая, понедельник / Москва
Смена собственника у клубов «Дикая орхидея» и «Дефиле»
Сегодня — 4 мая, понедельник / Вологодская
"Прекращена деятельность "наливаек" и магазинов электронных сигарет в Вологодской области"
Сегодня — 4 мая, понедельник / Москва
"Exeed перемещает производство из Подмосковья на площадку АГР в Шушарах"
Сегодня — 4 мая, понедельник / Москва
На юге Москвы запланировано строительство ТПУ "Кленовый бульвар" на площади 2 гектара.
30 апреля, четверг / Москва
"Бумеранг Капитал" увеличил свою долю в сети кафе-пекарен "Цех 85" до 50%
30 апреля, четверг / Ставропольский
В Кисловодске начался проект строительства инвестиционного отеля "Реликт"
30 апреля, четверг / Москва
Ресторан «Долина 5165» и магазин Sokolov теперь доступны посетителям ТРЦ Avenue Sever
30 апреля, четверг / Москва
"Новый флагманский магазин под названием «Флаувау» открыл свои двери на Мясницкой улице"
30 апреля, четверг / Москва
"Уровень вакансии на складах в Московском регионе достиг 5,4% из-за увеличения предложений по субаренде"
30 апреля, четверг / Москва
"Прогнозируется незначительный прирост числа туристов в первом квартале 2026 года - всего 2,8%"
30 апреля, четверг / Москва
Компания "Ориентир" планирует вложить до 150 млрд рублей в расширение бизнеса и развитие новых секторов.
30 апреля, четверг / Москва
"Завершено строительство наземной парковки на 400 автомобильных мест в парке «Ривер Парк Коломенское»"
30 апреля, четверг / Москва
Скорось открытия новых магазинов «Лэтуаль» снизится - 150 точек закроются к 2026 году.
30 апреля, четверг / Москва
Смайл-бар сети "Белая точка" теперь доступен посетителям ТЦ "Левел Причальный"
29 апреля, среда / Москва
Московский цех открыл производство 3D-принтеров для металлической печати.