Купить ПСН 124 м² в ЖК Родные кварталы
ID 323786
Цена
40 587 040 ₽
Ставка
327 315 ₽ / м²
Площадь
124 м²
Этаж
1 из -
ИФНС
7751
агентство недвижимости
г Москва, Марушкинское п, д Постниково, пер Садовый, д 29
На карте
Толстопальцево
—
29 мин
Лесной Городок
—
38 мин
Кокошкино
—
41 мин
Описание
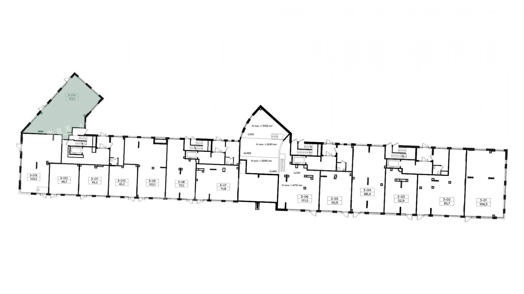
Лот №650689 Делимся комиссией с коллегами! Продается коммерческое помещение площадью 123,5 кв. м, расположенное на первом этаже жилого дома в ЖК "Родные кварталы". Объект обладает выделенной мощностью 37,1 кВт, свободной планировкой, подключением к системам холодного и горячего водоснабжения, а также канализации. Отделка в помещении отсутствует.
Помещение имеет свободное назначение и подходит для различных видов деятельности, включая медицинские центры, салоны красоты, парикмахерские, офисы, рестораны, бары, банки, предприятия бытовых услуг, торговые точки и магазины.
Основные характеристики объекта: площадь 123,5 кв. м, высота потолков 4,8 м, разрешенная мощность 37,05 кВт. Вентиляционная система представлена каналами размером 600х250, 200х250 и Ø125. Помещение имеет два входа, один этаж, витринное остекление отсутствует. Прогнозируемая проходимость составляет от 189 до 288 человек в час (данные предоставлены сервисом "Геоаналитика BestPlace").
Приобретая данное помещение, у вас есть возможность воспользоваться интерактивным подбором объектов или рассмотреть варианты с акцептом франшизы. Срок сдачи объекта запланирован на III квартал 2026 года.
Чтобы получить ПОДРОБНУЮ ПРЕЗЕНТАЦИЮ С ПЛАНИРОВКОЙ И ФОТОГРАФИЯМИ на этот объект, звоните. Высылаем в течение 15 минут по запросу!
Уважаемые коллеги, мы работаем по этому объекту с посредниками и делимся комиссией в соответствии с нашей партнерской программой!
☎ Конт. лицо: НОВОСТРОЙКИ , доб. 211, ЛОТ №650689
Помещение имеет свободное назначение и подходит для различных видов деятельности, включая медицинские центры, салоны красоты, парикмахерские, офисы, рестораны, бары, банки, предприятия бытовых услуг, торговые точки и магазины.
Основные характеристики объекта: площадь 123,5 кв. м, высота потолков 4,8 м, разрешенная мощность 37,05 кВт. Вентиляционная система представлена каналами размером 600х250, 200х250 и Ø125. Помещение имеет два входа, один этаж, витринное остекление отсутствует. Прогнозируемая проходимость составляет от 189 до 288 человек в час (данные предоставлены сервисом "Геоаналитика BestPlace").
Приобретая данное помещение, у вас есть возможность воспользоваться интерактивным подбором объектов или рассмотреть варианты с акцептом франшизы. Срок сдачи объекта запланирован на III квартал 2026 года.
Чтобы получить ПОДРОБНУЮ ПРЕЗЕНТАЦИЮ С ПЛАНИРОВКОЙ И ФОТОГРАФИЯМИ на этот объект, звоните. Высылаем в течение 15 минут по запросу!
Уважаемые коллеги, мы работаем по этому объекту с посредниками и делимся комиссией в соответствии с нашей партнерской программой!
☎ Конт. лицо: НОВОСТРОЙКИ , доб. 211, ЛОТ №650689
Расположение
г Москва, Марушкинское п, д Постниково, пер Садовый, д 29
Толстопальцево
—
29 мин
Лесной Городок
—
38 мин
Кокошкино
—
41 мин
Технические характеристики
Параметры
Статус владельца объявления
агентство
Свободные помещения в ЖК Родные кварталы
Новость дня
Расширение возможностей для B2B-клиентов: Avito вводит новые услуги для строительства складов
На платформе Авито теперь доступна категория "Коммерческое строительство" в сегменте услуг, предлагающая широкий выбор специализированных работ и возведение объектов "под ключ" для бизнеса, что упрощает поиск подрядчиков и субподрядчиков для коммерческих проектов.
Все новости
Вчера — 6 мая, среда / Москва
Рекордное количество офисных помещений введено в Москве за первый квартал текущего года.
Вчера — 6 мая, среда / Москва
"Сокращение объемов складских помещений в Московском регионе достигло 14% за первый квартал"
Вчера — 6 мая, среда / Москва
Лишь 10% жилых комплексов располагаются вблизи берега Москвы-реки.
Вчера — 6 мая, среда / Москва
Цены на отели в Москве снизились впервые за два года
Вчера — 6 мая, среда / Карачаево-Черкесская
Капиталовложения в размере 5,83 млрд рублей на развитие курорта "Альто" на Домбае от компании "Плато Девелопмент"
Вчера — 6 мая, среда / Москва
Строительство склада площадью 80 тыс. кв. м для Ozon в Пушкино будет осуществлено компанией NK Group.
Вчера — 6 мая, среда / Санкт-Петербург
«Дача Фаберже в Санкт-Петербурге будет продана на аукционе компанией «Дом.РФ»»
Вчера — 6 мая, среда / Москва
Строительство коммерческих объектов в Москве упало на 91% за год
Вчера — 6 мая, среда / Москва
Как в Москве за первый квартал 2026 года построили 5,433 тыс. кв. м офисов, готовых к адаптации.
Вчера — 6 мая, среда / Санкт-Петербург
Продуктовые сети в России увеличили свои площади в торгово-развлекательном центре Петербурга на треть за последние 6 лет.
Вчера — 6 мая, среда / Москва
С начала года в Москве получили разрешение на строительство более 130 недвижимостей.
5 мая, вторник / Москва
"Сбербанк и Альфа-банк подали в суд на производителя обоев «Артекс» с требованием объявить его банкротом"
5 мая, вторник / Красноярский
"Магазин «ВкусВилл» открыл отдел shop-in-shop в Красноярске через партнерство"
5 мая, вторник / Адыгея
Строительство жилого комплекса на территории туристического парка "Дегуакская поляна" в Адыгее начнется архитектурным проектом от "Семьи" объемом 360 тыс. квадратных метров.
5 мая, вторник / Москва
"Прогнозируется достижение рекордной площади 500 тыс. кв. м под light industrial в Московском регионе к 2026 году"
5 мая, вторник / Астраханская
Фитнес-клуб DDX Fitness открылся в Торгово-Развлекательном Центре «Ярмарка» в городе Астрахань.
5 мая, вторник / Москва
"Объем спроса на офисные помещения в Москве сократился вдвое за последний год"
5 мая, вторник / Москва
"Рост стоимости отделки офисов в Москве превышает уровень инфляции"
5 мая, вторник / Москва
В России впервые за 20 лет не было открыто ни одной новой гостиницы в первом квартале
5 мая, вторник / Москва
Спрос на услуги аренды апартаментов в Санкт-Петербурге упал на четверть.