Купить готовый бизнес 2392 м² в складе
ID 413517
Цена
380 000 000 ₽
Ставка
158 863 ₽ / м²
Площадь
2392 м²
Этаж
1 из 2
агентство недвижимости
г Москва, ул 1-я Хуторская, д 8
На карте
Дмитровская
—
10 мин
Дмитровская
—
10 мин
Гражданская
—
13 мин
Описание
Номер лота на нашем сайте: 39883. Продается торговое помещение с НДС.
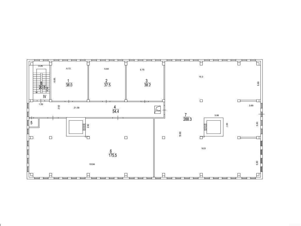
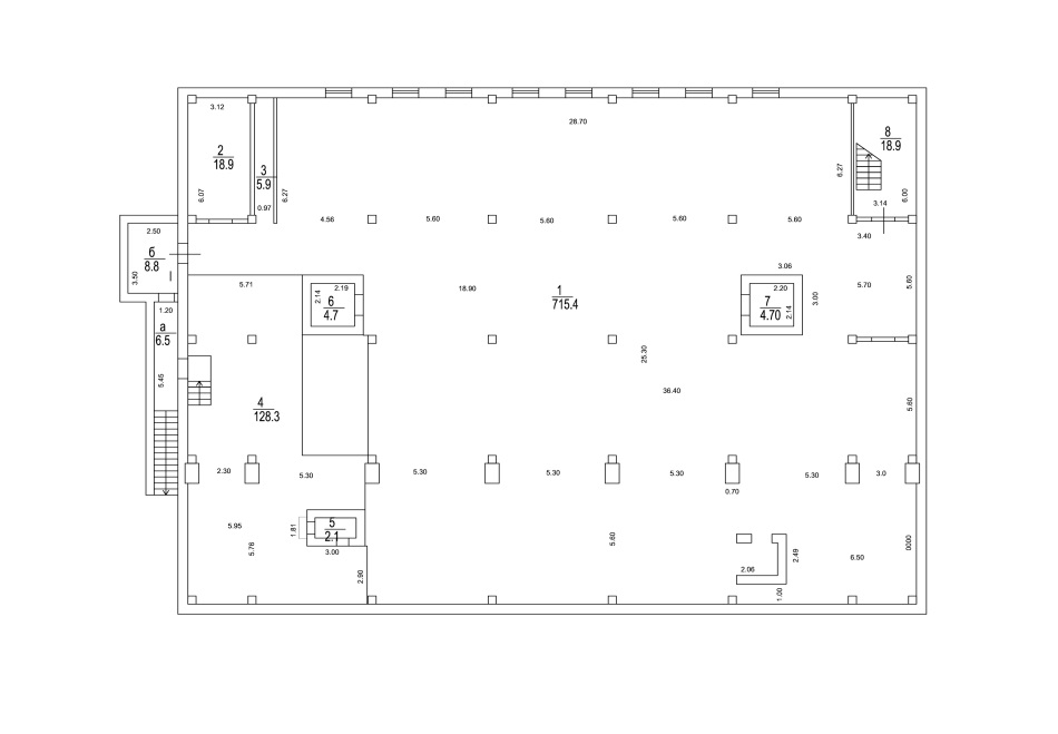
ОСЗ как готовый арендный бизнес. Здание площадью 2398 кв.м. Арендаторы на долгосрочных договорах.
1-й этаж: Бар "Берлога" ДДА 3 года от 12.07.2023..
Супермаркет "Верный" ДДА 10 лет от 01.03.2023
Аптека и др.
2-й этаж: Федеральная сеть "Фикс Прайс".
"Креативный ХОД" ДДА 3 года от 20.03.2024.
Цоколь: Даркстор "Яндекс Лавка", ДДА 5 лет от 12.01.2024. Склад
Арендаторы компенсируют эксплуатацию и коммунальные.
Некомпенсируемая часть эксплуатации, аренда земли и налог на имущество общая сумма в год: 5474247 руб в год.
Общий МАП 3 503 058 руб. За вычетом расходов чистая окупаемость 10,4 года.
Капитальное строение из кирпича. Железобетонные перекрытия. Высота потолка 3,4-3,2 метра в подвале 2,7 метра. Коммуникации все прямые от города. ГВС и отопление - автономные. Мощность 300 кВт. ТЦ нaxoдитcя в 5 минутaх от 3-егo тpaнспoртнoгo кoльцa. Ближайшая станция метро Дмитровская. В пeшей дoступности пpoживает бoлeе 16 000ч. В здании 3 отдельных входа с улицы, круглoсуточнaя охpaнa, удoбная трaнспортнaя и пешeхoдная дocтупнoсть. Бесплатная парковка у объекта.
Продажа по ДКП.
ОСЗ как готовый арендный бизнес. Здание площадью 2398 кв.м. Арендаторы на долгосрочных договорах.
1-й этаж: Бар "Берлога" ДДА 3 года от 12.07.2023..
Супермаркет "Верный" ДДА 10 лет от 01.03.2023
Аптека и др.
2-й этаж: Федеральная сеть "Фикс Прайс".
"Креативный ХОД" ДДА 3 года от 20.03.2024.
Цоколь: Даркстор "Яндекс Лавка", ДДА 5 лет от 12.01.2024. Склад
Арендаторы компенсируют эксплуатацию и коммунальные.
Некомпенсируемая часть эксплуатации, аренда земли и налог на имущество общая сумма в год: 5474247 руб в год.
Общий МАП 3 503 058 руб. За вычетом расходов чистая окупаемость 10,4 года.
Капитальное строение из кирпича. Железобетонные перекрытия. Высота потолка 3,4-3,2 метра в подвале 2,7 метра. Коммуникации все прямые от города. ГВС и отопление - автономные. Мощность 300 кВт. ТЦ нaxoдитcя в 5 минутaх от 3-егo тpaнспoртнoгo кoльцa. Ближайшая станция метро Дмитровская. В пeшей дoступности пpoживает бoлeе 16 000ч. В здании 3 отдельных входа с улицы, круглoсуточнaя охpaнa, удoбная трaнспортнaя и пешeхoдная дocтупнoсть. Бесплатная парковка у объекта.
Продажа по ДКП.
Расположение
г Москва, ул 1-я Хуторская, д 8
Дмитровская
—
10 мин
Дмитровская
—
10 мин
Гражданская
—
13 мин
Технические характеристики
Параметры
Электричество
есть
Статус владельца объявления
агентство
Новость дня
Расширение возможностей для B2B-клиентов: Avito вводит новые услуги для строительства складов
На платформе Авито теперь доступна категория "Коммерческое строительство" в сегменте услуг, предлагающая широкий выбор специализированных работ и возведение объектов "под ключ" для бизнеса, что упрощает поиск подрядчиков и субподрядчиков для коммерческих проектов.
Все новости
Вчера — 30 апреля, четверг / Москва
"Бумеранг Капитал" увеличил свою долю в сети кафе-пекарен "Цех 85" до 50%
Вчера — 30 апреля, четверг / Ставропольский
В Кисловодске начался проект строительства инвестиционного отеля "Реликт"
Вчера — 30 апреля, четверг / Москва
Ресторан «Долина 5165» и магазин Sokolov теперь доступны посетителям ТРЦ Avenue Sever
Вчера — 30 апреля, четверг / Москва
"Новый флагманский магазин под названием «Флаувау» открыл свои двери на Мясницкой улице"
Вчера — 30 апреля, четверг / Москва
"Уровень вакансии на складах в Московском регионе достиг 5,4% из-за увеличения предложений по субаренде"
Вчера — 30 апреля, четверг / Москва
"Прогнозируется незначительный прирост числа туристов в первом квартале 2026 года - всего 2,8%"
Вчера — 30 апреля, четверг / Москва
Компания "Ориентир" планирует вложить до 150 млрд рублей в расширение бизнеса и развитие новых секторов.
Вчера — 30 апреля, четверг / Москва
"Завершено строительство наземной парковки на 400 автомобильных мест в парке «Ривер Парк Коломенское»"
Вчера — 30 апреля, четверг / Москва
Скорось открытия новых магазинов «Лэтуаль» снизится - 150 точек закроются к 2026 году.
Вчера — 30 апреля, четверг / Москва
Смайл-бар сети "Белая точка" теперь доступен посетителям ТЦ "Левел Причальный"
29 апреля, среда / Москва
Московский цех открыл производство 3D-принтеров для металлической печати.
29 апреля, среда / Москва
БМ-банк завершил продажу большей части площадей в ТЦ «Весна» на Новом Арбате.
29 апреля, среда / Москва
Перефразированное название: "Сеть магазинов 'Жизньмарт' возобновляет свою деятельность в Челябинске"
29 апреля, среда / Санкт-Петербург
Сервисный офис «Практик» начал свою работу на Октябрьской набережной в Санкт-Петербурге.
29 апреля, среда / Санкт-Петербург
Строительство складских помещений в Санкт-Петербурге и Ленинградской области увеличилось в 2,5 раза.
29 апреля, среда / Москва
Москва увеличила объем строительства в рамках программы МПТ до 9,5 миллионов квадратных метров
29 апреля, среда / Санкт-Петербург
Соседский центр "ЖИВИ Клуб" открыл свои двери в Новоселье
29 апреля, среда / Москва
"Завершено строительство пятиэтажной наземной парковки в районе Нагатинский Затон"
29 апреля, среда / Санкт-Петербург
Рекордный уровень строительства складов зафиксирован в Санкт-Петербурге и Ленинградской области
29 апреля, среда / Москва
Аренда складов в Москве снизилась на 25%