Описание
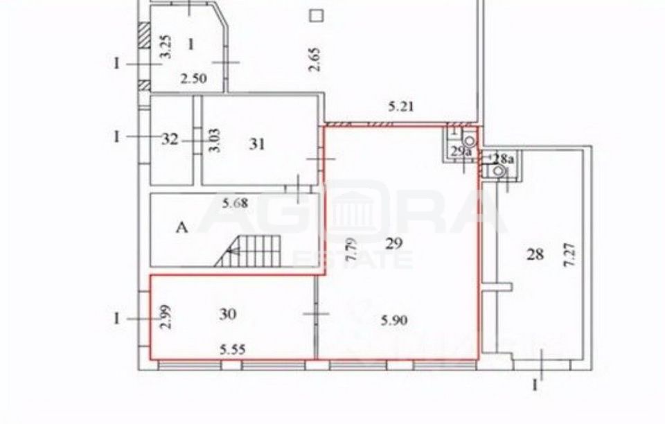
Номер объекта: 550860. От собственника. Продажа ПСН площадью 60,4 м2, в шаговой доступности от ТПУ Окружная, район Марфино, СВАО. 1-я линия 3-го Нижнелихоборского проезда. Рядом метро, МЦК, МЦД Окружная, остановка Аэроэкспресса в Шереметьево. Помещение расположено на 1-м этаже в 2-х этажном отдельно стоящем здании (ОСЗ). Высота потолков 2,85 м. Есть отдельный вход с улицы, зона погрузки/разгрузки. Все коммуникации – центральные, приточно-вытяжная система вентиляции. Свободная планировка, есть собственный с/у. Стандартные окна по фасаду. Выделенная мощность 10 кВт. Есть наземная парковка на территории комплекса. Помещение возможно использовать под любой вид деятельности, в том числе под ПВЗ. Рядом расположен супермаркет Чижик и автосалон Автохаус.
Удобная транспортная доступность: здание расположено между Дмитровским и Алтуфьевским шоссе, на пересечении СВХ и СЗХ. Объект № 550860
Удобная транспортная доступность: здание расположено между Дмитровским и Алтуфьевским шоссе, на пересечении СВХ и СЗХ. Объект № 550860
Расположение
г Москва, ул Гостиничная, д 11 стр 1
Окружная
—
2 мин
Технические характеристики
Параметры
Охрана
есть
Инженерия
кондиционер
Статус владельца объявления
агентство
Класс
b
Параметры помещения
Высота потолков
—
Новость дня
Все новости
Сегодня — 30 апреля, четверг / Ставропольский
В Кисловодске начался проект строительства инвестиционного отеля "Реликт"
Сегодня — 30 апреля, четверг / Москва
Ресторан «Долина 5165» и магазин Sokolov теперь доступны посетителям ТРЦ Avenue Sever
Сегодня — 30 апреля, четверг / Москва
"Новый флагманский магазин под названием «Флаувау» открыл свои двери на Мясницкой улице"
Сегодня — 30 апреля, четверг / Москва
"Уровень вакансии на складах в Московском регионе достиг 5,4% из-за увеличения предложений по субаренде"
Сегодня — 30 апреля, четверг / Москва
"Прогнозируется незначительный прирост числа туристов в первом квартале 2026 года - всего 2,8%"
Сегодня — 30 апреля, четверг / Москва
Компания "Ориентир" планирует вложить до 150 млрд рублей в расширение бизнеса и развитие новых секторов.
Сегодня — 30 апреля, четверг / Москва
"Завершено строительство наземной парковки на 400 автомобильных мест в парке «Ривер Парк Коломенское»"
Сегодня — 30 апреля, четверг / Москва
Скорось открытия новых магазинов «Лэтуаль» снизится - 150 точек закроются к 2026 году.
Сегодня — 30 апреля, четверг / Москва
Смайл-бар сети "Белая точка" теперь доступен посетителям ТЦ "Левел Причальный"
Вчера — 29 апреля, среда / Москва
Московский цех открыл производство 3D-принтеров для металлической печати.
Вчера — 29 апреля, среда / Москва
БМ-банк завершил продажу большей части площадей в ТЦ «Весна» на Новом Арбате.
Вчера — 29 апреля, среда / Москва
Перефразированное название: "Сеть магазинов 'Жизньмарт' возобновляет свою деятельность в Челябинске"
Вчера — 29 апреля, среда / Санкт-Петербург
Сервисный офис «Практик» начал свою работу на Октябрьской набережной в Санкт-Петербурге.
Вчера — 29 апреля, среда / Санкт-Петербург
Строительство складских помещений в Санкт-Петербурге и Ленинградской области увеличилось в 2,5 раза.
Вчера — 29 апреля, среда / Москва
Москва увеличила объем строительства в рамках программы МПТ до 9,5 миллионов квадратных метров
Вчера — 29 апреля, среда / Санкт-Петербург
Соседский центр "ЖИВИ Клуб" открыл свои двери в Новоселье
Вчера — 29 апреля, среда / Москва
"Завершено строительство пятиэтажной наземной парковки в районе Нагатинский Затон"
Вчера — 29 апреля, среда / Санкт-Петербург
Рекордный уровень строительства складов зафиксирован в Санкт-Петербурге и Ленинградской области
Вчера — 29 апреля, среда / Москва
Аренда складов в Москве снизилась на 25%
28 апреля, вторник / Москва
"Появление двух новых брендов на российском рынке в начале 2026 года"