Снять торговое помещение 171 м² в ЖК Прокшино
Описание
Предложение напрямую от застройщика!
ХАРАКТЕРИСТИКИ ПОМЕЩЕНИЯ
Стоимость аренды в мес.: 555 750 рублей
Стоимость аренды за м2/мес.: 3 250 рублей
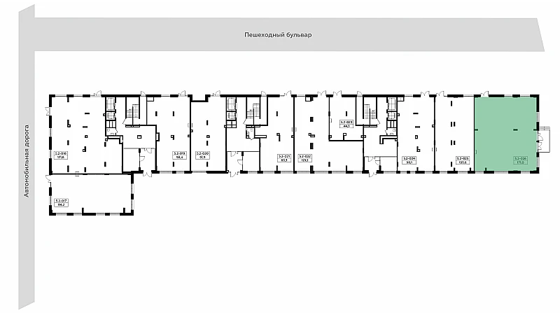
Площадь: 171,0 м2
Назначение: свободное назначение
Отделка: нет
Потолки: 4,5 м
Разрешенная мощность: 51,3 кВт
Система вентиляции: 500х400, 200х200 Ø100
Количество входов: 2
Витринное остекление: нет
Жилой район «Прокшино» расположен в юго-западной части Москвы в 7 км от МКАД и 500 м от одноимённой станции метро.
Рядом домами будут построены крупный торгово-офисный центр и всесезонный спортивно-развлекательный комплекс. Все три объекта, включая жилой район, войдут в состав масштабного кластера Прокшино. В районе «Прокшино», где поселятся 35 тыс. жителей, вся инфраструктура для работы и отдыха находится рядом с домом.
Появятся объекты с заложенной в проекте конкретной функцией: детский сад на 100 мест, ФОК с двумя бассейнами, супермаркет и другие. Вывески и витрины будут хорошо видны со стороны оживлённой трассы СБВ.
Помещения для бизнеса представлены в разных форматах – от 25 м2 до 2 тыс. м2. Высота потолков от 4 м до 6,35 м. Предусмотрена свободная планировка и возможность объединения с соседними лотами. Характеристики помещений позволяют реализовать любой бизнес-проект.
Площадь от 25 м2 до 2000 м2 и более. 55% лотов площадью до 100 м2. Возможность организации антресоли.
Арендуя помещение, вы можете воспользоваться интерактивным подбором помещений, выбрать помещение с акцептом франшизы. Мы создали платформу «А101 Бизнес» с учётом потребностей владельцев бизнесов, инвесторов и сформировали предложения для каждой группы покупателей, арендодателей и арендаторов.
ЖИЛОЙ КОМПЛЕКС РАСПОЛОЖЕН
500 м до метро «Прокшино», Калужское шоссе 3 км, выезд на СБВ 100 м, Киевское шоссе 3 км, МКАД 7,6 км.
ХАРАКТЕРИСТИКИ ПОМЕЩЕНИЯ
Стоимость аренды в мес.: 555 750 рублей
Стоимость аренды за м2/мес.: 3 250 рублей
Площадь: 171,0 м2
Назначение: свободное назначение
Отделка: нет
Потолки: 4,5 м
Разрешенная мощность: 51,3 кВт
Система вентиляции: 500х400, 200х200 Ø100
Количество входов: 2
Витринное остекление: нет
Жилой район «Прокшино» расположен в юго-западной части Москвы в 7 км от МКАД и 500 м от одноимённой станции метро.
Рядом домами будут построены крупный торгово-офисный центр и всесезонный спортивно-развлекательный комплекс. Все три объекта, включая жилой район, войдут в состав масштабного кластера Прокшино. В районе «Прокшино», где поселятся 35 тыс. жителей, вся инфраструктура для работы и отдыха находится рядом с домом.
Появятся объекты с заложенной в проекте конкретной функцией: детский сад на 100 мест, ФОК с двумя бассейнами, супермаркет и другие. Вывески и витрины будут хорошо видны со стороны оживлённой трассы СБВ.
Помещения для бизнеса представлены в разных форматах – от 25 м2 до 2 тыс. м2. Высота потолков от 4 м до 6,35 м. Предусмотрена свободная планировка и возможность объединения с соседними лотами. Характеристики помещений позволяют реализовать любой бизнес-проект.
Площадь от 25 м2 до 2000 м2 и более. 55% лотов площадью до 100 м2. Возможность организации антресоли.
Арендуя помещение, вы можете воспользоваться интерактивным подбором помещений, выбрать помещение с акцептом франшизы. Мы создали платформу «А101 Бизнес» с учётом потребностей владельцев бизнесов, инвесторов и сформировали предложения для каждой группы покупателей, арендодателей и арендаторов.
ЖИЛОЙ КОМПЛЕКС РАСПОЛОЖЕН
500 м до метро «Прокшино», Калужское шоссе 3 км, выезд на СБВ 100 м, Киевское шоссе 3 км, МКАД 7,6 км.
Расположение
г Москва, Сосенское п, кв-л 26
Технические характеристики
Свободные помещения в ЖК Прокшино
Новость дня
Все новости
Сегодня — 27 апреля, понедельник / Москва
Гастропространство «НеДетский» на 630 посадочных мест открылось в Центральном детском магазине на Лубянке.
Сегодня — 27 апреля, понедельник / Москва
"FORMA завершает продажу всех офисных помещений в бизнес-центре «ЛЕЙКС»"
Сегодня — 27 апреля, понедельник / Москва
"Прогноз: восстановление офисного рынка Москвы ожидается к 2028 году"
Сегодня — 27 апреля, понедельник / Москва
Проект строительства промышленного парка с двумя зданиями на востоке Москвы.
Сегодня — 27 апреля, понедельник / Москва
Бизнес-центр площадью 22,7 тыс. кв. м открылся в Нагатинской пойме.
Сегодня — 27 апреля, понедельник / Самарская
Недостроенный птицеводческий комплекс "Евробиотех" в Самарской области ищет покупателя
Сегодня — 27 апреля, понедельник / Москва
"Планируется строительство восьмиэтажной автостоянки с коммерческими помещениями на 465 машиномест в Новой Москве"
Сегодня — 27 апреля, понедельник / Москва
"«Монарх» приобрел участок площадью 1,36 га на территории бывшего Карачаровского механического завода"
Сегодня — 27 апреля, понедельник / Москва
"Производство растительного молока от Сварщицы Екатерины"
Сегодня — 27 апреля, понедельник / Москва
"Будущее магазинов Gate 31 под угрозой из-за финансовых трудностей"
Сегодня — 27 апреля, понедельник / Воронежская
Название статьи: "Открытие клубов Spirit Fitness площадью не менее 1,6 тыс. кв. м в Воронеже и Липецке"
24 апреля, пятница / Москва
"Продажа бывшего офиса ПСБ на Таганке на аукционе"
24 апреля, пятница / Москва
Компания Level Group планирует создать в юго-восточной части Москвы Многофункциональный комплекс с отелем, термальным центром и спортивными объектами
24 апреля, пятница / Москва
"Более миллиона квадратных метров складских помещений доступны для использования в Московском регионе"
24 апреля, пятница / Санкт-Петербург
Инвестиции в петербургскую недвижимость уменьшились на 9% за первый квартал
24 апреля, пятница / Москва
В Бутырском районе планируют построить бизнес-центр с амфитеатром.
24 апреля, пятница / Москва
"ГК «Калашников» приобрела часть акций десяти швейных фабрик"
24 апреля, пятница / Москва
"«Восток Инвестиции» приобрел долю в 20% компании Tasty Coffee"
24 апреля, пятница / Москва
Магазин «М.Косметик» открыл свой первый филиал в Краснодарском крае, специализирующийся на товарах для дома.
24 апреля, пятница / Москва
В Тверском районе Москвы планируется создание дворцово-садового комплекса с водоемом рядом с жилым домом.