Купить дом 330 м² в коттеджном поселке Подмосковные вечера
Описание
Продаётся просторный дом 330 кв.м. без отделки в живописном, тихом охраняемом поселке Новой Москвы с жилым гостевым домом 85 кв.м. и баней.
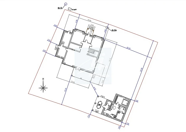
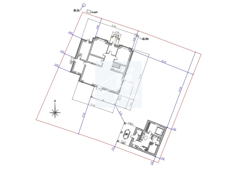
Дом площадью 330 квадратных метров расположен в тихом уютном поселке высокого качества жизни «Подмосковные вечера», участок с видом на лес, на 2-ой линии.
Дом построен из газосиликатных блоков в 2021 году и подходит для круглогодичного проживания. Кровля выполнена из металлочерепицы Grand Line, перекрытия — монолитные, фундамент – монолитная железобетонная плита, облицовочный кирпич BRAER, панорамные шестикамерные окна в цвет фасада, высота потолков – 3,3 м, лестница – монолитная железобетонная. Отопление осуществляется собственной котельной, что обеспечивает тепло и комфорт в любое время года.
Участок площадью 15 соток благоустроен, подведены все коммуникации: водоснабжение, канализация, электричество 25 квт., магистральный газ на границе участка. Имеется асфальтовый подъезд к участку, парковочные места на 3 машины.
Дом со свободной планировкой. Есть планировочное решение для 2-х этажного дома:
1 - прихожая, холл с гардеробной, кухня-столовая, гостиная с выходом на террасу, спальня, санузел, кладовая, подсобное помещение, котельная с дополнительным входом с улицы
2 - холл, спальня с двумя гардеробными, мастерская, 2 ванные комнаты, 2 спальни
Расположение дома идеально подходит как для семьи, так и для тех, кто ценит уединение и спокойствие. Хорошая транспортная доступность: всего 20 минут до МКАД по Киевскому или Калужскому шоссе, 15-20 минут до ближайших станций метро Саларьево и Филатов луг. Рядом с поселком находится остановка общественного транспорта с регулярно курсирующими автобусами.
Дом расположен в месте с развитой инфраструктурой. Рядом п.Первомайское, Птичное, д. Горчаково, г.Троицк с муниципальными садами, школами, спортивными комплексами, мед. учреждениями. Напротив поселка находится Vnukovo Sport Club, который предлагает различные виды спорта для детей и взрослых, ресторан Vesna c прекрасным SPA комплексом внутри. Рядом находится пятизвёздочный Теплеево Резорт с бассейном, тренажерным залом, SPA-салоном, ресторанами, прогулочными зонами, рыбалкой, спортивными и творческими занятиями для детей. Напротив расположен Торговый центр с магазином Перекресток, кафе, цветочным магазином, зоомагазином, одеждой, химчисткой. Также напротив поселка находится престижная школа Vnukovo International School.
ТОРГ!
Не упустите свой шанс стать владельцем этого прекрасного дома! Мы гарантируем безопасную сделку и юридическую поддержку нашим клиентам. Поможем одобрить ипотеку со сниженной ставкой. Звоните нам прямо сейчас, чтобы узнать больше информации и записаться на просмотр!
Дом площадью 330 квадратных метров расположен в тихом уютном поселке высокого качества жизни «Подмосковные вечера», участок с видом на лес, на 2-ой линии.
Дом построен из газосиликатных блоков в 2021 году и подходит для круглогодичного проживания. Кровля выполнена из металлочерепицы Grand Line, перекрытия — монолитные, фундамент – монолитная железобетонная плита, облицовочный кирпич BRAER, панорамные шестикамерные окна в цвет фасада, высота потолков – 3,3 м, лестница – монолитная железобетонная. Отопление осуществляется собственной котельной, что обеспечивает тепло и комфорт в любое время года.
Участок площадью 15 соток благоустроен, подведены все коммуникации: водоснабжение, канализация, электричество 25 квт., магистральный газ на границе участка. Имеется асфальтовый подъезд к участку, парковочные места на 3 машины.
Дом со свободной планировкой. Есть планировочное решение для 2-х этажного дома:
1 - прихожая, холл с гардеробной, кухня-столовая, гостиная с выходом на террасу, спальня, санузел, кладовая, подсобное помещение, котельная с дополнительным входом с улицы
2 - холл, спальня с двумя гардеробными, мастерская, 2 ванные комнаты, 2 спальни
Расположение дома идеально подходит как для семьи, так и для тех, кто ценит уединение и спокойствие. Хорошая транспортная доступность: всего 20 минут до МКАД по Киевскому или Калужскому шоссе, 15-20 минут до ближайших станций метро Саларьево и Филатов луг. Рядом с поселком находится остановка общественного транспорта с регулярно курсирующими автобусами.
Дом расположен в месте с развитой инфраструктурой. Рядом п.Первомайское, Птичное, д. Горчаково, г.Троицк с муниципальными садами, школами, спортивными комплексами, мед. учреждениями. Напротив поселка находится Vnukovo Sport Club, который предлагает различные виды спорта для детей и взрослых, ресторан Vesna c прекрасным SPA комплексом внутри. Рядом находится пятизвёздочный Теплеево Резорт с бассейном, тренажерным залом, SPA-салоном, ресторанами, прогулочными зонами, рыбалкой, спортивными и творческими занятиями для детей. Напротив расположен Торговый центр с магазином Перекресток, кафе, цветочным магазином, зоомагазином, одеждой, химчисткой. Также напротив поселка находится престижная школа Vnukovo International School.
ТОРГ!
Не упустите свой шанс стать владельцем этого прекрасного дома! Мы гарантируем безопасную сделку и юридическую поддержку нашим клиентам. Поможем одобрить ипотеку со сниженной ставкой. Звоните нам прямо сейчас, чтобы узнать больше информации и записаться на просмотр!
Расположение
г Москва, Филимонковский р-н, пер 1-й Рогозининский, д 44
Технические характеристики
Параметры
Тип сделки
прямая продажа
Свободные помещения в Коттеджный поселок Подмосковные вечера
Новость дня
Расширение возможностей для B2B-клиентов: Avito вводит новые услуги для строительства складов
На платформе Авито теперь доступна категория "Коммерческое строительство" в сегменте услуг, предлагающая широкий выбор специализированных работ и возведение объектов "под ключ" для бизнеса, что упрощает поиск подрядчиков и субподрядчиков для коммерческих проектов.
Все новости
Вчера — 5 мая, вторник / Москва
"Сбербанк и Альфа-банк подали в суд на производителя обоев «Артекс» с требованием объявить его банкротом"
Вчера — 5 мая, вторник / Красноярский
"Магазин «ВкусВилл» открыл отдел shop-in-shop в Красноярске через партнерство"
Вчера — 5 мая, вторник / Адыгея
Строительство жилого комплекса на территории туристического парка "Дегуакская поляна" в Адыгее начнется архитектурным проектом от "Семьи" объемом 360 тыс. квадратных метров.
Вчера — 5 мая, вторник / Москва
"Прогнозируется достижение рекордной площади 500 тыс. кв. м под light industrial в Московском регионе к 2026 году"
Вчера — 5 мая, вторник / Астраханская
Фитнес-клуб DDX Fitness открылся в Торгово-Развлекательном Центре «Ярмарка» в городе Астрахань.
Вчера — 5 мая, вторник / Москва
"Объем спроса на офисные помещения в Москве сократился вдвое за последний год"
Вчера — 5 мая, вторник / Москва
"Рост стоимости отделки офисов в Москве превышает уровень инфляции"
Вчера — 5 мая, вторник / Москва
В России впервые за 20 лет не было открыто ни одной новой гостиницы в первом квартале
Вчера — 5 мая, вторник / Москва
Спрос на услуги аренды апартаментов в Санкт-Петербурге упал на четверть.
Вчера — 5 мая, вторник / Москва
"Сеть магазинов 'Лента' запустила свой первый розничный магазин специализированных товаров для ремонта, дачи и сада в Шушарах"
4 мая, понедельник / Москва
Вложения в недвижимость России за первую половину текущего года составили 169,5 миллиарда рублей.
4 мая, понедельник / Москва
Российский складской рынок продолжает расти: площадь складских помещений превысит 60 млн кв. м к концу 2026 года
4 мая, понедельник / Москва
"Компания "Галс-Девелопмент" получила одобрение на строительство делового центра "Дубининский"."
4 мая, понедельник / Москва
Инвестиционный фонд "Бумеранг Капитал" стал владельцем половины сети кофеен "Цех 85"
4 мая, понедельник / Краснодарский
В Анапе откроется первый отель с инновационными IT-сервисами
4 мая, понедельник / Москва
Планируется строительство торгового центра площадью свыше 6 тыс. кв. м в Краснопахорском районе Москвы.
4 мая, понедельник / Москва
Смена собственника у клубов «Дикая орхидея» и «Дефиле»
4 мая, понедельник / Вологодская
"Прекращена деятельность "наливаек" и магазинов электронных сигарет в Вологодской области"
4 мая, понедельник / Москва
"Exeed перемещает производство из Подмосковья на площадку АГР в Шушарах"
4 мая, понедельник / Москва
На юге Москвы запланировано строительство ТПУ "Кленовый бульвар" на площади 2 гектара.