Описание
ЖК "Центральный" г. Звенигород, ул. Почтовая д. 36/2. Центр города.
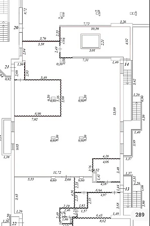
Продается отличное многофункциональное помещение свободного назначения, общей площадью 281. 8 м2. расположенное в цокольном этаже 5 этажного монолитного дома, без отделки, 2 отдельных входа (можно сделать 3-ий), центральное отопление, есть точки присоединения к воде и канализации, электричество 15 Квт, полноценные окна в приямках, дом на 1-линии от дороги, хороший пешеходный трафик.
Транспортная доступность:
Ближайшее шоссе к г. Звенигород - Новорижское шоссе, удаленность от МКАДа - 40 км. Ходят автобусные рейсы до Москвы (метро Строгино, Кунцевская, Тушинская). Также есть возможность доехать до столицы на электричке до Белорусского вокзала.
1 взрослый собственник, документы готовы к сделке. Показ по договоренности. AFY-800823450
Продается отличное многофункциональное помещение свободного назначения, общей площадью 281. 8 м2. расположенное в цокольном этаже 5 этажного монолитного дома, без отделки, 2 отдельных входа (можно сделать 3-ий), центральное отопление, есть точки присоединения к воде и канализации, электричество 15 Квт, полноценные окна в приямках, дом на 1-линии от дороги, хороший пешеходный трафик.
Транспортная доступность:
Ближайшее шоссе к г. Звенигород - Новорижское шоссе, удаленность от МКАДа - 40 км. Ходят автобусные рейсы до Москвы (метро Строгино, Кунцевская, Тушинская). Также есть возможность доехать до столицы на электричке до Белорусского вокзала.
1 взрослый собственник, документы готовы к сделке. Показ по договоренности. AFY-800823450
Расположение
Московская обл, г Одинцово, г Звенигород, ул Почтовая, д 36/2
Технические характеристики
Новость дня
Расширение возможностей для B2B-клиентов: Avito вводит новые услуги для строительства складов
На платформе Авито теперь доступна категория "Коммерческое строительство" в сегменте услуг, предлагающая широкий выбор специализированных работ и возведение объектов "под ключ" для бизнеса, что упрощает поиск подрядчиков и субподрядчиков для коммерческих проектов.
Все новости
Вчера — 6 мая, среда / Москва
Рекордное количество офисных помещений введено в Москве за первый квартал текущего года.
Вчера — 6 мая, среда / Москва
"Сокращение объемов складских помещений в Московском регионе достигло 14% за первый квартал"
Вчера — 6 мая, среда / Москва
Лишь 10% жилых комплексов располагаются вблизи берега Москвы-реки.
Вчера — 6 мая, среда / Москва
Цены на отели в Москве снизились впервые за два года
Вчера — 6 мая, среда / Карачаево-Черкесская
Капиталовложения в размере 5,83 млрд рублей на развитие курорта "Альто" на Домбае от компании "Плато Девелопмент"
Вчера — 6 мая, среда / Москва
Строительство склада площадью 80 тыс. кв. м для Ozon в Пушкино будет осуществлено компанией NK Group.
Вчера — 6 мая, среда / Санкт-Петербург
«Дача Фаберже в Санкт-Петербурге будет продана на аукционе компанией «Дом.РФ»»
Вчера — 6 мая, среда / Москва
Строительство коммерческих объектов в Москве упало на 91% за год
Вчера — 6 мая, среда / Москва
Как в Москве за первый квартал 2026 года построили 5,433 тыс. кв. м офисов, готовых к адаптации.
Вчера — 6 мая, среда / Санкт-Петербург
Продуктовые сети в России увеличили свои площади в торгово-развлекательном центре Петербурга на треть за последние 6 лет.
Вчера — 6 мая, среда / Москва
С начала года в Москве получили разрешение на строительство более 130 недвижимостей.
5 мая, вторник / Москва
"Сбербанк и Альфа-банк подали в суд на производителя обоев «Артекс» с требованием объявить его банкротом"
5 мая, вторник / Красноярский
"Магазин «ВкусВилл» открыл отдел shop-in-shop в Красноярске через партнерство"
5 мая, вторник / Адыгея
Строительство жилого комплекса на территории туристического парка "Дегуакская поляна" в Адыгее начнется архитектурным проектом от "Семьи" объемом 360 тыс. квадратных метров.
5 мая, вторник / Москва
"Прогнозируется достижение рекордной площади 500 тыс. кв. м под light industrial в Московском регионе к 2026 году"
5 мая, вторник / Астраханская
Фитнес-клуб DDX Fitness открылся в Торгово-Развлекательном Центре «Ярмарка» в городе Астрахань.
5 мая, вторник / Москва
"Объем спроса на офисные помещения в Москве сократился вдвое за последний год"
5 мая, вторник / Москва
"Рост стоимости отделки офисов в Москве превышает уровень инфляции"
5 мая, вторник / Москва
В России впервые за 20 лет не было открыто ни одной новой гостиницы в первом квартале
5 мая, вторник / Москва
Спрос на услуги аренды апартаментов в Санкт-Петербурге упал на четверть.