Описание
Номер объекта: 547612. Продажа торгового помещения в СВАО, район Марфино. 12 минут от метро Фонвизинская.
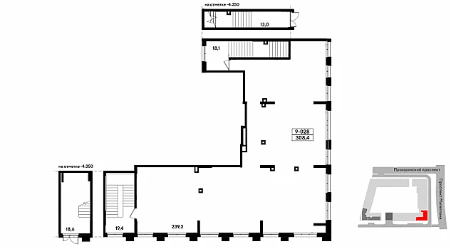
Площадь 349,6 м2, расположено полностью на 1-ом этаже пятиэтажного жилого дома.
Первая линия домов, зальная планировка, два отдельных входа с фасада и несколько запасных выходлв во двор, витрины по фасаду, много окон с внутренней стороны.
Сдано в аренду сетевому супермаркету «Магнолия». Договор аренды от 29.03.2024 г. сроком на 12 лет. МАП- 7% от ТО, но не менее 700.000 руб/месяц, УСНО. Коммунальные платежи и электричество оплачиваются арендатором отдельно. Электрические мощности -100 кВт, городские коммуникации. Реклама на фасаде. Помещение отлично просматривается с перекрестка и проезжей части.
1-я линия густонаселенного жилого массива. Напротив стоится большой новый ЖК Very.
Объект № 547612
Площадь 349,6 м2, расположено полностью на 1-ом этаже пятиэтажного жилого дома.
Первая линия домов, зальная планировка, два отдельных входа с фасада и несколько запасных выходлв во двор, витрины по фасаду, много окон с внутренней стороны.
Сдано в аренду сетевому супермаркету «Магнолия». Договор аренды от 29.03.2024 г. сроком на 12 лет. МАП- 7% от ТО, но не менее 700.000 руб/месяц, УСНО. Коммунальные платежи и электричество оплачиваются арендатором отдельно. Электрические мощности -100 кВт, городские коммуникации. Реклама на фасаде. Помещение отлично просматривается с перекрестка и проезжей части.
1-я линия густонаселенного жилого массива. Напротив стоится большой новый ЖК Very.
Объект № 547612
Расположение
г Москва, ул Малая Ботаническая, д 3
Фонвизинская
—
20 мин
Петровско-Разумовская
—
14 мин
Улица Милашенкова
—
14 мин
Технические характеристики
Параметры
Статус владельца объявления
агентство
Класс
b
Параметры помещения
Высота потолков
—
Новость дня
Расширение возможностей для B2B-клиентов: Avito вводит новые услуги для строительства складов
На платформе Авито теперь доступна категория "Коммерческое строительство" в сегменте услуг, предлагающая широкий выбор специализированных работ и возведение объектов "под ключ" для бизнеса, что упрощает поиск подрядчиков и субподрядчиков для коммерческих проектов.
Все новости
Вчера — 6 мая, среда / Москва
Рекордное количество офисных помещений введено в Москве за первый квартал текущего года.
Вчера — 6 мая, среда / Москва
"Сокращение объемов складских помещений в Московском регионе достигло 14% за первый квартал"
Вчера — 6 мая, среда / Москва
Лишь 10% жилых комплексов располагаются вблизи берега Москвы-реки.
Вчера — 6 мая, среда / Москва
Цены на отели в Москве снизились впервые за два года
Вчера — 6 мая, среда / Карачаево-Черкесская
Капиталовложения в размере 5,83 млрд рублей на развитие курорта "Альто" на Домбае от компании "Плато Девелопмент"
Вчера — 6 мая, среда / Москва
Строительство склада площадью 80 тыс. кв. м для Ozon в Пушкино будет осуществлено компанией NK Group.
Вчера — 6 мая, среда / Санкт-Петербург
«Дача Фаберже в Санкт-Петербурге будет продана на аукционе компанией «Дом.РФ»»
Вчера — 6 мая, среда / Москва
Строительство коммерческих объектов в Москве упало на 91% за год
Вчера — 6 мая, среда / Москва
Как в Москве за первый квартал 2026 года построили 5,433 тыс. кв. м офисов, готовых к адаптации.
Вчера — 6 мая, среда / Санкт-Петербург
Продуктовые сети в России увеличили свои площади в торгово-развлекательном центре Петербурга на треть за последние 6 лет.
Вчера — 6 мая, среда / Москва
С начала года в Москве получили разрешение на строительство более 130 недвижимостей.
5 мая, вторник / Москва
"Сбербанк и Альфа-банк подали в суд на производителя обоев «Артекс» с требованием объявить его банкротом"
5 мая, вторник / Красноярский
"Магазин «ВкусВилл» открыл отдел shop-in-shop в Красноярске через партнерство"
5 мая, вторник / Адыгея
Строительство жилого комплекса на территории туристического парка "Дегуакская поляна" в Адыгее начнется архитектурным проектом от "Семьи" объемом 360 тыс. квадратных метров.
5 мая, вторник / Москва
"Прогнозируется достижение рекордной площади 500 тыс. кв. м под light industrial в Московском регионе к 2026 году"
5 мая, вторник / Астраханская
Фитнес-клуб DDX Fitness открылся в Торгово-Развлекательном Центре «Ярмарка» в городе Астрахань.
5 мая, вторник / Москва
"Объем спроса на офисные помещения в Москве сократился вдвое за последний год"
5 мая, вторник / Москва
"Рост стоимости отделки офисов в Москве превышает уровень инфляции"
5 мая, вторник / Москва
В России впервые за 20 лет не было открыто ни одной новой гостиницы в первом квартале
5 мая, вторник / Москва
Спрос на услуги аренды апартаментов в Санкт-Петербурге упал на четверть.