Купить ПСН 427 м²
ID 873665
Цена
250 000 000 ₽
Ставка
585 480 ₽ / м²
Площадь
427 м²
Этаж
1 из -
ИФНС
7705
агентство недвижимости
г Москва, ул Валовая, д 3
На карте
Павелецкая
—
2 мин
Павелецкая
—
4 мин
Серпуховская
—
8 мин
Описание
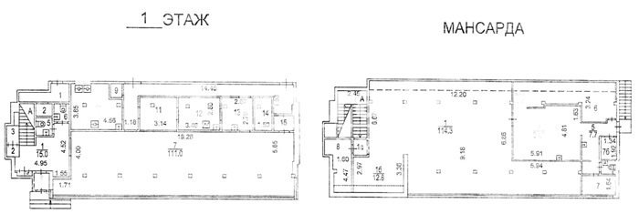
Предлагается в продажу отдельно стоящее одноэтажное здание с мансардой 427,3 м2. Готовый ресторан.В 3-х минутах пешком от метро Павелецкая. Здание 1999 года постройки.Первая линия домов. Три отдельных входа.1 этаж - 237 м2; мансарда - 190 м2. Витринные окна. Высота потолков до 3,3 м2.Свободная планировка и отделка с открытой кирпичной кладкой и натуральным деревом. Внутреннее пространство спланировано под ресторан с просторными залами для посетителей, профессиональными кухнями с горячим и холодным цехом, удобными зонами хранения продуктов. Горячий цех оснащен мангальной вытяжкой с гидрофильтром и системой очистки TION.Летняя веранда.Удобная зона разгрузки со стороны Валовой улицы. Высокий рекламный потенциал.Коммуникации центральные. Приточно-вытяжная вентиляция, кондиционирование. Технологическая вытяжка. Газ. Электрическая мощность - 100кВт.Земельный участок - 232 м2 в аренде до 2031г.Виды разрешенного использования - объекты размещения организаций общественного питания (1.2.5).Форма сделки - продажа юр.лица. Объект №3100-930585.
Расположение
г Москва, ул Валовая, д 3
Павелецкая
—
2 мин
Павелецкая
—
4 мин
Серпуховская
—
8 мин
Технические характеристики
Параметры
Статус владельца объявления
агентство
Отделка
офисная отделка
Новость дня
Все новости
Сегодня — 30 апреля, четверг / Ставропольский
В Кисловодске начался проект строительства инвестиционного отеля "Реликт"
Сегодня — 30 апреля, четверг / Москва
Ресторан «Долина 5165» и магазин Sokolov теперь доступны посетителям ТРЦ Avenue Sever
Сегодня — 30 апреля, четверг / Москва
"Новый флагманский магазин под названием «Флаувау» открыл свои двери на Мясницкой улице"
Сегодня — 30 апреля, четверг / Москва
"Уровень вакансии на складах в Московском регионе достиг 5,4% из-за увеличения предложений по субаренде"
Сегодня — 30 апреля, четверг / Москва
"Прогнозируется незначительный прирост числа туристов в первом квартале 2026 года - всего 2,8%"
Сегодня — 30 апреля, четверг / Москва
Компания "Ориентир" планирует вложить до 150 млрд рублей в расширение бизнеса и развитие новых секторов.
Сегодня — 30 апреля, четверг / Москва
"Завершено строительство наземной парковки на 400 автомобильных мест в парке «Ривер Парк Коломенское»"
Сегодня — 30 апреля, четверг / Москва
Скорось открытия новых магазинов «Лэтуаль» снизится - 150 точек закроются к 2026 году.
Сегодня — 30 апреля, четверг / Москва
Смайл-бар сети "Белая точка" теперь доступен посетителям ТЦ "Левел Причальный"
Вчера — 29 апреля, среда / Москва
Московский цех открыл производство 3D-принтеров для металлической печати.
Вчера — 29 апреля, среда / Москва
БМ-банк завершил продажу большей части площадей в ТЦ «Весна» на Новом Арбате.
Вчера — 29 апреля, среда / Москва
Перефразированное название: "Сеть магазинов 'Жизньмарт' возобновляет свою деятельность в Челябинске"
Вчера — 29 апреля, среда / Санкт-Петербург
Сервисный офис «Практик» начал свою работу на Октябрьской набережной в Санкт-Петербурге.
Вчера — 29 апреля, среда / Санкт-Петербург
Строительство складских помещений в Санкт-Петербурге и Ленинградской области увеличилось в 2,5 раза.
Вчера — 29 апреля, среда / Москва
Москва увеличила объем строительства в рамках программы МПТ до 9,5 миллионов квадратных метров
Вчера — 29 апреля, среда / Санкт-Петербург
Соседский центр "ЖИВИ Клуб" открыл свои двери в Новоселье
Вчера — 29 апреля, среда / Москва
"Завершено строительство пятиэтажной наземной парковки в районе Нагатинский Затон"
Вчера — 29 апреля, среда / Санкт-Петербург
Рекордный уровень строительства складов зафиксирован в Санкт-Петербурге и Ленинградской области
Вчера — 29 апреля, среда / Москва
Аренда складов в Москве снизилась на 25%
28 апреля, вторник / Москва
"Появление двух новых брендов на российском рынке в начале 2026 года"