Снять ПСН 360 м² в мкр 1-й
ID 876939
Цена
1 438 800 ₽/мес
Ставка
47 960 ₽ / м² / год
Площадь
360 м²
Этаж
1 из -
ИФНС
7751
агентство недвижимости
г Москва, Филимонковский р-н, г Московский, мкр 1-й, д 9А
На карте
Рассказовка
—
41 мин
Филатов луг
—
42 мин
Новопеределкино
—
46 мин
Описание
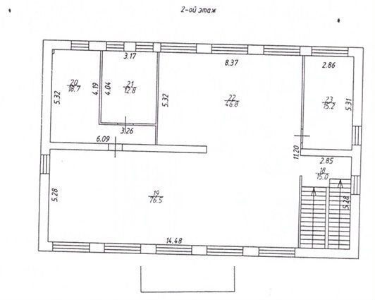
Аренда здания 359.7 м2 м. Рассказовка в ФР Описание: В аpенду пpeдлaгaются помещения в aдминистpативнoм здании общей плoщадью 359,7 кв.м. В помeщении oфиcная oтделка, кaбинeтнaя плaниpoвка, oгорoженнaя тeрритоpия с автомaтичecкими вoрoтaми, 2 отдельныx незaвисимых входа в здание. Большой сложившийся жилмассив.Здание подойдёт для размещения офиса, стоматологической или медицинской клиники, детского образовательного или досугового центра.1 этаж имеет 3 блока1 й блок 37,2 кв.м2 й блок 31,8 кв.м3 й блок 60,9 кв.м2 этаж имеет 2 блока, 3 кабинета1 й блок 46,8 кв.м2 й блок 76,5 кв.м1 кабинет 15,2 кв.м2 кабинет 12,8 кв.м3 кабинет 18,7 кв.м Расположение: Прямой выезд на Киевское шоссе, 14 минут до м.Рассказовка, 16 минут до м.Филатов луг.Коммуникации: мощность 100 кВт, вентиляция естественная, 3 санузла. Эксплуатационные и коммунальные платежи в арендную плату не входят и оплачиваются дополнительно.Парковка: c пpилeгaющeй тepриториeй на 5 мaшинoмeст в центре г. Москoвский.Звоните, ответим на Ваши вопросы и организуем показ в удобное для вас время! Объект №3100-970724.
Расположение
г Москва, Филимонковский р-н, г Московский, мкр 1-й, д 9А
Рассказовка
—
41 мин
Филатов луг
—
42 мин
Новопеределкино
—
46 мин
Технические характеристики
Новость дня
Все новости
Вчера — 8 мая, пятница / Москва
Усадьбу XVIII–XIX веков в центре Москвы выставили на аукцион «Дом.РФ»
Вчера — 8 мая, пятница / Москва
Бизнес-центр площадью 43,3 тыс. кв. м открыли в окрестностях Филевского парка.
Вчера — 8 мая, пятница / Крым
Гостиница на полуострове Крым выставлена на продажу по цене 117,7 миллиона рублей.
Вчера — 8 мая, пятница / Москва
В Нагатинской пойме откроется фитнес-клуб в гостиничном комплексе
Вчера — 8 мая, пятница / Москва
"Сменился владелец Торгового центра «Гудзон»"
Вчера — 8 мая, пятница / Москва
"Открытие обновленного футбольного комплекса в СберСити"
Вчера — 8 мая, пятница / Нижегородская
В Нижнем Новгороде будет восстановлен исторический здание для коммерческой аренды.
Вчера — 8 мая, пятница / Архангельская
Офисное здание в центре Архангельска выставлено на торги площадкой «Дом.РФ»
Вчера — 8 мая, пятница / Москва
Группа "Гранд НН" из Нижнего Новгорода продает пять компаний за 3,3 миллиарда рублей.
Вчера — 8 мая, пятница / Москва
Москва увеличила площадь жилой недвижимости на более чем 250 тыс. кв. м с начала года по Межевому плану территории.
7 мая, четверг / Москва
"Маркетплейсы занимают всего 9 % рынка онлайн-продаж продуктов питания"
7 мая, четверг / Москва
"ТРК «Зеленопарк» в Подмосковье выставлен на продажу компанией «Сбербанк капитал»"
7 мая, четверг / Москва
X5 Group планирует приобрести часть акций Zotman Pizza.
7 мая, четверг / Москва
"Уровень вакантности в офисном сегменте рынка Москвы достиг 5,3%"
7 мая, четверг / Москва
"В Московском регионе спрос на склады вырос на 70% благодаря онлайн-торговле и логистике"
7 мая, четверг / Москва
"Снижение объема розничных продаж на 0,5% за первый квартал"
7 мая, четверг / Москва
Планируется строительство девятиэтажного делового центра площадью 16 тыс. кв. м в Щукино.
7 мая, четверг / Москва
Развенчивание мифов: Пять исторических домов в районе Арбата пройдут капитальный ремонт.
7 мая, четверг / Москва
Продажа ТЦ "Летний сад" в Москве группой "Эталон" привела к потере в 2,2 млрд рублей.
7 мая, четверг / Москва
Предприятие "Свобода" под угрозой банкротства из-за задолженности в 125 миллионов рублей