Купить ПСН 1023 м²
ID 1016236
Цена
235 000 000 ₽
Ставка
229 717 ₽ / м²
Площадь
1023 м²
Этаж
1 из -
ИФНС
7743
агентство недвижимости
г Москва, ш Головинское, д 11
На карте
Водный стадион
—
6 мин
Балтийская
—
18 мин
Коптево
—
19 мин
Описание
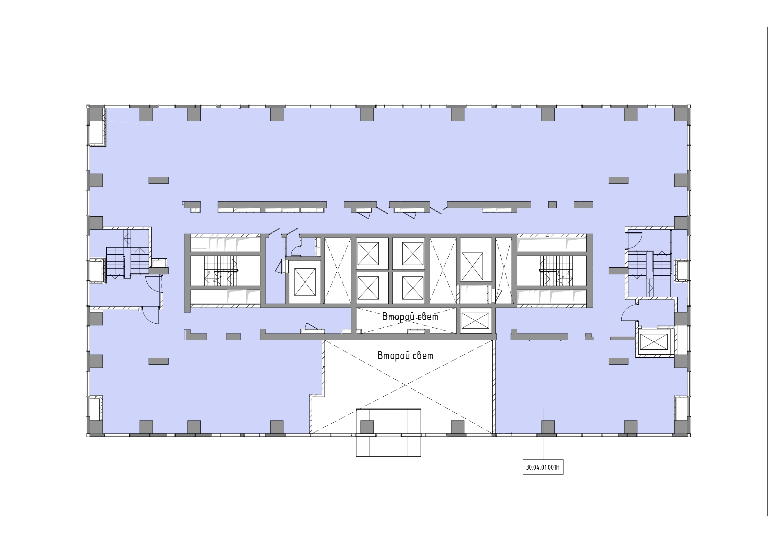
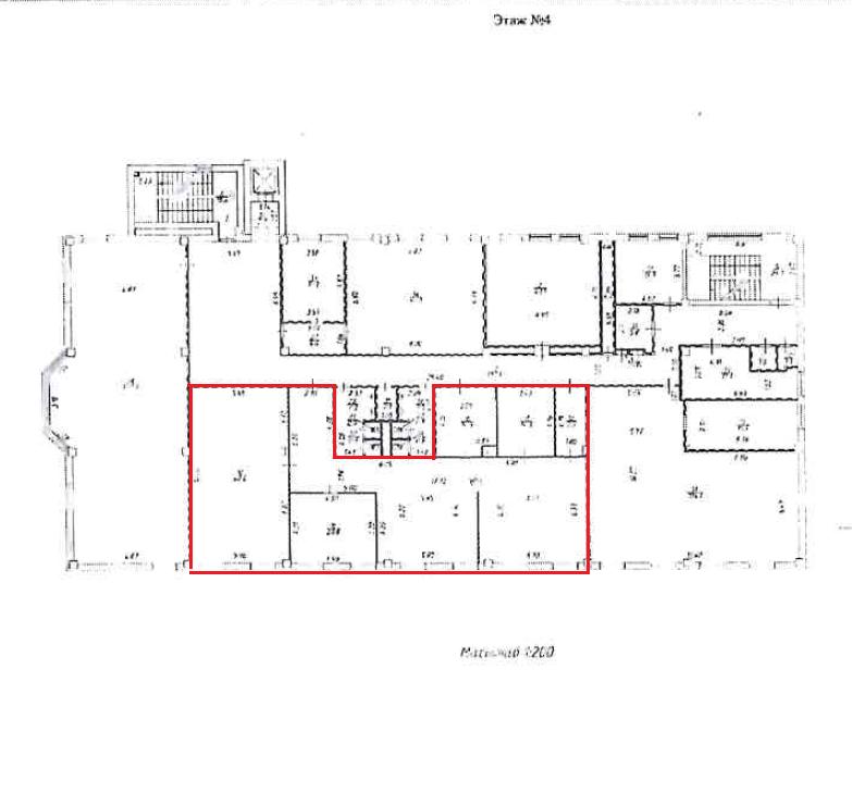
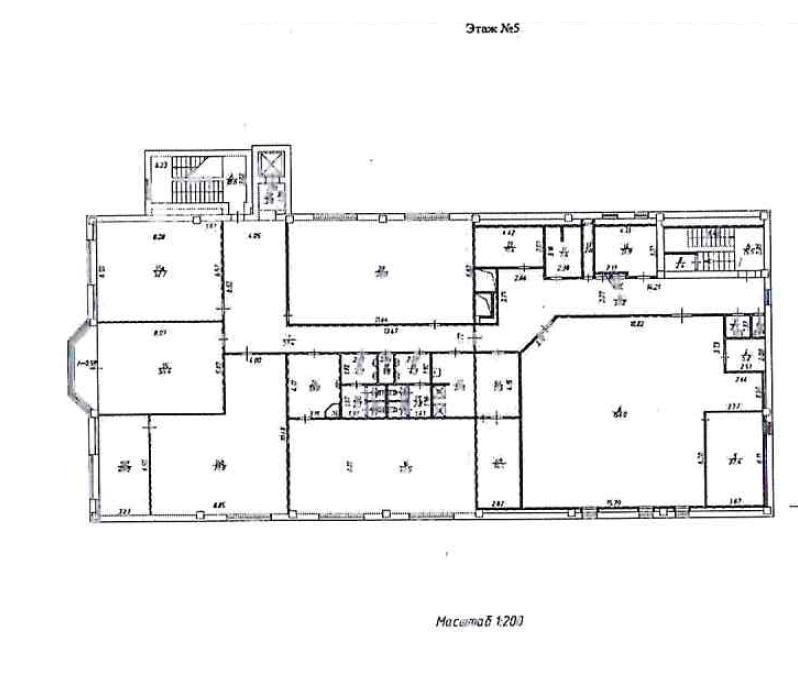
Лот №938278 Продается отдельно стоящее здание с собственной огороженной территорией в жилом комплексе класса Комфорт Плюс «Талисман на Водном». Объект расположен в шести минутах ходьбы от станции метро «Водный Стадион». Общая площадь здания составляет 1 022,9 м² и
включает в себя полноценных три этажа, цоколь и подвал.
В здании преимущественно смешанная планировка, высокие потолки и четыре отдельных входа, пассажирский лифт до минус первого этажа. Помещения соответствует пожарной и инженерно-технической безопасности. проведены все коммуникации. Объект предлагается в формате отделки «Shell&Core», что предоставляет новому собственнику свободу для реализации собственных планировочных и дизайнерских решений.
Ключевым преимуществом является расположение объекта на первой линии в районе Головинский Северного административного округа Москвы. В непосредственной близости пролегает Ленинградское шоссе, что обеспечивает отличную транспортную доступность. Дорога до центра столицы на общественном или личном транспорте занимает порядка 15-20 минут.
Универсальность планировочных решений позволяет разместить различные виды коммерческой деятельности, включая медицинский центр, гостиницу, образовательный центр, детский сад, торговые площади, офисы, ресторан, кафе. Рядом со зданием существует возможность организации парковки на пятнадцать машиномест.
Оперативный показ. По запросу предоставляем планировку, фото и видео-материалы.
Чтобы получить ПОДРОБНУЮ ПРЕЗЕНТАЦИЮ С ПЛАНИРОВКОЙ И ФОТОГРАФИЯМИ на этот объект, звоните. Высылаем в течение 15 минут по запросу!
☎ Конт. лицо: Наталья Евгеньевна, доб. 258, ЛОТ №938278
включает в себя полноценных три этажа, цоколь и подвал.
В здании преимущественно смешанная планировка, высокие потолки и четыре отдельных входа, пассажирский лифт до минус первого этажа. Помещения соответствует пожарной и инженерно-технической безопасности. проведены все коммуникации. Объект предлагается в формате отделки «Shell&Core», что предоставляет новому собственнику свободу для реализации собственных планировочных и дизайнерских решений.
Ключевым преимуществом является расположение объекта на первой линии в районе Головинский Северного административного округа Москвы. В непосредственной близости пролегает Ленинградское шоссе, что обеспечивает отличную транспортную доступность. Дорога до центра столицы на общественном или личном транспорте занимает порядка 15-20 минут.
Универсальность планировочных решений позволяет разместить различные виды коммерческой деятельности, включая медицинский центр, гостиницу, образовательный центр, детский сад, торговые площади, офисы, ресторан, кафе. Рядом со зданием существует возможность организации парковки на пятнадцать машиномест.
Оперативный показ. По запросу предоставляем планировку, фото и видео-материалы.
Чтобы получить ПОДРОБНУЮ ПРЕЗЕНТАЦИЮ С ПЛАНИРОВКОЙ И ФОТОГРАФИЯМИ на этот объект, звоните. Высылаем в течение 15 минут по запросу!
☎ Конт. лицо: Наталья Евгеньевна, доб. 258, ЛОТ №938278
Расположение
г Москва, ш Головинское, д 11
Водный стадион
—
6 мин
Балтийская
—
18 мин
Коптево
—
19 мин
Технические характеристики
Новость дня
Все новости
Сегодня — 29 апреля, среда / Москва
Московский цех открыл производство 3D-принтеров для металлической печати.
Сегодня — 29 апреля, среда / Москва
БМ-банк завершил продажу большей части площадей в ТЦ «Весна» на Новом Арбате.
Сегодня — 29 апреля, среда / Москва
Перефразированное название: "Сеть магазинов 'Жизньмарт' возобновляет свою деятельность в Челябинске"
Сегодня — 29 апреля, среда / Санкт-Петербург
Сервисный офис «Практик» начал свою работу на Октябрьской набережной в Санкт-Петербурге.
Сегодня — 29 апреля, среда / Санкт-Петербург
Строительство складских помещений в Санкт-Петербурге и Ленинградской области увеличилось в 2,5 раза.
Сегодня — 29 апреля, среда / Москва
Москва увеличила объем строительства в рамках программы МПТ до 9,5 миллионов квадратных метров
Сегодня — 29 апреля, среда / Санкт-Петербург
Соседский центр "ЖИВИ Клуб" открыл свои двери в Новоселье
Сегодня — 29 апреля, среда / Москва
"Завершено строительство пятиэтажной наземной парковки в районе Нагатинский Затон"
Сегодня — 29 апреля, среда / Санкт-Петербург
Рекордный уровень строительства складов зафиксирован в Санкт-Петербурге и Ленинградской области
Сегодня — 29 апреля, среда / Москва
Аренда складов в Москве снизилась на 25%
Вчера — 28 апреля, вторник / Москва
"Появление двух новых брендов на российском рынке в начале 2026 года"
Вчера — 28 апреля, вторник / Москва
27-этажный бизнес-центр класса А в Коммунарке завершает процесс утверждения своего архитектурного дизайна
Вчера — 28 апреля, вторник / Москва
Перефразированное название статьи: "Открытие первого флагманского магазина Lumique в «Авиапарке»"
Вчера — 28 апреля, вторник / Москва
"Подольская фабрика офсетной печати выставляет на приватизацию 49% своих акций"
Вчера — 28 апреля, вторник / Москва
Самострои в ЮВАО: площадь почти 4 тыс. кв. м за первый квартал
Вчера — 28 апреля, вторник / Москва
Иск на 11,7 млрд рублей подан банком «Санкт-Петербург» к структуре «Гранели»
Вчера — 28 апреля, вторник / Москва
"«Яндекс Фабрика» запускает цепь офлайн-магазинов в Москве"
Вчера — 28 апреля, вторник / Москва
Детская сеть магазинов "Кораблик" столкнулась с финансовыми трудностями
Вчера — 28 апреля, вторник / Москва
Снижение загрузки премиум отелей Москвы в первом квартале до 69,4%
Вчера — 28 апреля, вторник / Крым
"Продается комплекс солнечных электростанций на полуострове Крым"