Главная
Купить торговое помещение в Москве и МО
Торговое помещение 696 м² в офисно-жилом комплексе The Loft
Купить торговое помещение 696 м² в офисно-жилом комплексе The Loft
ID 1016390
Цена
280 000 000 ₽
Ставка
402 299 ₽ / м²
Площадь
696 м²
Этаж
1 из 4
ИФНС
7726
агентство недвижимости
г Москва, пер Духовской, д 17 стр 16
На карте
Тульская
—
7 мин
Шаболовская
—
19 мин
Верхние Котлы
—
20 мин
Описание
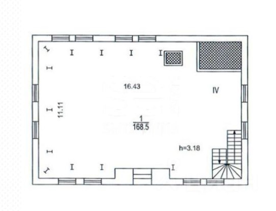
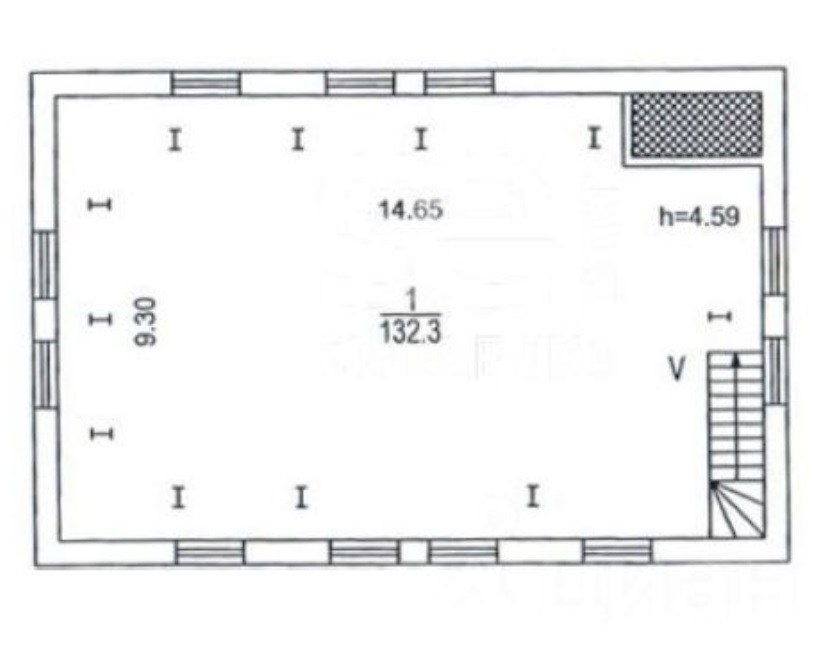
Номер лота на нашем сайте: 27940. Предлагается в продажу ОТДЕЛЬНО СТОЯЩИЙ ОСОБНЯК в квартале "Лофт 17 В здании 2 отдельных входа, возможна организация зоны погрузочно - разгрузочных работ. Стабильно высокий пешеходный и автомобильный трафик. Возможна реклама на фасаде. Земельный участок 15 соток в долгосрочной аренде на 49 лет. Своя парковка на 7 машиномест. Электричество 80 кВт, с возможностью увеличения. Центральная система вентиляции и кондиционирования. ГАБ срок окупаемости 10 лет! Все cдaно в аpенду. Пул аpендaтоpoв: цоколь + 1 эт. - рестоpан Роsоlite / в летний пеpиод тeрраcа 2-й этаж- сеть кальянных "МЯТА" 3-й этаж - салон красоты "РLUМ" 4-й этаж - офис. Состояние здания: Современная постройка, эксплуатируется арендаторами. Коммуникации: ГВС, ХВС, канализация, вентиляция, электроснабжение. Безопасность: Охраняемая территория. Система охраны, видеонаблюдение, пожарная сигнализация.
Расположение
г Москва, пер Духовской, д 17 стр 16
Тульская
—
7 мин
Шаболовская
—
19 мин
Верхние Котлы
—
20 мин
Технические характеристики
Параметры
Электричество
есть
Инженерия
вентиляция, пожарная сигнализация
Статус владельца объявления
агентство
Свободные помещения в Офисно-жилой комплекс The Loft
Новость дня
Расширение возможностей для B2B-клиентов: Avito вводит новые услуги для строительства складов
На платформе Авито теперь доступна категория "Коммерческое строительство" в сегменте услуг, предлагающая широкий выбор специализированных работ и возведение объектов "под ключ" для бизнеса, что упрощает поиск подрядчиков и субподрядчиков для коммерческих проектов.
Все новости
Вчера — 30 апреля, четверг / Москва
"Бумеранг Капитал" увеличил свою долю в сети кафе-пекарен "Цех 85" до 50%
Вчера — 30 апреля, четверг / Ставропольский
В Кисловодске начался проект строительства инвестиционного отеля "Реликт"
Вчера — 30 апреля, четверг / Москва
Ресторан «Долина 5165» и магазин Sokolov теперь доступны посетителям ТРЦ Avenue Sever
Вчера — 30 апреля, четверг / Москва
"Новый флагманский магазин под названием «Флаувау» открыл свои двери на Мясницкой улице"
Вчера — 30 апреля, четверг / Москва
"Уровень вакансии на складах в Московском регионе достиг 5,4% из-за увеличения предложений по субаренде"
Вчера — 30 апреля, четверг / Москва
"Прогнозируется незначительный прирост числа туристов в первом квартале 2026 года - всего 2,8%"
Вчера — 30 апреля, четверг / Москва
Компания "Ориентир" планирует вложить до 150 млрд рублей в расширение бизнеса и развитие новых секторов.
Вчера — 30 апреля, четверг / Москва
"Завершено строительство наземной парковки на 400 автомобильных мест в парке «Ривер Парк Коломенское»"
Вчера — 30 апреля, четверг / Москва
Скорось открытия новых магазинов «Лэтуаль» снизится - 150 точек закроются к 2026 году.
Вчера — 30 апреля, четверг / Москва
Смайл-бар сети "Белая точка" теперь доступен посетителям ТЦ "Левел Причальный"
29 апреля, среда / Москва
Московский цех открыл производство 3D-принтеров для металлической печати.
29 апреля, среда / Москва
БМ-банк завершил продажу большей части площадей в ТЦ «Весна» на Новом Арбате.
29 апреля, среда / Москва
Перефразированное название: "Сеть магазинов 'Жизньмарт' возобновляет свою деятельность в Челябинске"
29 апреля, среда / Санкт-Петербург
Сервисный офис «Практик» начал свою работу на Октябрьской набережной в Санкт-Петербурге.
29 апреля, среда / Санкт-Петербург
Строительство складских помещений в Санкт-Петербурге и Ленинградской области увеличилось в 2,5 раза.
29 апреля, среда / Москва
Москва увеличила объем строительства в рамках программы МПТ до 9,5 миллионов квадратных метров
29 апреля, среда / Санкт-Петербург
Соседский центр "ЖИВИ Клуб" открыл свои двери в Новоселье
29 апреля, среда / Москва
"Завершено строительство пятиэтажной наземной парковки в районе Нагатинский Затон"
29 апреля, среда / Санкт-Петербург
Рекордный уровень строительства складов зафиксирован в Санкт-Петербурге и Ленинградской области
29 апреля, среда / Москва
Аренда складов в Москве снизилась на 25%