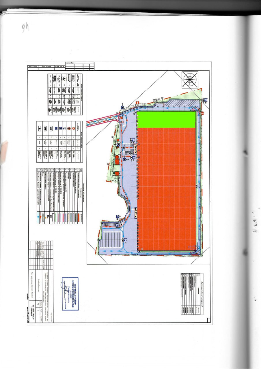
Снять склад 5100 м² в д Большое Толбино
ID 1178360
Цена
5 100 000 ₽/мес
Ставка
12 000 ₽ / м² / год
Площадь
5100 м²
Класс
не указан
Этаж
1 из -
ИФНС
5074
агентство недвижимости
Московская обл, г Подольск, д Большое Толбино, ул Дорожная, д 1
На карте
Аннино
—
27 мин
Описание
Арт. 53559828 Прямая аренда от Собственника. Складской комплекс класса "В+".
Скидки! Арендные каникулы! - все обсуждается!
Высота потолков - 9м.
Пол - антипыль.
3-е ворот с нулевой отметкой.
Эл. мощности - 150 кВт.
Есть все коммуникации: отопление, водоснабжение, канализация.
Пожарная сигнализация, гидранты.
Охраняемая и огороженная территория. Круглосуточный доступ 24/7.
Скидки! Арендные каникулы! - все обсуждается!
Высота потолков - 9м.
Пол - антипыль.
3-е ворот с нулевой отметкой.
Эл. мощности - 150 кВт.
Есть все коммуникации: отопление, водоснабжение, канализация.
Пожарная сигнализация, гидранты.
Охраняемая и огороженная территория. Круглосуточный доступ 24/7.
Расположение
Московская обл, г Подольск, д Большое Толбино, ул Дорожная, д 1
Аннино
—
27 мин
Технические характеристики
Новость дня
Все новости
Сегодня — 21 апреля, вторник / Москва
"Компания «Арнест» расширяет ассортимент продукции на узбекском рынке"
Сегодня — 21 апреля, вторник / Москва
Henkel защитила свои товарные знаки в России
Сегодня — 21 апреля, вторник / Москва
"Компания «Карго-Трейд» увеличивает свою деятельность на территории индустриального парка «Смирнов»"
Сегодня — 21 апреля, вторник / Москва
Сокращение объема инвестиций в недвижимость Московского региона за первый квартал на 20%
Сегодня — 21 апреля, вторник / Москва
"Компания «Магнит» начала производство замороженных полуфабрикатов на основе теста"
Сегодня — 21 апреля, вторник / Москва
"Открытие производства компрессионного трикотажа в парке "Руднево" в рамках индустриализации".
Сегодня — 21 апреля, вторник / Москва
Бизнес-центр "Кубик" в Мякинино приобретен компанией "ВИМ Сбережения"
Сегодня — 21 апреля, вторник / Москва
Parametr оборудован корпусом формата "флекс бокс" для промпарка Кувекино.
Сегодня — 21 апреля, вторник / Москва
Объем новых торговых помещений в Москве уменьшился до 9,5 тыс. квадратных метров за первый квартал
Сегодня — 21 апреля, вторник / Красноярский
"Ozon открыл новый склад в Красноярском крае"
Вчера — 20 апреля, понедельник / Санкт-Петербург
«"Охта Групп" внесла изменения в дизайн лофт-квартала "Скороход"»
Вчера — 20 апреля, понедельник / Санкт-Петербург
"Реставрация исторической трансформаторной подстанции в Петербурге завершена"
Вчера — 20 апреля, понедельник / Москва
Собственость на российскую сеть кофеен Cofix может быть передана новому владельцу
Вчера — 20 апреля, понедельник / Москва
UPECO приобрела аренду площади в размере 966 квадратных метров в бизнес-парке "Сколково Парк".
Вчера — 20 апреля, понедельник / Москва
"Реконструкция ТРЦ «Европа» стартует в Калининграде"
Вчера — 20 апреля, понедельник / Москва
"Площадь ОЭЗ «Технополис Москва» увеличилась на 38 гектаров"
Вчера — 20 апреля, понедельник / Москва
"Строительство крытого футбольного манежа в Восточном Административном Округе обойдется в 220 миллионов рублей"
Вчера — 20 апреля, понедельник / Москва
В Краснопахорском районе откроется торговая и бытовая зона площадью свыше 800 квадратных метров.
Вчера — 20 апреля, понедельник / Москва
ГК ФСК запустила новый завод по производству строительных материалов в Зеленограде.
Вчера — 20 апреля, понедельник / Санкт-Петербург
Логистическая компания арендовала офисное помещение площадью 730 квадратных метров в бизнес-центре Leader Tower