Купить склад 49780 м² в п Раменской агрохимстанции (РАОС)
ID 1252949
Цена
5 674 920 000 ₽
Ставка
114 000 ₽ / м²
Площадь
49780 м²
Класс
не указан
Этаж
1 из -
ИФНС
5040
агентство недвижимости
Московская обл, г Раменское, п Раменской агрохимстанции (РАОС)
На карте
Котельники
—
21 мин
Описание
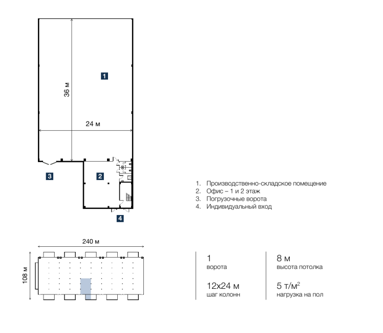
Арт. 101180951 Продается производственно-складское помещение в промышленном парке общая площадь парка 12,4 Га (строительство на 50 тыс кв.м).
Общая площадь помещения 49780 кв.м. (возможно деление).
Высота потолков 8 м.
Полы антипыль. Шаг колонн 12*24. Нагрузка 5 тонн /м2.
В каждом блоке ворота на 0 (нулевой отметке) или докового типа (на выбор).
Электрическая мощность 1000 кВт (возможно увеличение).
Все коммуникации. Автономная котельная.
Спринклерная система пожаротушения и оповещения.
Оптоволоконные телекоммуникации.
Офисные помещения с отделкой расположены на 2х уровнях.
Идеальная транспортная доступность от м. Котельники 21 минута, от МКАД 24 км.
Инфраструктура точки питания в пешей доступности, продуктовые магазины, остановки общественного транспорта.
Парковка для резидентов и гостевая. Есть аналогичные объекты по данному направлению.
Подробности по телефону. Оперативный показ.
Общая площадь помещения 49780 кв.м. (возможно деление).
Высота потолков 8 м.
Полы антипыль. Шаг колонн 12*24. Нагрузка 5 тонн /м2.
В каждом блоке ворота на 0 (нулевой отметке) или докового типа (на выбор).
Электрическая мощность 1000 кВт (возможно увеличение).
Все коммуникации. Автономная котельная.
Спринклерная система пожаротушения и оповещения.
Оптоволоконные телекоммуникации.
Офисные помещения с отделкой расположены на 2х уровнях.
Идеальная транспортная доступность от м. Котельники 21 минута, от МКАД 24 км.
Инфраструктура точки питания в пешей доступности, продуктовые магазины, остановки общественного транспорта.
Парковка для резидентов и гостевая. Есть аналогичные объекты по данному направлению.
Подробности по телефону. Оперативный показ.
Расположение
Московская обл, г Раменское, п Раменской агрохимстанции (РАОС)
Котельники
—
21 мин
Технические характеристики
Новость дня
Расширение возможностей для B2B-клиентов: Avito вводит новые услуги для строительства складов
На платформе Авито теперь доступна категория "Коммерческое строительство" в сегменте услуг, предлагающая широкий выбор специализированных работ и возведение объектов "под ключ" для бизнеса, что упрощает поиск подрядчиков и субподрядчиков для коммерческих проектов.
Все новости
Вчера — 6 мая, среда / Москва
Рекордное количество офисных помещений введено в Москве за первый квартал текущего года.
Вчера — 6 мая, среда / Москва
"Сокращение объемов складских помещений в Московском регионе достигло 14% за первый квартал"
Вчера — 6 мая, среда / Москва
Лишь 10% жилых комплексов располагаются вблизи берега Москвы-реки.
Вчера — 6 мая, среда / Москва
Цены на отели в Москве снизились впервые за два года
Вчера — 6 мая, среда / Карачаево-Черкесская
Капиталовложения в размере 5,83 млрд рублей на развитие курорта "Альто" на Домбае от компании "Плато Девелопмент"
Вчера — 6 мая, среда / Москва
Строительство склада площадью 80 тыс. кв. м для Ozon в Пушкино будет осуществлено компанией NK Group.
Вчера — 6 мая, среда / Санкт-Петербург
«Дача Фаберже в Санкт-Петербурге будет продана на аукционе компанией «Дом.РФ»»
Вчера — 6 мая, среда / Москва
Строительство коммерческих объектов в Москве упало на 91% за год
Вчера — 6 мая, среда / Москва
Как в Москве за первый квартал 2026 года построили 5,433 тыс. кв. м офисов, готовых к адаптации.
Вчера — 6 мая, среда / Санкт-Петербург
Продуктовые сети в России увеличили свои площади в торгово-развлекательном центре Петербурга на треть за последние 6 лет.
Вчера — 6 мая, среда / Москва
С начала года в Москве получили разрешение на строительство более 130 недвижимостей.
5 мая, вторник / Москва
"Сбербанк и Альфа-банк подали в суд на производителя обоев «Артекс» с требованием объявить его банкротом"
5 мая, вторник / Красноярский
"Магазин «ВкусВилл» открыл отдел shop-in-shop в Красноярске через партнерство"
5 мая, вторник / Адыгея
Строительство жилого комплекса на территории туристического парка "Дегуакская поляна" в Адыгее начнется архитектурным проектом от "Семьи" объемом 360 тыс. квадратных метров.
5 мая, вторник / Москва
"Прогнозируется достижение рекордной площади 500 тыс. кв. м под light industrial в Московском регионе к 2026 году"
5 мая, вторник / Астраханская
Фитнес-клуб DDX Fitness открылся в Торгово-Развлекательном Центре «Ярмарка» в городе Астрахань.
5 мая, вторник / Москва
"Объем спроса на офисные помещения в Москве сократился вдвое за последний год"
5 мая, вторник / Москва
"Рост стоимости отделки офисов в Москве превышает уровень инфляции"
5 мая, вторник / Москва
В России впервые за 20 лет не было открыто ни одной новой гостиницы в первом квартале
5 мая, вторник / Москва
Спрос на услуги аренды апартаментов в Санкт-Петербурге упал на четверть.