Описание
Полноценная двухкомнтаная квартира в ЖК комфорт-класса ЦВЕТОЧНЫЕ ПОЛЯНЫ.
Прописка Москва
7/16 эт
Ключи в Iкв. 2026г.
Переуступка прав требований
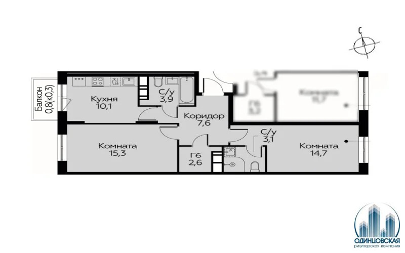
Общая площадь - 58,10 кв.м.
Кухня - 10,1 кв.м
спальня - 15,3 кв.м.
спальня - 14,7 кв.м.
два санузла - 3,9 кв.м. и 3,1 кв.м.
холл - 7,6 кв.м.
гардеробная - 2,6 кв м
Квартира с чистовой отделкой + кухня с техникой (кухонный гарнитур, варочная панель, духовой шкаф, посудомойка, вытяжка, холодильник)
ЖК Цветочные поляны - это не просто дом, это целый город в городе. Здесь есть все необходимое для комфортной жизни: магазины, кафе, фитнес-центры, салоны красоты, детские сады и школы. Просторные гостевые зоны, уютные холлы, пешеходный бульвар с ручьем и живописными растениями - все это делает жизнь в этом комплексе комфортной и уютной.
У ЖК удобная транспортная доступность - до метро Филатов Луг, Саларьево или Аэропорт Внуково на общественном транспорте или на автомобиле всего 15 минут до станций " AFY-345525749
Прописка Москва
7/16 эт
Ключи в Iкв. 2026г.
Переуступка прав требований
Общая площадь - 58,10 кв.м.
Кухня - 10,1 кв.м
спальня - 15,3 кв.м.
спальня - 14,7 кв.м.
два санузла - 3,9 кв.м. и 3,1 кв.м.
холл - 7,6 кв.м.
гардеробная - 2,6 кв м
Квартира с чистовой отделкой + кухня с техникой (кухонный гарнитур, варочная панель, духовой шкаф, посудомойка, вытяжка, холодильник)
ЖК Цветочные поляны - это не просто дом, это целый город в городе. Здесь есть все необходимое для комфортной жизни: магазины, кафе, фитнес-центры, салоны красоты, детские сады и школы. Просторные гостевые зоны, уютные холлы, пешеходный бульвар с ручьем и живописными растениями - все это делает жизнь в этом комплексе комфортной и уютной.
У ЖК удобная транспортная доступность - до метро Филатов Луг, Саларьево или Аэропорт Внуково на общественном транспорте или на автомобиле всего 15 минут до станций " AFY-345525749
Расположение
г Москва, Филимонковский р-н, пр-кт Новосередневский, д 21 к 5
Филатов луг
—
15 мин
Технические характеристики
Параметры
Тип здания
монолитный
Инженерия
лифт
Вид из окна
во двор
Тип балкона
балкон
Параметры помещения
жилая площадь м²
30
площадь кухни м²
10.1
Новость дня
Все новости
Сегодня — 13 мая, среда / Москва
Торгово-развлекательный комплекс "Зеленопарк" в Подмосковье выставлен на продажу по цене 7,09 миллиарда рублей.
Сегодня — 13 мая, среда / Москва
Новое японское бистро J’PAN откроется на Смоленской площади
Сегодня — 13 мая, среда / Москва
Сеть магазинов "АШАН" расширила сеть магазинов "Белорусские деревни" в Москве и Химках
Сегодня — 13 мая, среда / Москва
Новый благоустроенный двор с садом и искусственным водоемом появился на западе Москвы.
Сегодня — 13 мая, среда / Москва
"Госкорпорация Ростех выставляет на продажу 9,3 гектаров земли и 22 тысячи квадратных метров зданий в Санкт-Петербурге"
Сегодня — 13 мая, среда / Москва
Бутик детской одежды Petit Bateau открылся в торговом центре «Афимолл Сити» в Москве.
Сегодня — 13 мая, среда / Нижегородская
"Сеть магазинов 'Детский мир' оказывает поддержку производителям детских товаров из Нижегородской области"
Сегодня — 13 мая, среда / Москва
Два старых незаконных склада были демонтированы на востоке Москвы
Сегодня — 13 мая, среда / Москва
Торговая недвижимость в регионах России достигла исторического минимума в I квартале 2022 года.
Вчера — 12 мая, вторник / Санкт-Петербург
"Продажа двух исторических зданий в Красном Селе по цене в 1 рубль"
Вчера — 12 мая, вторник / Санкт-Петербург
Суд отклонил иск "дочки" "Гранеля" к банку "Санкт-Петербург" на сумму 11,7 млрд рублей
Вчера — 12 мая, вторник / Москва
Университетский колледж БРИКС арендует помещение в бизнес-центре «РТС Семёновский»
Вчера — 12 мая, вторник / Москва
"Производитель товаров для дома расширяет свои офисные площади, приобретая 1,4 тыс. кв. м в бизнес-центре "Level work Воронцовская""
Вчера — 12 мая, вторник / Москва
"Незначительное увеличение стоимости строительства складов в ЦФО за год"
Вчера — 12 мая, вторник / Москва
"В Коммунарке будет построен новый многоуровневый паркинг площадью до 10 тыс. кв. м"
Вчера — 12 мая, вторник / Москва
"Оператор вендинговых автоматов "Мир вендинга" расширяет свою деятельность с запуском сети мини-кофеен"
Вчера — 12 мая, вторник / Москва
"А1 приобретает бизнес «Русского холода» за символическую сумму и выкупает долги"
Вчера — 12 мая, вторник / Москва
Планируется строительство паркинга с магазином в Нижегородском районе в рамках программы комплексного развития территории.
Вчера — 12 мая, вторник / Москва
"ИДС Боржоми" приобрела завод "Святой источник" в Подмосковье.
8 мая, пятница / Москва
Усадьбу XVIII–XIX веков в центре Москвы выставили на аукцион «Дом.РФ»