Купить производственное помещение 32000 м²
ID 1321137
Цена
3 456 000 000 ₽
Ставка
108 000 ₽ / м²
Площадь
32000 м²
Этаж
1 из -
ИФНС
5040
агентство недвижимости
Московская обл, г Жуковский, ул Береговая
На карте
Описание
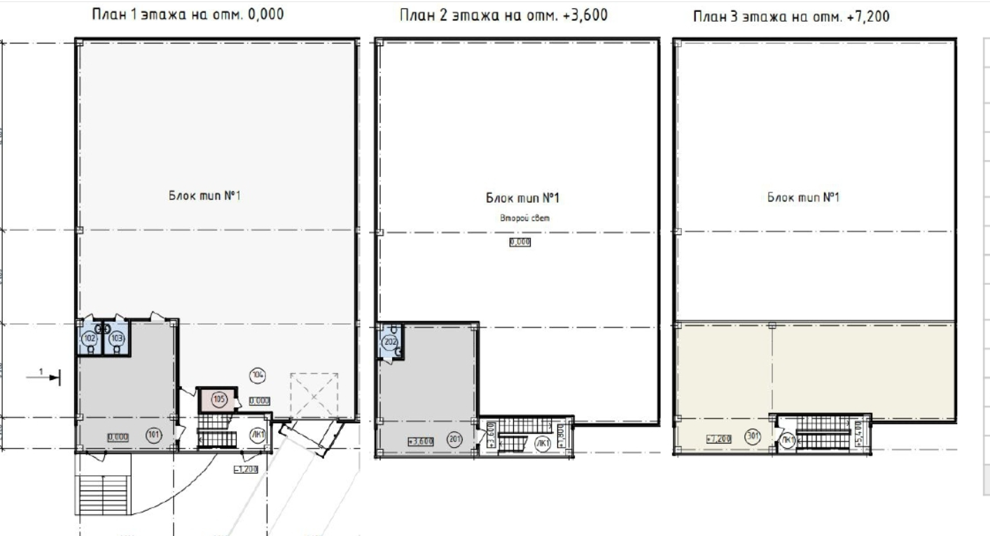
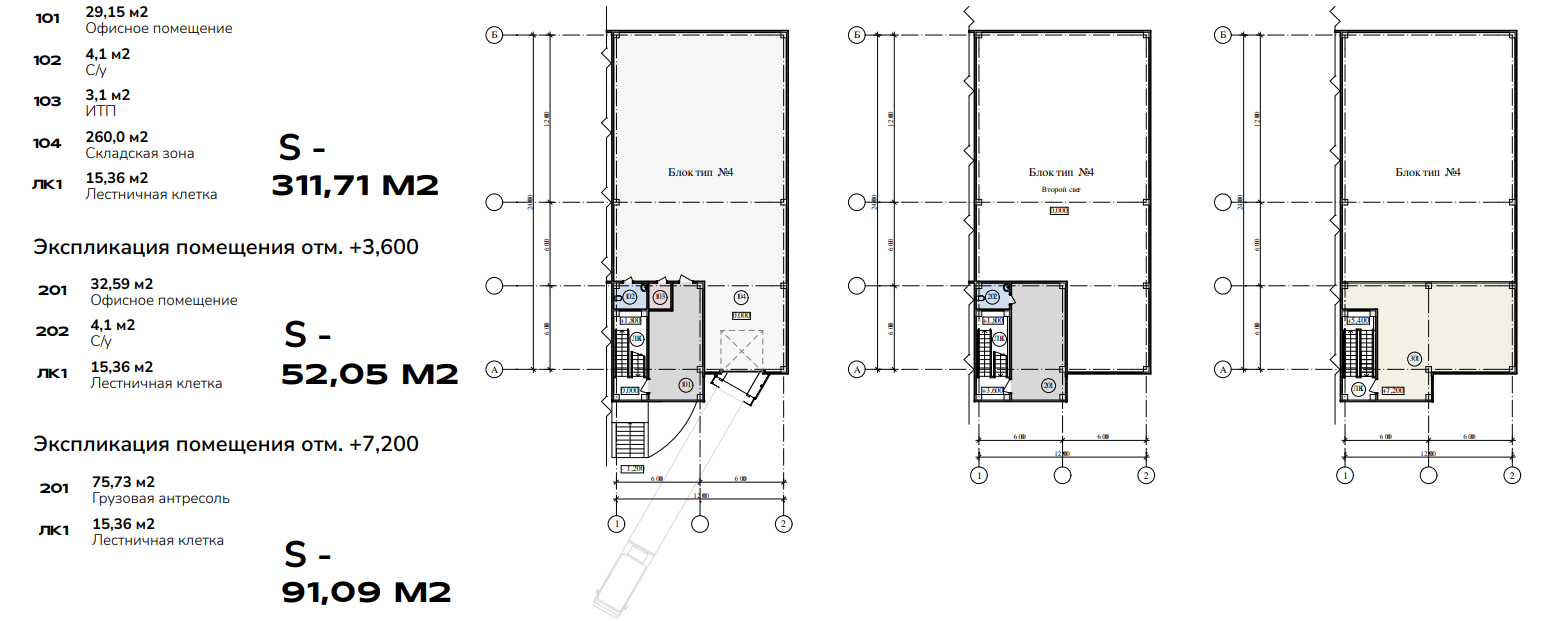
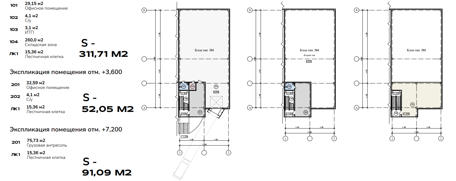
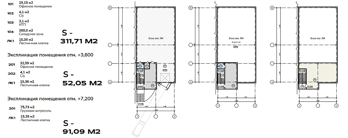
Арт. 120804261 Общая площадь Парка 32000 кв.м. на земельном участке 5 Га.
* Высота потолков 12м, полы антипыль
* Центральные коммуникации, 100 м3/сутки водоснабжение
Офисные блоки каждый имеет отдельный вход
* Газ 1500 м3/час
* Эл-во 50 Вт/м2 на каждый блок, в парке 1500 кВт.
* Парковка для легковых и грузовых машин
Условия продажи СЕЙЧАС для ВАС:
*Блоки от 417м2 несколько юнитов можно объединить в единое пространство и увеличить площадь
Есть рассрочка до окончания строительства!
Удобная транспортная доступноть и трудовые ресурсы. Инфракструктура.
МКАД – 15 км ЦКАД – 24 км (А-107, бетонка) Новорязанское шоссе – 1,5 км (М-5) А-102 – 0 км Четырехполосное шоссе до производственного парка ЮЛА – соединяющая СВХ с Симферопольским шоссе
Для пищевой/легкой промышленности, логистики и хранения, для технологичных производств, лабораторий.
Подробности по телефону.
* Высота потолков 12м, полы антипыль
* Центральные коммуникации, 100 м3/сутки водоснабжение
Офисные блоки каждый имеет отдельный вход
* Газ 1500 м3/час
* Эл-во 50 Вт/м2 на каждый блок, в парке 1500 кВт.
* Парковка для легковых и грузовых машин
Условия продажи СЕЙЧАС для ВАС:
*Блоки от 417м2 несколько юнитов можно объединить в единое пространство и увеличить площадь
Есть рассрочка до окончания строительства!
Удобная транспортная доступноть и трудовые ресурсы. Инфракструктура.
МКАД – 15 км ЦКАД – 24 км (А-107, бетонка) Новорязанское шоссе – 1,5 км (М-5) А-102 – 0 км Четырехполосное шоссе до производственного парка ЮЛА – соединяющая СВХ с Симферопольским шоссе
Для пищевой/легкой промышленности, логистики и хранения, для технологичных производств, лабораторий.
Подробности по телефону.
Расположение
Московская обл, г Жуковский, ул Береговая
Технические характеристики
Новость дня
Расширение возможностей для B2B-клиентов: Avito вводит новые услуги для строительства складов
На платформе Авито теперь доступна категория "Коммерческое строительство" в сегменте услуг, предлагающая широкий выбор специализированных работ и возведение объектов "под ключ" для бизнеса, что упрощает поиск подрядчиков и субподрядчиков для коммерческих проектов.
Все новости
Вчера — 6 мая, среда / Москва
Рекордное количество офисных помещений введено в Москве за первый квартал текущего года.
Вчера — 6 мая, среда / Москва
"Сокращение объемов складских помещений в Московском регионе достигло 14% за первый квартал"
Вчера — 6 мая, среда / Москва
Лишь 10% жилых комплексов располагаются вблизи берега Москвы-реки.
Вчера — 6 мая, среда / Москва
Цены на отели в Москве снизились впервые за два года
Вчера — 6 мая, среда / Карачаево-Черкесская
Капиталовложения в размере 5,83 млрд рублей на развитие курорта "Альто" на Домбае от компании "Плато Девелопмент"
Вчера — 6 мая, среда / Москва
Строительство склада площадью 80 тыс. кв. м для Ozon в Пушкино будет осуществлено компанией NK Group.
Вчера — 6 мая, среда / Санкт-Петербург
«Дача Фаберже в Санкт-Петербурге будет продана на аукционе компанией «Дом.РФ»»
Вчера — 6 мая, среда / Москва
Строительство коммерческих объектов в Москве упало на 91% за год
Вчера — 6 мая, среда / Москва
Как в Москве за первый квартал 2026 года построили 5,433 тыс. кв. м офисов, готовых к адаптации.
Вчера — 6 мая, среда / Санкт-Петербург
Продуктовые сети в России увеличили свои площади в торгово-развлекательном центре Петербурга на треть за последние 6 лет.
Вчера — 6 мая, среда / Москва
С начала года в Москве получили разрешение на строительство более 130 недвижимостей.
5 мая, вторник / Москва
"Сбербанк и Альфа-банк подали в суд на производителя обоев «Артекс» с требованием объявить его банкротом"
5 мая, вторник / Красноярский
"Магазин «ВкусВилл» открыл отдел shop-in-shop в Красноярске через партнерство"
5 мая, вторник / Адыгея
Строительство жилого комплекса на территории туристического парка "Дегуакская поляна" в Адыгее начнется архитектурным проектом от "Семьи" объемом 360 тыс. квадратных метров.
5 мая, вторник / Москва
"Прогнозируется достижение рекордной площади 500 тыс. кв. м под light industrial в Московском регионе к 2026 году"
5 мая, вторник / Астраханская
Фитнес-клуб DDX Fitness открылся в Торгово-Развлекательном Центре «Ярмарка» в городе Астрахань.
5 мая, вторник / Москва
"Объем спроса на офисные помещения в Москве сократился вдвое за последний год"
5 мая, вторник / Москва
"Рост стоимости отделки офисов в Москве превышает уровень инфляции"
5 мая, вторник / Москва
В России впервые за 20 лет не было открыто ни одной новой гостиницы в первом квартале
5 мая, вторник / Москва
Спрос на услуги аренды апартаментов в Санкт-Петербурге упал на четверть.