Снять торговое помещение 90 м²
ID 1337223
Цена
1 500 000 ₽/мес
Ставка
200 000 ₽ / м² / год
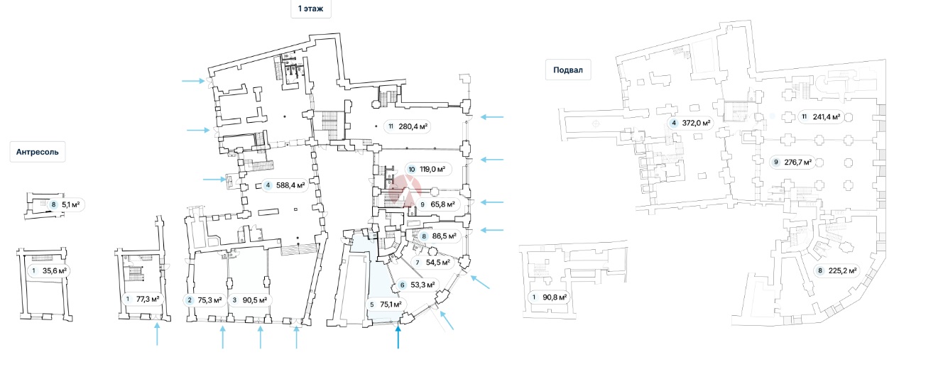
Площадь
90 м²
Этаж
1 из 4
ИФНС
7701
агентство недвижимости
г Москва, ул Мясницкая, д 8/2
На карте
Лубянка
—
5 мин
Описание
Номер лота на нашем сайте: 44994.
Предлагается в аренду помещение на улице Мясницкая, ЦАО г. Москвы. Шаговая доступность от ст. метро Лубянка , Китай-город - 2 минуты пешком. Также рядом ст. метро Кузнецкий Мост , Тургеневская и Площадь Революции . Помещение свободного назначения (ПСН) площадью 90,5 кв.м на 1 этаже нежилого здания. Отлично подойдёт под любой вид деятельности. Планировка - открытая (свободная), высота потолков - 5,5 м, перекрытия ж/б. Отдельные входные группы с фасада с 1-ой линии.
Электрической мощности достаточное количество под любой вид деятельности.
Предлагается в аренду помещение на улице Мясницкая, ЦАО г. Москвы. Шаговая доступность от ст. метро Лубянка , Китай-город - 2 минуты пешком. Также рядом ст. метро Кузнецкий Мост , Тургеневская и Площадь Революции . Помещение свободного назначения (ПСН) площадью 90,5 кв.м на 1 этаже нежилого здания. Отлично подойдёт под любой вид деятельности. Планировка - открытая (свободная), высота потолков - 5,5 м, перекрытия ж/б. Отдельные входные группы с фасада с 1-ой линии.
Электрической мощности достаточное количество под любой вид деятельности.
Расположение
г Москва, ул Мясницкая, д 8/2
Лубянка
—
5 мин
Технические характеристики
Параметры
Электричество
есть
Инженерия
вентиляция
Новость дня
Все новости
Сегодня — 28 апреля, вторник / Москва
"Появление двух новых брендов на российском рынке в начале 2026 года"
Сегодня — 28 апреля, вторник / Москва
27-этажный бизнес-центр класса А в Коммунарке завершает процесс утверждения своего архитектурного дизайна
Сегодня — 28 апреля, вторник / Москва
Перефразированное название статьи: "Открытие первого флагманского магазина Lumique в «Авиапарке»"
Сегодня — 28 апреля, вторник / Москва
"Подольская фабрика офсетной печати выставляет на приватизацию 49% своих акций"
Сегодня — 28 апреля, вторник / Москва
Самострои в ЮВАО: площадь почти 4 тыс. кв. м за первый квартал
Сегодня — 28 апреля, вторник / Москва
Иск на 11,7 млрд рублей подан банком «Санкт-Петербург» к структуре «Гранели»
Сегодня — 28 апреля, вторник / Москва
"«Яндекс Фабрика» запускает цепь офлайн-магазинов в Москве"
Сегодня — 28 апреля, вторник / Москва
Детская сеть магазинов "Кораблик" столкнулась с финансовыми трудностями
Сегодня — 28 апреля, вторник / Москва
Снижение загрузки премиум отелей Москвы в первом квартале до 69,4%
Сегодня — 28 апреля, вторник / Крым
"Продается комплекс солнечных электростанций на полуострове Крым"
Вчера — 27 апреля, понедельник / Москва
Гастропространство «НеДетский» на 630 посадочных мест открылось в Центральном детском магазине на Лубянке.
Вчера — 27 апреля, понедельник / Москва
"FORMA завершает продажу всех офисных помещений в бизнес-центре «ЛЕЙКС»"
Вчера — 27 апреля, понедельник / Москва
"Прогноз: восстановление офисного рынка Москвы ожидается к 2028 году"
Вчера — 27 апреля, понедельник / Москва
Проект строительства промышленного парка с двумя зданиями на востоке Москвы.
Вчера — 27 апреля, понедельник / Москва
Бизнес-центр площадью 22,7 тыс. кв. м открылся в Нагатинской пойме.
Вчера — 27 апреля, понедельник / Самарская
Недостроенный птицеводческий комплекс "Евробиотех" в Самарской области ищет покупателя
Вчера — 27 апреля, понедельник / Москва
"Планируется строительство восьмиэтажной автостоянки с коммерческими помещениями на 465 машиномест в Новой Москве"
Вчера — 27 апреля, понедельник / Москва
"«Монарх» приобрел участок площадью 1,36 га на территории бывшего Карачаровского механического завода"
Вчера — 27 апреля, понедельник / Москва
"Производство растительного молока от Сварщицы Екатерины"
Вчера — 27 апреля, понедельник / Москва
"Будущее магазинов Gate 31 под угрозой из-за финансовых трудностей"