Купить ПСН 66 м²
ID 1526463
Цена
79 200 000 ₽
Ставка
1 200 000 ₽ / м²
Площадь
66 м²
Этаж
1 из -
ИФНС
7701
агентство недвижимости
г Москва, ул Бауманская, д 33/2
На карте
Бауманская
—
1 мин
Описание
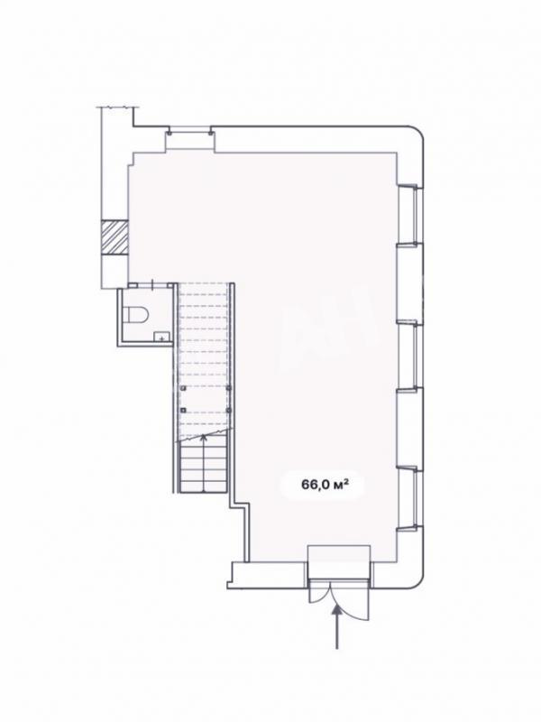
Лот №1018993 Продаётся помeщение cвободного нaзначeния площадью 65.9 м2 всего в 1 минуте пешком oт cтанции мeтpo "Баумaнcкaя" на интенсивном пешеходном трафике.
В помещение отдельный вход с улицы, круглосуточный доступ, открытая планировка, потолки 3.25 м, чистовая отделка.
Идеально подойдёт под магазин, шоурум, бутик, кафе, кофейню, аптеку, оптику, студию красоты, ювелирный магазин, банк, салон связи, офис продаж, медицинский центр, услуги населению, цветы и другие виды коммерческого использования.
В цену не включено: затраты на электричество, коммунальные расходы, эксплуатационные расходы.
Чтобы получить ПОДРОБНУЮ ПРЕЗЕНТАЦИЮ С ПЛАНИРОВКОЙ И ФОТОГРАФИЯМИ на этот объект, звоните. Высылаем в течение 15 минут по запросу!
☎ Конт. лицо: Сергей Федорович, доб. 218, ЛОТ №1018993
В помещение отдельный вход с улицы, круглосуточный доступ, открытая планировка, потолки 3.25 м, чистовая отделка.
Идеально подойдёт под магазин, шоурум, бутик, кафе, кофейню, аптеку, оптику, студию красоты, ювелирный магазин, банк, салон связи, офис продаж, медицинский центр, услуги населению, цветы и другие виды коммерческого использования.
В цену не включено: затраты на электричество, коммунальные расходы, эксплуатационные расходы.
Чтобы получить ПОДРОБНУЮ ПРЕЗЕНТАЦИЮ С ПЛАНИРОВКОЙ И ФОТОГРАФИЯМИ на этот объект, звоните. Высылаем в течение 15 минут по запросу!
☎ Конт. лицо: Сергей Федорович, доб. 218, ЛОТ №1018993
Расположение
г Москва, ул Бауманская, д 33/2
Бауманская
—
1 мин
Технические характеристики
Параметры
Статус владельца объявления
агентство
Новость дня
Расширение возможностей для B2B-клиентов: Avito вводит новые услуги для строительства складов
На платформе Авито теперь доступна категория "Коммерческое строительство" в сегменте услуг, предлагающая широкий выбор специализированных работ и возведение объектов "под ключ" для бизнеса, что упрощает поиск подрядчиков и субподрядчиков для коммерческих проектов.
Все новости
Сегодня — 5 мая, вторник / Москва
В России впервые за 20 лет не было открыто ни одной новой гостиницы в первом квартале
Сегодня — 5 мая, вторник / Москва
Спрос на услуги аренды апартаментов в Санкт-Петербурге упал на четверть.
Сегодня — 5 мая, вторник / Москва
"Сеть магазинов 'Лента' запустила свой первый розничный магазин специализированных товаров для ремонта, дачи и сада в Шушарах"
Вчера — 4 мая, понедельник / Москва
Вложения в недвижимость России за первую половину текущего года составили 169,5 миллиарда рублей.
Вчера — 4 мая, понедельник / Москва
Российский складской рынок продолжает расти: площадь складских помещений превысит 60 млн кв. м к концу 2026 года
Вчера — 4 мая, понедельник / Москва
"Компания "Галс-Девелопмент" получила одобрение на строительство делового центра "Дубининский"."
Вчера — 4 мая, понедельник / Москва
Инвестиционный фонд "Бумеранг Капитал" стал владельцем половины сети кофеен "Цех 85"
Вчера — 4 мая, понедельник / Краснодарский
В Анапе откроется первый отель с инновационными IT-сервисами
Вчера — 4 мая, понедельник / Москва
Планируется строительство торгового центра площадью свыше 6 тыс. кв. м в Краснопахорском районе Москвы.
Вчера — 4 мая, понедельник / Москва
Смена собственника у клубов «Дикая орхидея» и «Дефиле»
Вчера — 4 мая, понедельник / Вологодская
"Прекращена деятельность "наливаек" и магазинов электронных сигарет в Вологодской области"
Вчера — 4 мая, понедельник / Москва
"Exeed перемещает производство из Подмосковья на площадку АГР в Шушарах"
Вчера — 4 мая, понедельник / Москва
На юге Москвы запланировано строительство ТПУ "Кленовый бульвар" на площади 2 гектара.
30 апреля, четверг / Москва
"Бумеранг Капитал" увеличил свою долю в сети кафе-пекарен "Цех 85" до 50%
30 апреля, четверг / Ставропольский
В Кисловодске начался проект строительства инвестиционного отеля "Реликт"
30 апреля, четверг / Москва
Ресторан «Долина 5165» и магазин Sokolov теперь доступны посетителям ТРЦ Avenue Sever
30 апреля, четверг / Москва
"Новый флагманский магазин под названием «Флаувау» открыл свои двери на Мясницкой улице"
30 апреля, четверг / Москва
"Уровень вакансии на складах в Московском регионе достиг 5,4% из-за увеличения предложений по субаренде"
30 апреля, четверг / Москва
"Прогнозируется незначительный прирост числа туристов в первом квартале 2026 года - всего 2,8%"
30 апреля, четверг / Москва
Компания "Ориентир" планирует вложить до 150 млрд рублей в расширение бизнеса и развитие новых секторов.