Описание
Предложение на продажу № 63289.
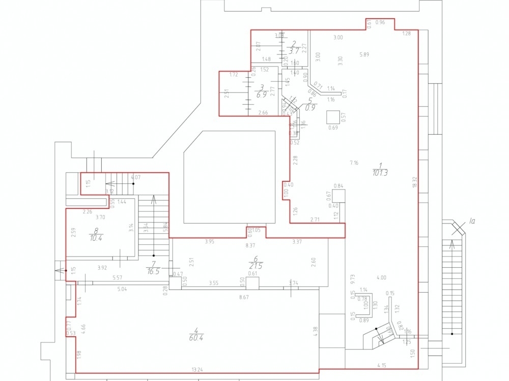
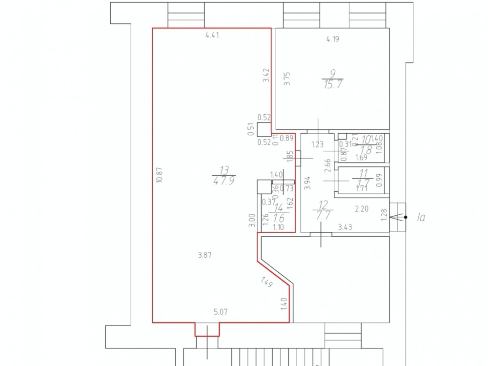
Продажа помещения, 300 м², Ленинградский проспект (у м. «Сокол»)
.
. 1. Локация и рынок
. * 1–2 мин до м. «Сокол» (45 тыс. пассажиров/сутки);
. * Ленинградский проспект — трафик >50 тыс. человек/сутки;
. * в радиусе 500 м: 12 бизнес‑центров, сетевые ритейлеры, остановки транспорта;
. * аудитория: 180 тыс. жителей + 25 тыс. офисных сотрудников;
. * средняя ставка аренды: 2 200–2 800 руб./м²/мес;
. * доходность: 8–10 % годовых;
. * дефицит аналогов с 3 входами и мощностью 100 кВт.
.
. 2. Характеристики
. * площадь: 300 м²;
. * 3 входа (проспект, двор, боковой);
. * мощность: 100 кВт;
. * естественное освещение;
. * готово к эксплуатации (без капремонта);
. * свободная планировка (3–4 зоны).
.
. 3. Преимущества
. * высокая ликвидность (соответствует запросам 70 % арендаторов);
. * мультифункциональность (торговля, услуги, производство, логистика);
. * экономия на старте (нет затрат на ремонт и инженерные системы);
. * три входа — удобство зонирования и логистики;
. * потенциал роста стоимости (+7 % в год).
.
. 4. Варианты использования
. * многофункциональный центр (офис + производство + шоурум);
. * фитнес‑клуб;
. * пищевое производство с точкой продаж;
. * распределительный узел;
. * торговый комплекс (3 бутика).
.
. Для обсуждения сделки — звоните.
Торговая недвижимость, Street Retail. 1 линия домов. Ресторанная вытяжка. Витрины. Место для рекламы. Зона разгрузки. Проходное и проездное место.
Без комиссии.
Продажа помещения, 300 м², Ленинградский проспект (у м. «Сокол»)
.
. 1. Локация и рынок
. * 1–2 мин до м. «Сокол» (45 тыс. пассажиров/сутки);
. * Ленинградский проспект — трафик >50 тыс. человек/сутки;
. * в радиусе 500 м: 12 бизнес‑центров, сетевые ритейлеры, остановки транспорта;
. * аудитория: 180 тыс. жителей + 25 тыс. офисных сотрудников;
. * средняя ставка аренды: 2 200–2 800 руб./м²/мес;
. * доходность: 8–10 % годовых;
. * дефицит аналогов с 3 входами и мощностью 100 кВт.
.
. 2. Характеристики
. * площадь: 300 м²;
. * 3 входа (проспект, двор, боковой);
. * мощность: 100 кВт;
. * естественное освещение;
. * готово к эксплуатации (без капремонта);
. * свободная планировка (3–4 зоны).
.
. 3. Преимущества
. * высокая ликвидность (соответствует запросам 70 % арендаторов);
. * мультифункциональность (торговля, услуги, производство, логистика);
. * экономия на старте (нет затрат на ремонт и инженерные системы);
. * три входа — удобство зонирования и логистики;
. * потенциал роста стоимости (+7 % в год).
.
. 4. Варианты использования
. * многофункциональный центр (офис + производство + шоурум);
. * фитнес‑клуб;
. * пищевое производство с точкой продаж;
. * распределительный узел;
. * торговый комплекс (3 бутика).
.
. Для обсуждения сделки — звоните.
Торговая недвижимость, Street Retail. 1 линия домов. Ресторанная вытяжка. Витрины. Место для рекламы. Зона разгрузки. Проходное и проездное место.
Без комиссии.
Расположение
г Москва, пр-кт Ленинградский, д 69 стр 1
Сокол
—
3 мин
Аэропорт
—
11 мин
Панфиловская
—
16 мин
Технические характеристики
Параметры
Статус владельца объявления
агентство
Новость дня
Расширение возможностей для B2B-клиентов: Avito вводит новые услуги для строительства складов
На платформе Авито теперь доступна категория "Коммерческое строительство" в сегменте услуг, предлагающая широкий выбор специализированных работ и возведение объектов "под ключ" для бизнеса, что упрощает поиск подрядчиков и субподрядчиков для коммерческих проектов.
Все новости
Вчера — 6 мая, среда / Москва
Рекордное количество офисных помещений введено в Москве за первый квартал текущего года.
Вчера — 6 мая, среда / Москва
"Сокращение объемов складских помещений в Московском регионе достигло 14% за первый квартал"
Вчера — 6 мая, среда / Москва
Лишь 10% жилых комплексов располагаются вблизи берега Москвы-реки.
Вчера — 6 мая, среда / Москва
Цены на отели в Москве снизились впервые за два года
Вчера — 6 мая, среда / Карачаево-Черкесская
Капиталовложения в размере 5,83 млрд рублей на развитие курорта "Альто" на Домбае от компании "Плато Девелопмент"
Вчера — 6 мая, среда / Москва
Строительство склада площадью 80 тыс. кв. м для Ozon в Пушкино будет осуществлено компанией NK Group.
Вчера — 6 мая, среда / Санкт-Петербург
«Дача Фаберже в Санкт-Петербурге будет продана на аукционе компанией «Дом.РФ»»
Вчера — 6 мая, среда / Москва
Строительство коммерческих объектов в Москве упало на 91% за год
Вчера — 6 мая, среда / Москва
Как в Москве за первый квартал 2026 года построили 5,433 тыс. кв. м офисов, готовых к адаптации.
Вчера — 6 мая, среда / Санкт-Петербург
Продуктовые сети в России увеличили свои площади в торгово-развлекательном центре Петербурга на треть за последние 6 лет.
Вчера — 6 мая, среда / Москва
С начала года в Москве получили разрешение на строительство более 130 недвижимостей.
5 мая, вторник / Москва
"Сбербанк и Альфа-банк подали в суд на производителя обоев «Артекс» с требованием объявить его банкротом"
5 мая, вторник / Красноярский
"Магазин «ВкусВилл» открыл отдел shop-in-shop в Красноярске через партнерство"
5 мая, вторник / Адыгея
Строительство жилого комплекса на территории туристического парка "Дегуакская поляна" в Адыгее начнется архитектурным проектом от "Семьи" объемом 360 тыс. квадратных метров.
5 мая, вторник / Москва
"Прогнозируется достижение рекордной площади 500 тыс. кв. м под light industrial в Московском регионе к 2026 году"
5 мая, вторник / Астраханская
Фитнес-клуб DDX Fitness открылся в Торгово-Развлекательном Центре «Ярмарка» в городе Астрахань.
5 мая, вторник / Москва
"Объем спроса на офисные помещения в Москве сократился вдвое за последний год"
5 мая, вторник / Москва
"Рост стоимости отделки офисов в Москве превышает уровень инфляции"
5 мая, вторник / Москва
В России впервые за 20 лет не было открыто ни одной новой гостиницы в первом квартале
5 мая, вторник / Москва
Спрос на услуги аренды апартаментов в Санкт-Петербурге упал на четверть.