Описание
Предложение на продажу № 63504.
Парковка: 10 + городская парковка (до 30 м/м).
Продажа здания (не является объектом культурного наследия). Большая территория для наземной парковки. В 200 м от здания расположен ЖК «Римского-Корсакова 11».
. Кол-во квартир – 2 994
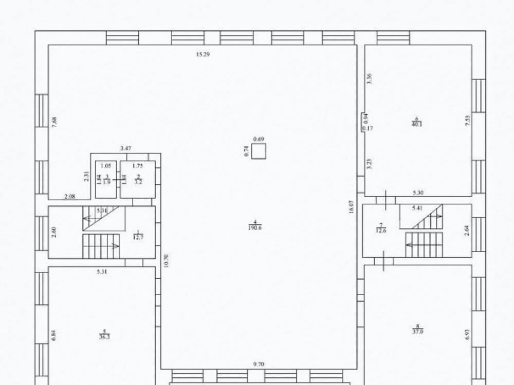
. Общая площадь 661,2 м2, полезная площадь 569,6 м2.
. 1 эт. – 286,9 м2, 2 эт. – 282,7 м2
. Категория объекта - Офис, торговое, склад. Год постройки - 1917.
. ЗУ (1690 м2) Аренда до 2073 г. (77:02:0007001:15)
. Эксплуатация административного здания.
. Материал стен - кирпич.
. Материал перекрытий - Ж/б.
. Потолки - 3,3-4,5 (есть тех. возможность возведения антресоли-мансарды)
. Электроэнергия (125 кВт). Отопление эл. обогревателями. Канализация.
. Количество входных групп - 5.
. Количество мокрых точек - 5.
. Заменены стеклопакеты, сделан свежий ремонт в стиле лофт на 1 эт.
. Завершаются ремонтные работы на 2 эт.
Этажи с 1 по 2.
Торговая недвижимость, Street Retail. 2 линия домов. Место для рекламы. Зона разгрузки. Проходное и проездное место.
Без комиссии.
Парковка: 10 + городская парковка (до 30 м/м).
Продажа здания (не является объектом культурного наследия). Большая территория для наземной парковки. В 200 м от здания расположен ЖК «Римского-Корсакова 11».
. Кол-во квартир – 2 994
. Общая площадь 661,2 м2, полезная площадь 569,6 м2.
. 1 эт. – 286,9 м2, 2 эт. – 282,7 м2
. Категория объекта - Офис, торговое, склад. Год постройки - 1917.
. ЗУ (1690 м2) Аренда до 2073 г. (77:02:0007001:15)
. Эксплуатация административного здания.
. Материал стен - кирпич.
. Материал перекрытий - Ж/б.
. Потолки - 3,3-4,5 (есть тех. возможность возведения антресоли-мансарды)
. Электроэнергия (125 кВт). Отопление эл. обогревателями. Канализация.
. Количество входных групп - 5.
. Количество мокрых точек - 5.
. Заменены стеклопакеты, сделан свежий ремонт в стиле лофт на 1 эт.
. Завершаются ремонтные работы на 2 эт.
Этажи с 1 по 2.
Торговая недвижимость, Street Retail. 2 линия домов. Место для рекламы. Зона разгрузки. Проходное и проездное место.
Без комиссии.
Расположение
г Москва, проезд Высоковольтный, д 7
Отрадное
—
12 мин
Бибирево
—
16 мин
Дегунино
—
19 мин
Технические характеристики
Параметры
Статус владельца объявления
агентство
Новость дня
Расширение возможностей для B2B-клиентов: Avito вводит новые услуги для строительства складов
На платформе Авито теперь доступна категория "Коммерческое строительство" в сегменте услуг, предлагающая широкий выбор специализированных работ и возведение объектов "под ключ" для бизнеса, что упрощает поиск подрядчиков и субподрядчиков для коммерческих проектов.
Все новости
Вчера — 30 апреля, четверг / Москва
"Бумеранг Капитал" увеличил свою долю в сети кафе-пекарен "Цех 85" до 50%
Вчера — 30 апреля, четверг / Ставропольский
В Кисловодске начался проект строительства инвестиционного отеля "Реликт"
Вчера — 30 апреля, четверг / Москва
Ресторан «Долина 5165» и магазин Sokolov теперь доступны посетителям ТРЦ Avenue Sever
Вчера — 30 апреля, четверг / Москва
"Новый флагманский магазин под названием «Флаувау» открыл свои двери на Мясницкой улице"
Вчера — 30 апреля, четверг / Москва
"Уровень вакансии на складах в Московском регионе достиг 5,4% из-за увеличения предложений по субаренде"
Вчера — 30 апреля, четверг / Москва
"Прогнозируется незначительный прирост числа туристов в первом квартале 2026 года - всего 2,8%"
Вчера — 30 апреля, четверг / Москва
Компания "Ориентир" планирует вложить до 150 млрд рублей в расширение бизнеса и развитие новых секторов.
Вчера — 30 апреля, четверг / Москва
"Завершено строительство наземной парковки на 400 автомобильных мест в парке «Ривер Парк Коломенское»"
Вчера — 30 апреля, четверг / Москва
Скорось открытия новых магазинов «Лэтуаль» снизится - 150 точек закроются к 2026 году.
Вчера — 30 апреля, четверг / Москва
Смайл-бар сети "Белая точка" теперь доступен посетителям ТЦ "Левел Причальный"
29 апреля, среда / Москва
Московский цех открыл производство 3D-принтеров для металлической печати.
29 апреля, среда / Москва
БМ-банк завершил продажу большей части площадей в ТЦ «Весна» на Новом Арбате.
29 апреля, среда / Москва
Перефразированное название: "Сеть магазинов 'Жизньмарт' возобновляет свою деятельность в Челябинске"
29 апреля, среда / Санкт-Петербург
Сервисный офис «Практик» начал свою работу на Октябрьской набережной в Санкт-Петербурге.
29 апреля, среда / Санкт-Петербург
Строительство складских помещений в Санкт-Петербурге и Ленинградской области увеличилось в 2,5 раза.
29 апреля, среда / Москва
Москва увеличила объем строительства в рамках программы МПТ до 9,5 миллионов квадратных метров
29 апреля, среда / Санкт-Петербург
Соседский центр "ЖИВИ Клуб" открыл свои двери в Новоселье
29 апреля, среда / Москва
"Завершено строительство пятиэтажной наземной парковки в районе Нагатинский Затон"
29 апреля, среда / Санкт-Петербург
Рекордный уровень строительства складов зафиксирован в Санкт-Петербурге и Ленинградской области
29 апреля, среда / Москва
Аренда складов в Москве снизилась на 25%