Описание
Экономьте до 3 недель на переезде - бесплатно разработаем планировку под вашу команду с неограниченными правками.
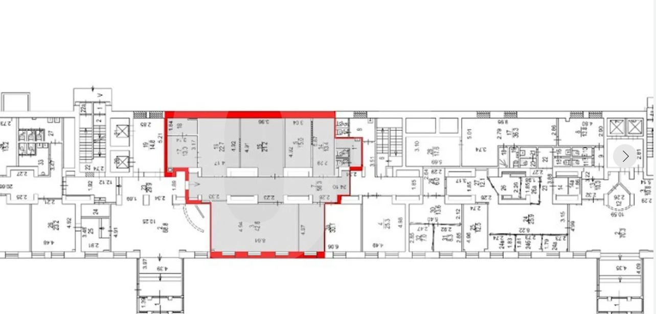
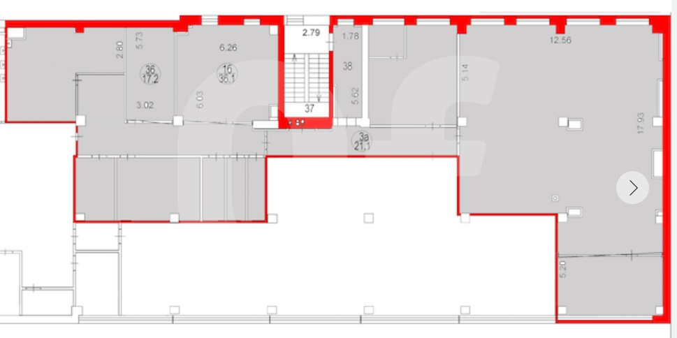
Офис 707 м² на 89-157 рабочих мест* в бизнес-центре "Авион" (класс B+), без комиссии. Открыты к диалогу по условиям аренды.
Ключевые параметры:
Площадь: 707 м².
Рабочие места: 89-157*.
Планировка: смешанная.
Состояние: готов к въезду.
Этаж: Цокольный, 1 из 6.
Налоговая: 14.
Метро рядом: м. Аэропорт в 2 минутах пешком, м. Сокол в 14 минутах пешком.
Помещение с функциональной смешанной планировкой.
Инженерные системы:
Вентиляция: приточно-вытяжная.
Кондиционирование: центральное.
Охрана: круглосуточная охрана здания.
Бизнес-центр Авион класса В расположен у станции Аэропорт на Ленинградском проспекте с выездом на ТТК. Экстерьер БЦ выполнен в стиле хай‑тек: фасады оснащены подсветкой, а прилегающая территория благоустроена с использованием элементов ландшафтного дизайна. Наземная парковка на 110 мест. Внутри работают кафе, ресторан, продуктовый магазин, банкомат.
В пешей доступности — Чапаевский парк и ТЦ Галерея Аэропорт. Бизнес-центр оборудован современными инженерными системами и 6 пассажирскими лифтами. Юридические адреса обслуживаются в налоговой №14.
Коммерческие условия:
Арендная плата: 2 356 667 руб./мес.
Ставка: 40 000 руб./м²/год (включая эксплуатацию).
Налогообложение: включая НДС.
Коммунальные расходы: оплачиваются по факту.
Тип аренды: Прямая аренда.
Без комиссии.
Этот лот состоит из нескольких помещений: 216 кв. м. и 491 кв. м.
Почему с нами удобно:
Поможем согласовать условия аренды и организуем быстрый выход на сделку.
Предоставим подробную информацию по помещению и условиям договора.
Позвоните сейчас - организуем просмотр в день обращения и направим презентацию по данному объекту.
Также бесплатно:
Разработаем планировку под вашу команду.
Рассчитаем оптимальную рассадку и зонирование.
*Количество рабочих мест рассчитано автоматически: от 4,5 до 8 м² на человека.
ID объекта: 037755
Офис 707 м² на 89-157 рабочих мест* в бизнес-центре "Авион" (класс B+), без комиссии. Открыты к диалогу по условиям аренды.
Ключевые параметры:
Площадь: 707 м².
Рабочие места: 89-157*.
Планировка: смешанная.
Состояние: готов к въезду.
Этаж: Цокольный, 1 из 6.
Налоговая: 14.
Метро рядом: м. Аэропорт в 2 минутах пешком, м. Сокол в 14 минутах пешком.
Помещение с функциональной смешанной планировкой.
Инженерные системы:
Вентиляция: приточно-вытяжная.
Кондиционирование: центральное.
Охрана: круглосуточная охрана здания.
Бизнес-центр Авион класса В расположен у станции Аэропорт на Ленинградском проспекте с выездом на ТТК. Экстерьер БЦ выполнен в стиле хай‑тек: фасады оснащены подсветкой, а прилегающая территория благоустроена с использованием элементов ландшафтного дизайна. Наземная парковка на 110 мест. Внутри работают кафе, ресторан, продуктовый магазин, банкомат.
В пешей доступности — Чапаевский парк и ТЦ Галерея Аэропорт. Бизнес-центр оборудован современными инженерными системами и 6 пассажирскими лифтами. Юридические адреса обслуживаются в налоговой №14.
Коммерческие условия:
Арендная плата: 2 356 667 руб./мес.
Ставка: 40 000 руб./м²/год (включая эксплуатацию).
Налогообложение: включая НДС.
Коммунальные расходы: оплачиваются по факту.
Тип аренды: Прямая аренда.
Без комиссии.
Этот лот состоит из нескольких помещений: 216 кв. м. и 491 кв. м.
Почему с нами удобно:
Поможем согласовать условия аренды и организуем быстрый выход на сделку.
Предоставим подробную информацию по помещению и условиям договора.
Позвоните сейчас - организуем просмотр в день обращения и направим презентацию по данному объекту.
Также бесплатно:
Разработаем планировку под вашу команду.
Рассчитаем оптимальную рассадку и зонирование.
*Количество рабочих мест рассчитано автоматически: от 4,5 до 8 м² на человека.
ID объекта: 037755
Расположение
г Москва, пр-кт Ленинградский, д 47 стр 2, кв 3
Сокол
—
14 мин
Аэропорт
—
2 мин
ЦСКА
—
7 мин
ЦСКА
—
7 мин
Технические характеристики
Новость дня
Все новости
Вчера — 17 апреля, пятница / Москва
"Компания, связанная с Олегом Дерипаской, отозвала свое управление гостиничным комплексом «Имеретинский» в Сириусе"
Вчера — 17 апреля, пятница / Москва
"Выручка компании X5 Group увеличилась на 11,3% за первый квартал"
Вчера — 17 апреля, пятница / Москва
"Компания «Велесстрой» приобрела бизнес-центр «Лесная 6» возле Белорусского вокзала"
Вчера — 17 апреля, пятница / Москва
"Строительная компания «Среда» запланировала возведение офисных помещений площадью 25 тыс. кв. м на территории Южного округа Москвы"
Вчера — 17 апреля, пятница / Москва
Компания ТСТН расширяет свою деятельность с открытием офиса продаж и склада в Коломне.
Вчера — 17 апреля, пятница / Москва
Прогнозируется увеличение площади легкой промышленности в Московском регионе до 3,4 миллионов квадратных метров к 2028 году.
Вчера — 17 апреля, пятница / Москва
Цены на жилье в центре Москвы достигли 1,45 млн рублей за квадратный метр - исторический максимум
Вчера — 17 апреля, пятница / Москва
Покупка бизнес-центра «Филипповский» в Москве совершена ЗПИФом «Байкал рентный 2»
Вчера — 17 апреля, пятница / Москва
Облик нового Центрального дома кино в Москве окончательно утвержден.
Вчера — 17 апреля, пятница / Москва
"Продаётся земельный участок рядом со Сколково для строительства жилого комплекса"
16 апреля, четверг / Санкт-Петербург
Торговый центр Welcome в Выборге выставлен на аукцион с начальной ценой 437,7 млн рублей.
16 апреля, четверг / Москва
Часть недвижимости у Садового кольца выставлена на аукцион с начальной ценой 1,89 млрд рублей.
16 апреля, четверг / Москва
"Новый район Покровское-Стрешнево будет оборудован офисами, имеющими собственный выход к метро"
16 апреля, четверг / Санкт-Петербург
"Новое обязательство восстановить старое здание на Заставской улице в Петербурге"
16 апреля, четверг / Москва
Группа AVA выставляет на продажу свои активы в Москве и Подмосковье
16 апреля, четверг / Москва
Торговый центр "Щёлковский" удвоил свою площадь после расширения от "Love Republic"
16 апреля, четверг / Москва
"Открытие зоомагазина с груминг-салоном 'Четыре Лапы' в ТЦ 'Левел Причальный'"
16 апреля, четверг / Санкт-Петербург
Как предприятия общественного обслуживания способствуют привлекательности жилых комплексов премиум-класса в Санкт-Петербурге
16 апреля, четверг / Москва
Рост стоимости строительства офисов премиум-класса в Москве составил 15% за год.
16 апреля, четверг / Москва
Рост объема сделок с офисными помещениями в новых проектах Дубая в четыре с половиной раза за год