Снять офис 683 м² в БЦ Двинцев
ID 1739844
Цена
3 779 779 ₽/мес
Ставка
66 409 ₽ / м² / год
Площадь
683 м²
Класс
A
Этаж
3 из -
ИФНС
7715
агентство недвижимости
г Москва, ул Двинцев, д 12
На карте
Савеловская
Савёловская
Савёловская
Описание
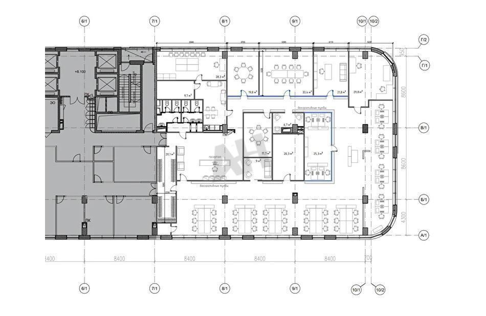
Лот №1065067 В аренду предлагается офисное помещение общей площадью 683 м², расположенное на третьем этаже здания. Полезная площадь идентична. Помещение имеет смешанную планировку, отделку и готово к въезду с 1 июня 2026 года. Высота потолков варьируется от 3 до 5 метров. Вход осуществляется из здания, доступ — по пропускам.
Помещение функционально организовано и рассчитано на создание 89 рабочих мест. В состав входят открытое пространство на 79 мест, семь кабинетов, шесть переговорных комнат, welcome-зона, кухня, серверная, санузел в блоке, складское помещение и мокрая точка. Мебель в аренду не предоставляется.
Юридический адрес предоставляется. Размер депозита обсуждается индивидуально с каждым клиентом, стандартной практикой является сумма, эквивалентная трём месяцам арендной платы.
Приглашаем на просмотр! Звоните!
Стоимость аренды: 66409 руб/м2/год (3779779 руб в месяц) В цену включено: эксплуатационные расходы, НДС 22%. В цену не включено: затраты на электричество, коммунальные расходы, уборка.
Чтобы получить ПОДРОБНУЮ ПРЕЗЕНТАЦИЮ С ПЛАНИРОВКОЙ И ФОТОГРАФИЯМИ на этот объект, звоните. Высылаем в течение 15 минут по запросу!
☎ Конт. лицо: Кира Константиновна, доб. 246, ЛОТ №1065067
Помещение функционально организовано и рассчитано на создание 89 рабочих мест. В состав входят открытое пространство на 79 мест, семь кабинетов, шесть переговорных комнат, welcome-зона, кухня, серверная, санузел в блоке, складское помещение и мокрая точка. Мебель в аренду не предоставляется.
Юридический адрес предоставляется. Размер депозита обсуждается индивидуально с каждым клиентом, стандартной практикой является сумма, эквивалентная трём месяцам арендной платы.
Приглашаем на просмотр! Звоните!
Стоимость аренды: 66409 руб/м2/год (3779779 руб в месяц) В цену включено: эксплуатационные расходы, НДС 22%. В цену не включено: затраты на электричество, коммунальные расходы, уборка.
Чтобы получить ПОДРОБНУЮ ПРЕЗЕНТАЦИЮ С ПЛАНИРОВКОЙ И ФОТОГРАФИЯМИ на этот объект, звоните. Высылаем в течение 15 минут по запросу!
☎ Конт. лицо: Кира Константиновна, доб. 246, ЛОТ №1065067
Расположение
г Москва, ул Двинцев, д 12
Савеловская
Савёловская
Савёловская
Технические характеристики
Свободные помещения в БЦ Двинцев
Новость дня
Все новости
Вчера — 17 апреля, пятница / Москва
"Компания, связанная с Олегом Дерипаской, отозвала свое управление гостиничным комплексом «Имеретинский» в Сириусе"
Вчера — 17 апреля, пятница / Москва
"Выручка компании X5 Group увеличилась на 11,3% за первый квартал"
Вчера — 17 апреля, пятница / Москва
"Компания «Велесстрой» приобрела бизнес-центр «Лесная 6» возле Белорусского вокзала"
Вчера — 17 апреля, пятница / Москва
"Строительная компания «Среда» запланировала возведение офисных помещений площадью 25 тыс. кв. м на территории Южного округа Москвы"
Вчера — 17 апреля, пятница / Москва
Компания ТСТН расширяет свою деятельность с открытием офиса продаж и склада в Коломне.
Вчера — 17 апреля, пятница / Москва
Прогнозируется увеличение площади легкой промышленности в Московском регионе до 3,4 миллионов квадратных метров к 2028 году.
Вчера — 17 апреля, пятница / Москва
Цены на жилье в центре Москвы достигли 1,45 млн рублей за квадратный метр - исторический максимум
Вчера — 17 апреля, пятница / Москва
Покупка бизнес-центра «Филипповский» в Москве совершена ЗПИФом «Байкал рентный 2»
Вчера — 17 апреля, пятница / Москва
Облик нового Центрального дома кино в Москве окончательно утвержден.
Вчера — 17 апреля, пятница / Москва
"Продаётся земельный участок рядом со Сколково для строительства жилого комплекса"
16 апреля, четверг / Санкт-Петербург
Торговый центр Welcome в Выборге выставлен на аукцион с начальной ценой 437,7 млн рублей.
16 апреля, четверг / Москва
Часть недвижимости у Садового кольца выставлена на аукцион с начальной ценой 1,89 млрд рублей.
16 апреля, четверг / Москва
"Новый район Покровское-Стрешнево будет оборудован офисами, имеющими собственный выход к метро"
16 апреля, четверг / Санкт-Петербург
"Новое обязательство восстановить старое здание на Заставской улице в Петербурге"
16 апреля, четверг / Москва
Группа AVA выставляет на продажу свои активы в Москве и Подмосковье
16 апреля, четверг / Москва
Торговый центр "Щёлковский" удвоил свою площадь после расширения от "Love Republic"
16 апреля, четверг / Москва
"Открытие зоомагазина с груминг-салоном 'Четыре Лапы' в ТЦ 'Левел Причальный'"
16 апреля, четверг / Санкт-Петербург
Как предприятия общественного обслуживания способствуют привлекательности жилых комплексов премиум-класса в Санкт-Петербурге
16 апреля, четверг / Москва
Рост стоимости строительства офисов премиум-класса в Москве составил 15% за год.
16 апреля, четверг / Москва
Рост объема сделок с офисными помещениями в новых проектах Дубая в четыре с половиной раза за год