Снять офис 1315 м² в БЦ Vereyskaya Plaza 2
Описание
Предлагаем в аренду офис на 110 - 292 сотрудников в бизнес-центре "Верейская Плаза 2".
Разработаем планировку под вашу команду бесплатно с неограниченными правками.
Площадь: 1 315 м².
Состояние: готов к въезду.
Арендная плата: 2 833 996 руб./мес.
Ставка: 25 862 руб./м²/год (включая эксплуатацию).
Налогообложение: включая НДС.
Коммунальные расходы: оплачиваются по факту.
Тип аренды: Прямая аренда.
Этаж: 2, 3, 5, 6 из 8.
Помещение с функциональной кабинетной планировкой.
Вентиляция: приточно-вытяжная.
Кондиционирование: центральное.
Охрана: круглосуточная охрана здания.
Пожарная сигнализация: датчики пожаротушения.
Звоните или пишите в чат - организуем просмотр в день обращения и направим презентацию по объекту.
Бесплатно разработаем планировку под вашу команду, рассчитаем оптимальную рассадку и зонирование.
*Количество рабочих мест рассчитано автоматически: от 4,5 до 12 м² на человека.
ID объекта: 038317
Разработаем планировку под вашу команду бесплатно с неограниченными правками.
Площадь: 1 315 м².
Состояние: готов к въезду.
Арендная плата: 2 833 996 руб./мес.
Ставка: 25 862 руб./м²/год (включая эксплуатацию).
Налогообложение: включая НДС.
Коммунальные расходы: оплачиваются по факту.
Тип аренды: Прямая аренда.
Этаж: 2, 3, 5, 6 из 8.
Помещение с функциональной кабинетной планировкой.
Вентиляция: приточно-вытяжная.
Кондиционирование: центральное.
Охрана: круглосуточная охрана здания.
Пожарная сигнализация: датчики пожаротушения.
Звоните или пишите в чат - организуем просмотр в день обращения и направим презентацию по объекту.
Бесплатно разработаем планировку под вашу команду, рассчитаем оптимальную рассадку и зонирование.
*Количество рабочих мест рассчитано автоматически: от 4,5 до 12 м² на человека.
ID объекта: 038317
Расположение
г Москва, ул Верейская, д 17
Славянский бульвар
—
10 мин
Давыдково
—
8 мин
Аминьевская
—
23 мин
Аминьевская
—
23 мин
Кунцевская
—
22 мин
Технические характеристики
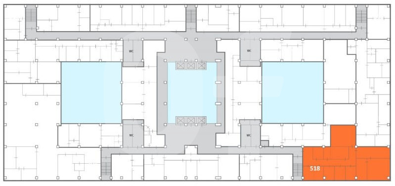
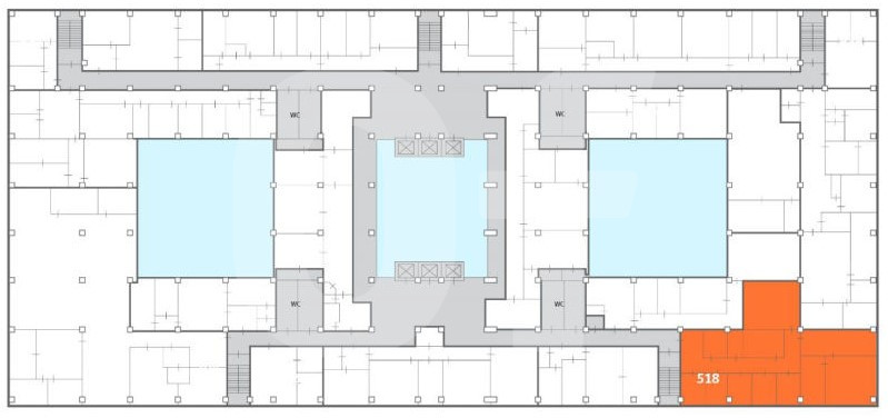
Свободные помещения в БЦ Vereyskaya Plaza 2
Новость дня
Все новости
Вчера — 17 апреля, пятница / Москва
"Компания, связанная с Олегом Дерипаской, отозвала свое управление гостиничным комплексом «Имеретинский» в Сириусе"
Вчера — 17 апреля, пятница / Москва
"Выручка компании X5 Group увеличилась на 11,3% за первый квартал"
Вчера — 17 апреля, пятница / Москва
"Компания «Велесстрой» приобрела бизнес-центр «Лесная 6» возле Белорусского вокзала"
Вчера — 17 апреля, пятница / Москва
"Строительная компания «Среда» запланировала возведение офисных помещений площадью 25 тыс. кв. м на территории Южного округа Москвы"
Вчера — 17 апреля, пятница / Москва
Компания ТСТН расширяет свою деятельность с открытием офиса продаж и склада в Коломне.
Вчера — 17 апреля, пятница / Москва
Прогнозируется увеличение площади легкой промышленности в Московском регионе до 3,4 миллионов квадратных метров к 2028 году.
Вчера — 17 апреля, пятница / Москва
Цены на жилье в центре Москвы достигли 1,45 млн рублей за квадратный метр - исторический максимум
Вчера — 17 апреля, пятница / Москва
Покупка бизнес-центра «Филипповский» в Москве совершена ЗПИФом «Байкал рентный 2»
Вчера — 17 апреля, пятница / Москва
Облик нового Центрального дома кино в Москве окончательно утвержден.
Вчера — 17 апреля, пятница / Москва
"Продаётся земельный участок рядом со Сколково для строительства жилого комплекса"
16 апреля, четверг / Санкт-Петербург
Торговый центр Welcome в Выборге выставлен на аукцион с начальной ценой 437,7 млн рублей.
16 апреля, четверг / Москва
Часть недвижимости у Садового кольца выставлена на аукцион с начальной ценой 1,89 млрд рублей.
16 апреля, четверг / Москва
"Новый район Покровское-Стрешнево будет оборудован офисами, имеющими собственный выход к метро"
16 апреля, четверг / Санкт-Петербург
"Новое обязательство восстановить старое здание на Заставской улице в Петербурге"
16 апреля, четверг / Москва
Группа AVA выставляет на продажу свои активы в Москве и Подмосковье
16 апреля, четверг / Москва
Торговый центр "Щёлковский" удвоил свою площадь после расширения от "Love Republic"
16 апреля, четверг / Москва
"Открытие зоомагазина с груминг-салоном 'Четыре Лапы' в ТЦ 'Левел Причальный'"
16 апреля, четверг / Санкт-Петербург
Как предприятия общественного обслуживания способствуют привлекательности жилых комплексов премиум-класса в Санкт-Петербурге
16 апреля, четверг / Москва
Рост стоимости строительства офисов премиум-класса в Москве составил 15% за год.
16 апреля, четверг / Москва
Рост объема сделок с офисными помещениями в новых проектах Дубая в четыре с половиной раза за год