Описание
РАБОТАЕМ С АГЕНТАМИ И ПЛАТИМ! РЕНТАВИК— участник ассоциации агентств КОКОН. Здание расположено в самом сердце Москвы, в престижном Центральном административном округе. Идеальное расположение в историческом центре столицы. Развитая инфраструктура престижного района. Отличная транспортная доступность. Описание помещения: Два уровня - 1 этаж и антресоль.
Помещение с отдельным входом с улицы.
Есть возможность организации
летней веранды.
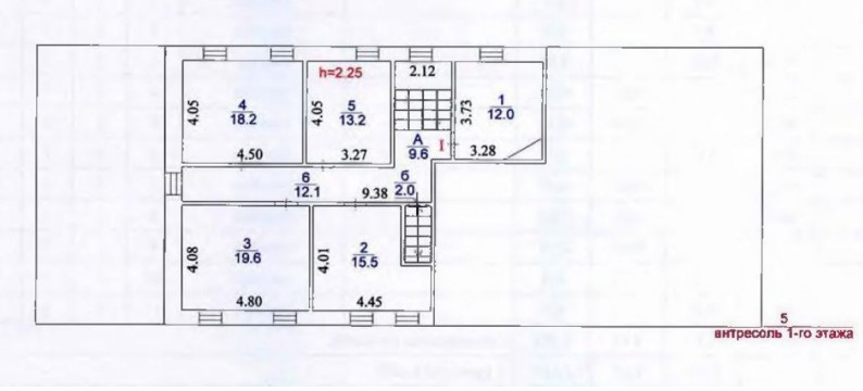
Электрическая мощность - 40 кВт. Отдельный вход. Этаж: 1. Планировка: смешанная. Типовой ремонт. Подходит под: учебные цели. Высота потолка: 3м. Тип налогообложения: С НДС. Коммунальные платежи оплачиваются дополнительно. Налоговая: 01. Лифты: Нет. Вентиляция: Естественная. Кондиционирование: Сплит-системы. Безопасность: Круглосуточный доступ, Система пожаротушений, Видеонаблюдение. Провайдеры: . Парковка: Наземная. Лот 73184-133
Помещение с отдельным входом с улицы.
Есть возможность организации
летней веранды.
Электрическая мощность - 40 кВт. Отдельный вход. Этаж: 1. Планировка: смешанная. Типовой ремонт. Подходит под: учебные цели. Высота потолка: 3м. Тип налогообложения: С НДС. Коммунальные платежи оплачиваются дополнительно. Налоговая: 01. Лифты: Нет. Вентиляция: Естественная. Кондиционирование: Сплит-системы. Безопасность: Круглосуточный доступ, Система пожаротушений, Видеонаблюдение. Провайдеры: . Парковка: Наземная. Лот 73184-133
Расположение
г Москва, ул Новая Басманная, д 20 стр 5
Комсомольская
—
8 мин
Комсомольская
—
8 мин
Красные ворота
—
12 мин
Технические характеристики
Новость дня
Все новости
Сегодня — 17 апреля, пятница / Москва
"Компания, связанная с Олегом Дерипаской, отозвала свое управление гостиничным комплексом «Имеретинский» в Сириусе"
Сегодня — 17 апреля, пятница / Москва
"Выручка компании X5 Group увеличилась на 11,3% за первый квартал"
Сегодня — 17 апреля, пятница / Москва
"Компания «Велесстрой» приобрела бизнес-центр «Лесная 6» возле Белорусского вокзала"
Сегодня — 17 апреля, пятница / Москва
"Строительная компания «Среда» запланировала возведение офисных помещений площадью 25 тыс. кв. м на территории Южного округа Москвы"
Сегодня — 17 апреля, пятница / Москва
Компания ТСТН расширяет свою деятельность с открытием офиса продаж и склада в Коломне.
Сегодня — 17 апреля, пятница / Москва
Прогнозируется увеличение площади легкой промышленности в Московском регионе до 3,4 миллионов квадратных метров к 2028 году.
Сегодня — 17 апреля, пятница / Москва
Цены на жилье в центре Москвы достигли 1,45 млн рублей за квадратный метр - исторический максимум
Сегодня — 17 апреля, пятница / Москва
Покупка бизнес-центра «Филипповский» в Москве совершена ЗПИФом «Байкал рентный 2»
Сегодня — 17 апреля, пятница / Москва
Облик нового Центрального дома кино в Москве окончательно утвержден.
Сегодня — 17 апреля, пятница / Москва
"Продаётся земельный участок рядом со Сколково для строительства жилого комплекса"
Вчера — 16 апреля, четверг / Санкт-Петербург
Торговый центр Welcome в Выборге выставлен на аукцион с начальной ценой 437,7 млн рублей.
Вчера — 16 апреля, четверг / Москва
Часть недвижимости у Садового кольца выставлена на аукцион с начальной ценой 1,89 млрд рублей.
Вчера — 16 апреля, четверг / Москва
"Новый район Покровское-Стрешнево будет оборудован офисами, имеющими собственный выход к метро"
Вчера — 16 апреля, четверг / Санкт-Петербург
"Новое обязательство восстановить старое здание на Заставской улице в Петербурге"
Вчера — 16 апреля, четверг / Москва
Группа AVA выставляет на продажу свои активы в Москве и Подмосковье
Вчера — 16 апреля, четверг / Москва
Торговый центр "Щёлковский" удвоил свою площадь после расширения от "Love Republic"
Вчера — 16 апреля, четверг / Москва
"Открытие зоомагазина с груминг-салоном 'Четыре Лапы' в ТЦ 'Левел Причальный'"
Вчера — 16 апреля, четверг / Санкт-Петербург
Как предприятия общественного обслуживания способствуют привлекательности жилых комплексов премиум-класса в Санкт-Петербурге
Вчера — 16 апреля, четверг / Москва
Рост стоимости строительства офисов премиум-класса в Москве составил 15% за год.
Вчера — 16 апреля, четверг / Москва
Рост объема сделок с офисными помещениями в новых проектах Дубая в четыре с половиной раза за год