Описание
Предложение на продажу № 57404.
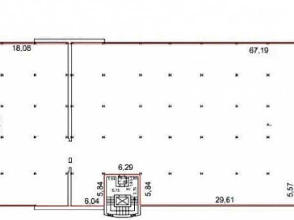
Предлагается в продажу помещение свободного назначения в современном ТЦ "Терабит" в центре густонаселенного жилого массива с развитой инфраструктурой. Помещение на 3 этаже общей площадью 1 343 м2, высота потолков 3 метра.
.
. Общая площадь -25000 кв.м
. - Электрическая мощность 2.5 МВт
. - Земля в собственности
. - 7 этажей
. - 3пассажирских лифта
. - 2грузовых уличных подъемника
. - Рампа для въезда/выезда автотранспорта на каждый изэтажей здания
. - Центральные сети коммуникаций
. - В шаговой доступности от станции МЦД «Павшинская пойма».
. • Парковка на 91 машиноместо
.
. Помещение объединено со вторым этажом лестничным маршем, ближайшая часть этажа к входной группы здания. Идеально по торговые площади.
.
. В ближайшем окружении проживает более 100 000 человек, в непосредственной близости будет построено 200 000 м2 жилого массива. Доступ 24/7. Помещение подходит под производство, имеются все необходимые технологии.
.
. Цена 150 000 руб/м2 + НДС.
Торговая недвижимость, Street Retail. 1 линия домов. Торговый центр. Витрины. Место для рекламы. Зона разгрузки. Проходное и проездное место.
Без комиссии.
Предлагается в продажу помещение свободного назначения в современном ТЦ "Терабит" в центре густонаселенного жилого массива с развитой инфраструктурой. Помещение на 3 этаже общей площадью 1 343 м2, высота потолков 3 метра.
.
. Общая площадь -25000 кв.м
. - Электрическая мощность 2.5 МВт
. - Земля в собственности
. - 7 этажей
. - 3пассажирских лифта
. - 2грузовых уличных подъемника
. - Рампа для въезда/выезда автотранспорта на каждый изэтажей здания
. - Центральные сети коммуникаций
. - В шаговой доступности от станции МЦД «Павшинская пойма».
. • Парковка на 91 машиноместо
.
. Помещение объединено со вторым этажом лестничным маршем, ближайшая часть этажа к входной группы здания. Идеально по торговые площади.
.
. В ближайшем окружении проживает более 100 000 человек, в непосредственной близости будет построено 200 000 м2 жилого массива. Доступ 24/7. Помещение подходит под производство, имеются все необходимые технологии.
.
. Цена 150 000 руб/м2 + НДС.
Торговая недвижимость, Street Retail. 1 линия домов. Торговый центр. Витрины. Место для рекламы. Зона разгрузки. Проходное и проездное место.
Без комиссии.
Расположение
Московская обл, г Красногорск, б-р Красногорский, д 4 стр 1
Мякинино
—
30 мин
Пенягино
—
8 мин
Павшино
—
13 мин
Технические характеристики
Параметры
Статус владельца объявления
агентство
Новость дня
Расширение возможностей для B2B-клиентов: Avito вводит новые услуги для строительства складов
На платформе Авито теперь доступна категория "Коммерческое строительство" в сегменте услуг, предлагающая широкий выбор специализированных работ и возведение объектов "под ключ" для бизнеса, что упрощает поиск подрядчиков и субподрядчиков для коммерческих проектов.
Все новости
Вчера — 30 апреля, четверг / Москва
"Бумеранг Капитал" увеличил свою долю в сети кафе-пекарен "Цех 85" до 50%
Вчера — 30 апреля, четверг / Ставропольский
В Кисловодске начался проект строительства инвестиционного отеля "Реликт"
Вчера — 30 апреля, четверг / Москва
Ресторан «Долина 5165» и магазин Sokolov теперь доступны посетителям ТРЦ Avenue Sever
Вчера — 30 апреля, четверг / Москва
"Новый флагманский магазин под названием «Флаувау» открыл свои двери на Мясницкой улице"
Вчера — 30 апреля, четверг / Москва
"Уровень вакансии на складах в Московском регионе достиг 5,4% из-за увеличения предложений по субаренде"
Вчера — 30 апреля, четверг / Москва
"Прогнозируется незначительный прирост числа туристов в первом квартале 2026 года - всего 2,8%"
Вчера — 30 апреля, четверг / Москва
Компания "Ориентир" планирует вложить до 150 млрд рублей в расширение бизнеса и развитие новых секторов.
Вчера — 30 апреля, четверг / Москва
"Завершено строительство наземной парковки на 400 автомобильных мест в парке «Ривер Парк Коломенское»"
Вчера — 30 апреля, четверг / Москва
Скорось открытия новых магазинов «Лэтуаль» снизится - 150 точек закроются к 2026 году.
Вчера — 30 апреля, четверг / Москва
Смайл-бар сети "Белая точка" теперь доступен посетителям ТЦ "Левел Причальный"
29 апреля, среда / Москва
Московский цех открыл производство 3D-принтеров для металлической печати.
29 апреля, среда / Москва
БМ-банк завершил продажу большей части площадей в ТЦ «Весна» на Новом Арбате.
29 апреля, среда / Москва
Перефразированное название: "Сеть магазинов 'Жизньмарт' возобновляет свою деятельность в Челябинске"
29 апреля, среда / Санкт-Петербург
Сервисный офис «Практик» начал свою работу на Октябрьской набережной в Санкт-Петербурге.
29 апреля, среда / Санкт-Петербург
Строительство складских помещений в Санкт-Петербурге и Ленинградской области увеличилось в 2,5 раза.
29 апреля, среда / Москва
Москва увеличила объем строительства в рамках программы МПТ до 9,5 миллионов квадратных метров
29 апреля, среда / Санкт-Петербург
Соседский центр "ЖИВИ Клуб" открыл свои двери в Новоселье
29 апреля, среда / Москва
"Завершено строительство пятиэтажной наземной парковки в районе Нагатинский Затон"
29 апреля, среда / Санкт-Петербург
Рекордный уровень строительства складов зафиксирован в Санкт-Петербурге и Ленинградской области
29 апреля, среда / Москва
Аренда складов в Москве снизилась на 25%