Описание
Предложение на продажу № 57653.
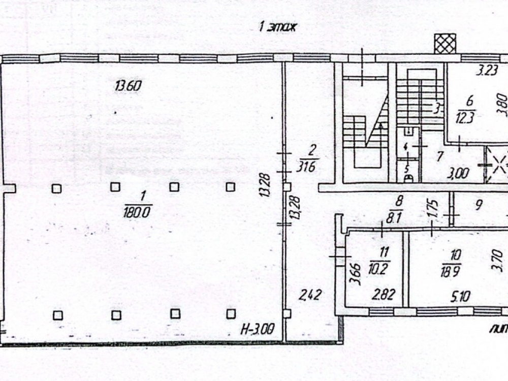
Предлагается в продажу готовый арендный бизнес, по адресу: Большая Очаковская улица, 23/8. 10 минут от метро Озерной. Помещение расположено на 1 и -1 этаже жилого дома общей площадью 390 м2, высота потолка на -1 этаже 2,50 м, высота потолков 5 м. Заключен договор с федеральной сетевой компанией! 88-95% средняя загруженность боксов (Объект запустили в августе 2024 г).
.
.
. МАП с вычетом расходов за уборку, интернет, комуналку и комиссии сервиса (чистая прибыль)
. в среднем 500 тр
.
. ИНДЕКСАЦИЯ от 10 до 30% абсолютная.
Этажи с 1 по 1.
Торговая недвижимость, Street Retail. 1 линия домов. Витрины. Место для рекламы. Проходное и проездное место.
Арендный бизнес. Окупаемость c индексацией: 5 лет и 7 меc. Ежегодная индексация: 15%. По первому году: 7 лет и 10 меc. Доходность c индексацией: 17.91%. Доходность c индексацией: 17.91%. По первому году: 12.77%. Присутствует арендатор: кладовкин.
Без комиссии.
Предлагается в продажу готовый арендный бизнес, по адресу: Большая Очаковская улица, 23/8. 10 минут от метро Озерной. Помещение расположено на 1 и -1 этаже жилого дома общей площадью 390 м2, высота потолка на -1 этаже 2,50 м, высота потолков 5 м. Заключен договор с федеральной сетевой компанией! 88-95% средняя загруженность боксов (Объект запустили в августе 2024 г).
.
.
. МАП с вычетом расходов за уборку, интернет, комуналку и комиссии сервиса (чистая прибыль)
. в среднем 500 тр
.
. ИНДЕКСАЦИЯ от 10 до 30% абсолютная.
Этажи с 1 по 1.
Торговая недвижимость, Street Retail. 1 линия домов. Витрины. Место для рекламы. Проходное и проездное место.
Арендный бизнес. Окупаемость c индексацией: 5 лет и 7 меc. Ежегодная индексация: 15%. По первому году: 7 лет и 10 меc. Доходность c индексацией: 17.91%. Доходность c индексацией: 17.91%. По первому году: 12.77%. Присутствует арендатор: кладовкин.
Без комиссии.
Расположение
г Москва, ул Большая Очаковская, д 23/8
Озёрная
—
15 мин
Очаково
—
4 мин
Аминьевская
—
24 мин
Технические характеристики
Параметры
Статус владельца объявления
агентство
Новость дня
Все новости
Сегодня — 30 апреля, четверг / Ставропольский
В Кисловодске начался проект строительства инвестиционного отеля "Реликт"
Сегодня — 30 апреля, четверг / Москва
Ресторан «Долина 5165» и магазин Sokolov теперь доступны посетителям ТРЦ Avenue Sever
Сегодня — 30 апреля, четверг / Москва
"Новый флагманский магазин под названием «Флаувау» открыл свои двери на Мясницкой улице"
Сегодня — 30 апреля, четверг / Москва
"Уровень вакансии на складах в Московском регионе достиг 5,4% из-за увеличения предложений по субаренде"
Сегодня — 30 апреля, четверг / Москва
"Прогнозируется незначительный прирост числа туристов в первом квартале 2026 года - всего 2,8%"
Сегодня — 30 апреля, четверг / Москва
Компания "Ориентир" планирует вложить до 150 млрд рублей в расширение бизнеса и развитие новых секторов.
Сегодня — 30 апреля, четверг / Москва
"Завершено строительство наземной парковки на 400 автомобильных мест в парке «Ривер Парк Коломенское»"
Сегодня — 30 апреля, четверг / Москва
Скорось открытия новых магазинов «Лэтуаль» снизится - 150 точек закроются к 2026 году.
Сегодня — 30 апреля, четверг / Москва
Смайл-бар сети "Белая точка" теперь доступен посетителям ТЦ "Левел Причальный"
Вчера — 29 апреля, среда / Москва
Московский цех открыл производство 3D-принтеров для металлической печати.
Вчера — 29 апреля, среда / Москва
БМ-банк завершил продажу большей части площадей в ТЦ «Весна» на Новом Арбате.
Вчера — 29 апреля, среда / Москва
Перефразированное название: "Сеть магазинов 'Жизньмарт' возобновляет свою деятельность в Челябинске"
Вчера — 29 апреля, среда / Санкт-Петербург
Сервисный офис «Практик» начал свою работу на Октябрьской набережной в Санкт-Петербурге.
Вчера — 29 апреля, среда / Санкт-Петербург
Строительство складских помещений в Санкт-Петербурге и Ленинградской области увеличилось в 2,5 раза.
Вчера — 29 апреля, среда / Москва
Москва увеличила объем строительства в рамках программы МПТ до 9,5 миллионов квадратных метров
Вчера — 29 апреля, среда / Санкт-Петербург
Соседский центр "ЖИВИ Клуб" открыл свои двери в Новоселье
Вчера — 29 апреля, среда / Москва
"Завершено строительство пятиэтажной наземной парковки в районе Нагатинский Затон"
Вчера — 29 апреля, среда / Санкт-Петербург
Рекордный уровень строительства складов зафиксирован в Санкт-Петербурге и Ленинградской области
Вчера — 29 апреля, среда / Москва
Аренда складов в Москве снизилась на 25%
28 апреля, вторник / Москва
"Появление двух новых брендов на российском рынке в начале 2026 года"