Купить ПСН 27 м² в торгово-развлекательном центре
ID 3329
Цена
15 000 000 ₽
Ставка
555 556 ₽ / м²
Площадь
27 м²
Этаж
1 из -
ИФНС
7743
агентство недвижимости
г Москва, ш Дмитровское, д 73
На карте
Верхние Лихоборы
—
1 мин
Описание
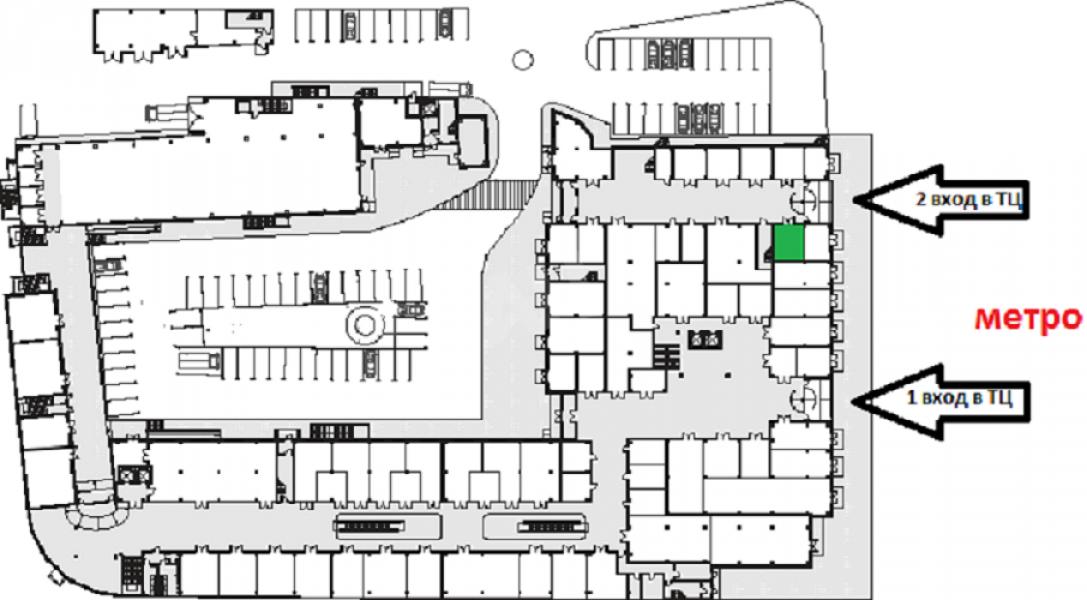
Лот №452580 Продается торговое помещение площадью 27 кв. м., расположенное в торговом центре «MetroMall». Объект находится на первой линии, слева от второго входа в ТЦ. В помещении имеется мокрая точка.
Торгово-развлекательный центр «MetroMall» представляет собой современный комплекс площадью 15 000 кв. м, ориентированный на семейную аудиторию. Центр отличается отличной транспортной и пешеходной доступностью.
Местоположение гарантирует стабильно высокий поток посетителей. Это обеспечивается значительным автомобильным трафиком по Дмитровскому шоссе, составляющим 80 000 автомобилей в сутки, пассажиропотоком ближайшей станции метро в 70 тысяч человек в сутки, а также наличием обширного жилого массива в непосредственной пешей доступности.
Чтобы получить ПОДРОБНУЮ ПРЕЗЕНТАЦИЮ С ПЛАНИРОВКОЙ И ФОТОГРАФИЯМИ на этот объект, звоните. Высылаем в течение 15 минут по запросу!
☎ Конт. лицо: Егор Викторович, доб. 221, ЛОТ №452580
Торгово-развлекательный центр «MetroMall» представляет собой современный комплекс площадью 15 000 кв. м, ориентированный на семейную аудиторию. Центр отличается отличной транспортной и пешеходной доступностью.
Местоположение гарантирует стабильно высокий поток посетителей. Это обеспечивается значительным автомобильным трафиком по Дмитровскому шоссе, составляющим 80 000 автомобилей в сутки, пассажиропотоком ближайшей станции метро в 70 тысяч человек в сутки, а также наличием обширного жилого массива в непосредственной пешей доступности.
Чтобы получить ПОДРОБНУЮ ПРЕЗЕНТАЦИЮ С ПЛАНИРОВКОЙ И ФОТОГРАФИЯМИ на этот объект, звоните. Высылаем в течение 15 минут по запросу!
☎ Конт. лицо: Егор Викторович, доб. 221, ЛОТ №452580
Расположение
г Москва, ш Дмитровское, д 73
Верхние Лихоборы
—
1 мин
Технические характеристики
Параметры
Статус владельца объявления
агентство
Новость дня
Расширение возможностей для B2B-клиентов: Avito вводит новые услуги для строительства складов
На платформе Авито теперь доступна категория "Коммерческое строительство" в сегменте услуг, предлагающая широкий выбор специализированных работ и возведение объектов "под ключ" для бизнеса, что упрощает поиск подрядчиков и субподрядчиков для коммерческих проектов.
Все новости
Вчера — 30 апреля, четверг / Москва
"Бумеранг Капитал" увеличил свою долю в сети кафе-пекарен "Цех 85" до 50%
Вчера — 30 апреля, четверг / Ставропольский
В Кисловодске начался проект строительства инвестиционного отеля "Реликт"
Вчера — 30 апреля, четверг / Москва
Ресторан «Долина 5165» и магазин Sokolov теперь доступны посетителям ТРЦ Avenue Sever
Вчера — 30 апреля, четверг / Москва
"Новый флагманский магазин под названием «Флаувау» открыл свои двери на Мясницкой улице"
Вчера — 30 апреля, четверг / Москва
"Уровень вакансии на складах в Московском регионе достиг 5,4% из-за увеличения предложений по субаренде"
Вчера — 30 апреля, четверг / Москва
"Прогнозируется незначительный прирост числа туристов в первом квартале 2026 года - всего 2,8%"
Вчера — 30 апреля, четверг / Москва
Компания "Ориентир" планирует вложить до 150 млрд рублей в расширение бизнеса и развитие новых секторов.
Вчера — 30 апреля, четверг / Москва
"Завершено строительство наземной парковки на 400 автомобильных мест в парке «Ривер Парк Коломенское»"
Вчера — 30 апреля, четверг / Москва
Скорось открытия новых магазинов «Лэтуаль» снизится - 150 точек закроются к 2026 году.
Вчера — 30 апреля, четверг / Москва
Смайл-бар сети "Белая точка" теперь доступен посетителям ТЦ "Левел Причальный"
29 апреля, среда / Москва
Московский цех открыл производство 3D-принтеров для металлической печати.
29 апреля, среда / Москва
БМ-банк завершил продажу большей части площадей в ТЦ «Весна» на Новом Арбате.
29 апреля, среда / Москва
Перефразированное название: "Сеть магазинов 'Жизньмарт' возобновляет свою деятельность в Челябинске"
29 апреля, среда / Санкт-Петербург
Сервисный офис «Практик» начал свою работу на Октябрьской набережной в Санкт-Петербурге.
29 апреля, среда / Санкт-Петербург
Строительство складских помещений в Санкт-Петербурге и Ленинградской области увеличилось в 2,5 раза.
29 апреля, среда / Москва
Москва увеличила объем строительства в рамках программы МПТ до 9,5 миллионов квадратных метров
29 апреля, среда / Санкт-Петербург
Соседский центр "ЖИВИ Клуб" открыл свои двери в Новоселье
29 апреля, среда / Москва
"Завершено строительство пятиэтажной наземной парковки в районе Нагатинский Затон"
29 апреля, среда / Санкт-Петербург
Рекордный уровень строительства складов зафиксирован в Санкт-Петербурге и Ленинградской области
29 апреля, среда / Москва
Аренда складов в Москве снизилась на 25%