Купить дом 528 м² в коттеджном поселке Новая Ильичевка
ID 490551
Цена
97 000 000 ₽
Ставка
183 712 ₽ / м²
Площадь
528 м²
г Москва, поселение Первомайское, хутор Ильичевка
На карте
Теплый Стан
Ольховая
—
30 мин
Крёкшино
—
24 мин
Описание
Код объекта в БД Агентства: 110-437, Калужское шоссе, 17 км от МКАД, Ильичевка к/п (Ильичевка).
Красивый проект дома в европейском стиле, облицован немецким клинкерным кирпичом. На шикарном участке с множеством лесных деревьев, кроме основного дома, расположен двухэтажный спа-комплекс с большим переливным бассейном, большой бильярдной и полноценной квартирой для гостей. Оба дома меблированы качественной импортной мебелью и оборудованы техникой. Кроме того на участке расположена крытая благоустроенная беседка. Дом находится в обжитом коттеджном поселке в едином стиле, с прозрачными заборами, широкими асфальтированными дорогами и центральными коммуникациями.
Тип застройки: обжитой к/п. Пл. дома 528кв.м., пл. участка 15 сот. Стадия готовности: меблирован. Спален: 5. С/узлов: 5. Комнат всего: 11.
Важные опции: бассейн (переливной 14*6,5 м, с римским входом, глубиной 0,75-2,1 м.); баня (в СПА-комплексе); терраса; машиномест крытых: 2; аквариум на 1000 л., летняя беседка 32 кв.м с водой, канализацией, бильярдная.
Окна: стеклопакеты ПВХ (Двухкамерный ПВХ стеклопакет с раскладкой). Кровля: мягкая (мягкая черепица, металлические водостоки).
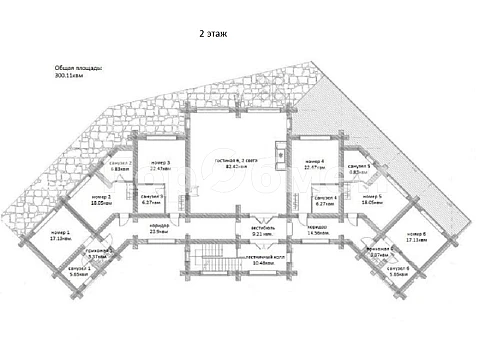
1-ый этаж: прихожая 15 кв.м, кухня-столовая 26 кв.м, котельная 7 кв.м, санузел 5 кв.м, гардеробная 2 кв.м, холл 12 кв.м, гостиная 27 кв.м, кабинет 12 кв.м, гостиная 33 кв.м, каминный зал(столовая) 24 кв.м.
2-ой этаж: холл 3 кв.м, спальня 14 кв.м, спальня 14 кв.м, санузел 10 кв.м, игровая 31 кв.м с детской 16 кв.м, спальня-16 кв.м.
Внутренняя отделка: много декора (колонны, полуколонны, пилястры, карнизы); плитка с водяным подогревом на кухне и в санузлах; импортная сантехника премиальных брендов.
Инженерное обеспечение: Итальянский котел Ferroli, бойлер косвенного нагрева Reflex 150 л., многоступенчатая система очистки воды; сигнализация пр-ва Израиль с выводом на пост охраны на КПП;
генератор Мицубиси 15 кВт с системой автозапуска.
Мебель, оборудование: дом и СПА-комплекс полностью обустроен импортными инженерным и бытовым оборудованием, мебелью, кухня с техникой, большой русский бильярд, полностью оборудованный переливной бассейн..
Тип участка: парковый со взрослыми деревьями.
Доп. строения: .
- двухэтажный СПА-комплекс площадью 255 кв.м. На первом этаже комплекса: котельная, кухня-гостиная 42 кв.м, зона отдыха при бассейне 20 кв.м с плетёной мебелью из ротанга, бассейн переливной 14*6,5м глубиной 0,75-2,3 м с римским входом, каскадом и подсветкой, с современной системой очистки с озонированием и фторированием. На втором этаже: бильярдная 54 кв.м, санузел 4 кв.м, спальня 14 кв.м со своим санузлом.
- Гараж на 2 автомобиля;
- Беседка крытая 32кв.м, кованная, со стационарным мангалом, мойкой с водой и водоотведением..
Коммуникации:
газ - есть (магистральный),
э/э - есть (25 кВт),
водопровод - центральный (ВЗУ на поселок),
канализация - централизованная (очистные поселка),
охрана - есть (КПП, военизированная охрана, видеонаблюдение).
Инфраструктура: В поселке есть административное здание с обслуживающим персоналом, детские, спортивные площадки, пляжная зона.
Прекрасная транспортная доступность по двум скоростным шоссе Киевскому и Калужскому. Рядом инфраструктура г. Троицка (школы, детские сады, рынок, магазины, больница, банки, аптека и т.д.).Пос. Птичное, (2 детских сада и школа). В 5 минутах езды пятизвездочный отель "Теплеево Резорт" с богатой инфраструктурой: бассейн, сауна, SPA центр красоты и здоровья, тренажерные залы, парикмахерские и косметологические услуги, рестораны, боулинг, рыбалка и многое другое. Недалеко от комплекса расположен конный клуб с обширной лесной территорией. "Русская теннисная академия" - крупнейший современный теннисный клуб европейского уровня (8 крытых кортов с профессиональным покрытием, 6 открытых грунтовых кортов и 2 открытых корта с профессиональным покрытием)
В непосредственной близости река Десна.
Красивый проект дома в европейском стиле, облицован немецким клинкерным кирпичом. На шикарном участке с множеством лесных деревьев, кроме основного дома, расположен двухэтажный спа-комплекс с большим переливным бассейном, большой бильярдной и полноценной квартирой для гостей. Оба дома меблированы качественной импортной мебелью и оборудованы техникой. Кроме того на участке расположена крытая благоустроенная беседка. Дом находится в обжитом коттеджном поселке в едином стиле, с прозрачными заборами, широкими асфальтированными дорогами и центральными коммуникациями.
Тип застройки: обжитой к/п. Пл. дома 528кв.м., пл. участка 15 сот. Стадия готовности: меблирован. Спален: 5. С/узлов: 5. Комнат всего: 11.
Важные опции: бассейн (переливной 14*6,5 м, с римским входом, глубиной 0,75-2,1 м.); баня (в СПА-комплексе); терраса; машиномест крытых: 2; аквариум на 1000 л., летняя беседка 32 кв.м с водой, канализацией, бильярдная.
Окна: стеклопакеты ПВХ (Двухкамерный ПВХ стеклопакет с раскладкой). Кровля: мягкая (мягкая черепица, металлические водостоки).
1-ый этаж: прихожая 15 кв.м, кухня-столовая 26 кв.м, котельная 7 кв.м, санузел 5 кв.м, гардеробная 2 кв.м, холл 12 кв.м, гостиная 27 кв.м, кабинет 12 кв.м, гостиная 33 кв.м, каминный зал(столовая) 24 кв.м.
2-ой этаж: холл 3 кв.м, спальня 14 кв.м, спальня 14 кв.м, санузел 10 кв.м, игровая 31 кв.м с детской 16 кв.м, спальня-16 кв.м.
Внутренняя отделка: много декора (колонны, полуколонны, пилястры, карнизы); плитка с водяным подогревом на кухне и в санузлах; импортная сантехника премиальных брендов.
Инженерное обеспечение: Итальянский котел Ferroli, бойлер косвенного нагрева Reflex 150 л., многоступенчатая система очистки воды; сигнализация пр-ва Израиль с выводом на пост охраны на КПП;
генератор Мицубиси 15 кВт с системой автозапуска.
Мебель, оборудование: дом и СПА-комплекс полностью обустроен импортными инженерным и бытовым оборудованием, мебелью, кухня с техникой, большой русский бильярд, полностью оборудованный переливной бассейн..
Тип участка: парковый со взрослыми деревьями.
Доп. строения: .
- двухэтажный СПА-комплекс площадью 255 кв.м. На первом этаже комплекса: котельная, кухня-гостиная 42 кв.м, зона отдыха при бассейне 20 кв.м с плетёной мебелью из ротанга, бассейн переливной 14*6,5м глубиной 0,75-2,3 м с римским входом, каскадом и подсветкой, с современной системой очистки с озонированием и фторированием. На втором этаже: бильярдная 54 кв.м, санузел 4 кв.м, спальня 14 кв.м со своим санузлом.
- Гараж на 2 автомобиля;
- Беседка крытая 32кв.м, кованная, со стационарным мангалом, мойкой с водой и водоотведением..
Коммуникации:
газ - есть (магистральный),
э/э - есть (25 кВт),
водопровод - центральный (ВЗУ на поселок),
канализация - централизованная (очистные поселка),
охрана - есть (КПП, военизированная охрана, видеонаблюдение).
Инфраструктура: В поселке есть административное здание с обслуживающим персоналом, детские, спортивные площадки, пляжная зона.
Прекрасная транспортная доступность по двум скоростным шоссе Киевскому и Калужскому. Рядом инфраструктура г. Троицка (школы, детские сады, рынок, магазины, больница, банки, аптека и т.д.).Пос. Птичное, (2 детских сада и школа). В 5 минутах езды пятизвездочный отель "Теплеево Резорт" с богатой инфраструктурой: бассейн, сауна, SPA центр красоты и здоровья, тренажерные залы, парикмахерские и косметологические услуги, рестораны, боулинг, рыбалка и многое другое. Недалеко от комплекса расположен конный клуб с обширной лесной территорией. "Русская теннисная академия" - крупнейший современный теннисный клуб европейского уровня (8 крытых кортов с профессиональным покрытием, 6 открытых грунтовых кортов и 2 открытых корта с профессиональным покрытием)
В непосредственной близости река Десна.
Расположение
г Москва, поселение Первомайское, хутор Ильичевка
Теплый Стан
Ольховая
—
30 мин
Крёкшино
—
24 мин
Технические характеристики
Параметры
Водоснабжение
есть
Электричество
есть
Канализация
есть
Газ
есть
Телекоммуникации
интернет
Статус владельца объявления
агентство
Свободные помещения в Коттеджный поселок Новая Ильичевка
Новость дня
Все новости
Вчера — 25 мая, понедельник / Москва
Большинство конноспортивных клубов находятся в Москве и Санкт-Петербурге.
Вчера — 25 мая, понедельник / Москва
Магазин Familia открылся в районном центре «Место встречи Баку»
Вчера — 25 мая, понедельник / Санкт-Петербург
Сеть "Дринкит" из Москвы планирует запустить корпоративное кафе в Санкт-Петербурге.
Вчера — 25 мая, понедельник / Санкт-Петербург
В Санкт-Петербурге начался процесс восстановления зданий "Ягодного ряда"
Вчера — 25 мая, понедельник / Москва
Снижение стоимости жилья в Дубае на 8%
Вчера — 25 мая, понедельник / Санкт-Петербург
"Число отелей в Санкт-Петербурге увеличено на 1,4 тыс. номеров"
Вчера — 25 мая, понедельник / Москва
Инвестор приобрел все коммерческие площади в бизнес-центре "НУН"
Вчера — 25 мая, понедельник / Санкт-Петербург
"На территории производства «Рыбацкое» в Санкт-Петербурге запланировано строительство light industrial-комплекса"
Вчера — 25 мая, понедельник / Коми
Новая концепция для Индустриального парка «Зеленец» в Коми
Вчера — 25 мая, понедельник / Москва
Как можно перефразировать данное заголовок?
22 мая, пятница / Москва
Фестиваль плова RRG возвращается в Москву: не пропустите событие 29 мая на площадке Apple Hill
22 мая, пятница / Москва
В здании 1917 года в Пресненском районе будет открыто новое медицинское учреждение.
22 мая, пятница / Москва
Parametr запустил в эксплуатацию первую часть промышленного парка «Кувекино»
22 мая, пятница / Москва
"Производитель лапши «Доширак» приобрел здание бывшей офисной части компании «Трансаэро» на Зубовском бульваре"
22 мая, пятница / Карелия
Имущественный комплекс Петрозаводского университета выставлен на продажу в Шуе
22 мая, пятница / Крым
"ВТБ планирует инвестировать 2,8 миллиарда рублей в создание пятизвездочного отеля «Берий Палас» в Евпатории"
22 мая, пятница / Москва
В Хорошевском районе одобрен проект строительства 13-этажного офисного здания общей площадью свыше 20 тыс. кв. м.
22 мая, пятница / Москва
"Рост капитальных расходов на отделку офисов базового и среднего уровней в 2025 году составил 12–13%"
22 мая, пятница / Москва
"В России за последние 10 лет отреставрировано более 5 тыс. номеров в исторических санаториях"
22 мая, пятница / Санкт-Петербург
"Открытие нового офиса банка «Дом.РФ» рядом с метро «Комендантский проспект» в Петербурге"