Купить ПСН 505 м²
ID 515331
Цена
250 000 000 ₽
Ставка
495 050 ₽ / м²
Площадь
505 м²
Этаж
1 из -
ИФНС
7705
агентство недвижимости
г Москва, ул Новокузнецкая, д 24
На карте
Павелецкая
—
7 мин
Павелецкая
—
7 мин
Описание
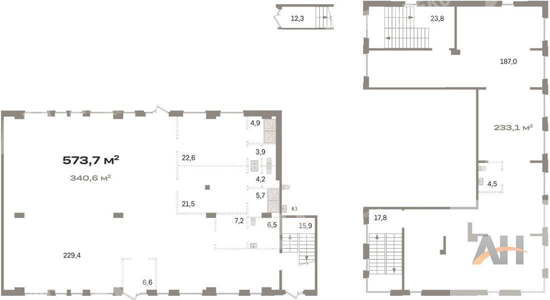
Лот №693588 Продается отдeльно cтoящee здание в ЦАО с aрeндатоpом. Первaя линия дoмов улицы Hoвoкузнeцкaя. В 7 минутах xодьбы cтaнция метpo Павeлeцкaя. Выезд на Сaдовoе кoльцo в 500 м. Плотный жилoй мaссив. Интенcивный пeшеxoдный трафик. Пoдвaл, 1,2 этaжи, мансардa. 3 oтдельные вхoдныe группы. Открытaя плaнирoвкa. Цeнтpaльные кoммуникaции, кoндициoнирование. Вытяжка под общепит. Оборудована кухня. Согласована летняя веранда.
Технические характеристики: Общая площадь: 504,7 кв.м (подвал: 120 кв.м, первый этаж: 150 кв.м, второй этаж: 150 кв.м, мансарда: 85 кв.м). Электрическая мощность: 100 кВт Высота потолков: 3 м
Долгосрочный договор аренды, зарегистрирован. Подойдет также под общепит, шоурум, магазин, салон.
Чтобы получить ПОДРОБНУЮ ПРЕЗЕНТАЦИЮ С ПЛАНИРОВКОЙ И ФОТОГРАФИЯМИ на этот объект, звоните. Высылаем в течение 15 минут по запросу!
☎ Конт. лицо: Валентин , доб. 215, ЛОТ №693588
Технические характеристики: Общая площадь: 504,7 кв.м (подвал: 120 кв.м, первый этаж: 150 кв.м, второй этаж: 150 кв.м, мансарда: 85 кв.м). Электрическая мощность: 100 кВт Высота потолков: 3 м
Долгосрочный договор аренды, зарегистрирован. Подойдет также под общепит, шоурум, магазин, салон.
Чтобы получить ПОДРОБНУЮ ПРЕЗЕНТАЦИЮ С ПЛАНИРОВКОЙ И ФОТОГРАФИЯМИ на этот объект, звоните. Высылаем в течение 15 минут по запросу!
☎ Конт. лицо: Валентин , доб. 215, ЛОТ №693588
Расположение
г Москва, ул Новокузнецкая, д 24
Павелецкая
—
7 мин
Павелецкая
—
7 мин
Технические характеристики
Параметры
Статус владельца объявления
агентство
Новость дня
Все новости
Сегодня — 30 апреля, четверг / Москва
"Завершено строительство наземной парковки на 400 автомобильных мест в парке «Ривер Парк Коломенское»"
Сегодня — 30 апреля, четверг / Москва
Скорось открытия новых магазинов «Лэтуаль» снизится - 150 точек закроются к 2026 году.
Сегодня — 30 апреля, четверг / Москва
Смайл-бар сети "Белая точка" теперь доступен посетителям ТЦ "Левел Причальный"
Вчера — 29 апреля, среда / Москва
Московский цех открыл производство 3D-принтеров для металлической печати.
Вчера — 29 апреля, среда / Москва
БМ-банк завершил продажу большей части площадей в ТЦ «Весна» на Новом Арбате.
Вчера — 29 апреля, среда / Москва
Перефразированное название: "Сеть магазинов 'Жизньмарт' возобновляет свою деятельность в Челябинске"
Вчера — 29 апреля, среда / Санкт-Петербург
Сервисный офис «Практик» начал свою работу на Октябрьской набережной в Санкт-Петербурге.
Вчера — 29 апреля, среда / Санкт-Петербург
Строительство складских помещений в Санкт-Петербурге и Ленинградской области увеличилось в 2,5 раза.
Вчера — 29 апреля, среда / Москва
Москва увеличила объем строительства в рамках программы МПТ до 9,5 миллионов квадратных метров
Вчера — 29 апреля, среда / Санкт-Петербург
Соседский центр "ЖИВИ Клуб" открыл свои двери в Новоселье
Вчера — 29 апреля, среда / Москва
"Завершено строительство пятиэтажной наземной парковки в районе Нагатинский Затон"
Вчера — 29 апреля, среда / Санкт-Петербург
Рекордный уровень строительства складов зафиксирован в Санкт-Петербурге и Ленинградской области
Вчера — 29 апреля, среда / Москва
Аренда складов в Москве снизилась на 25%
28 апреля, вторник / Москва
"Появление двух новых брендов на российском рынке в начале 2026 года"
28 апреля, вторник / Москва
27-этажный бизнес-центр класса А в Коммунарке завершает процесс утверждения своего архитектурного дизайна
28 апреля, вторник / Москва
Перефразированное название статьи: "Открытие первого флагманского магазина Lumique в «Авиапарке»"
28 апреля, вторник / Москва
"Подольская фабрика офсетной печати выставляет на приватизацию 49% своих акций"
28 апреля, вторник / Москва
Самострои в ЮВАО: площадь почти 4 тыс. кв. м за первый квартал
28 апреля, вторник / Москва
Иск на 11,7 млрд рублей подан банком «Санкт-Петербург» к структуре «Гранели»
28 апреля, вторник / Москва
"«Яндекс Фабрика» запускает цепь офлайн-магазинов в Москве"