Купить дом 177 м²
ID 515819
Цена
34 900 000 ₽
Ставка
197 175 ₽ / м²
Площадь
177 м²
г Москва, Филимонковский р-н
На карте
Санино
—
20 мин
Кокошкино
—
21 мин
Апрелевка
—
20 мин
Описание
Код объекта в БД Агентства: 743-401, Киевское шоссе, 23 км от МКАД, ELI КП (Елизарово ).
Современный дом под отделку в новом формирующемся поселке ELIв живописной эко-локации новой Москвы. Планировка дома с функциональным зонированием и эффективным использованием площади: на втором этаже - 3 спальни (в том числе мастер-спальня), из просторной кухни-гостиной выход на большую 30-метровую террасу, ещё одна терраса у главного входа. Облицовка фасада премиальным планкеном из лиственницы естественного цвета. Дом расположен в охраняемом коттеджном посёлке, выполненном в едином архитектурном стиле, с трёх сторон посёлок окружает хвойный лес, в пешей доступности озеро с пляжной зоной.
Тип застройки: формирующийся к/п. Пл. дома 177кв.м., пл. участка 6.4 сот. Стадия готовности: под отделку. Спален: 3. С/узлов: 2. Количество с/узлов неполных. Комнат всего: 4.
Важные опции: терраса (2 террасы).
Год постройки дома: 2024.
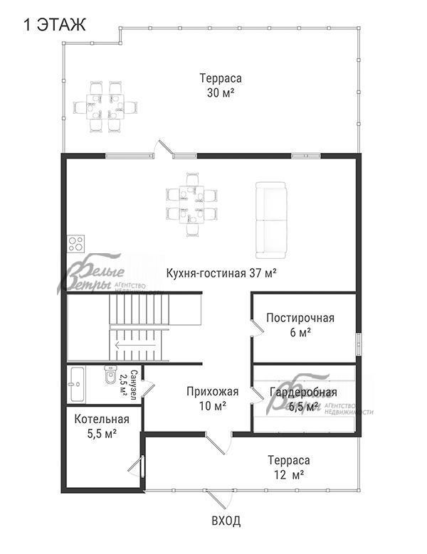
1-ый этаж: терраса у входной группы 12 кв.м, прихожая 10 кв.м, кухня-гостиная 37 кв.м с выходом на вторую террасу 30 кв.м, гардеробная 6,5 кв.м, санузел 2,5 кв.м, котельная 5,5 кв.м, постирочная 6 кв.м.
2-ой этаж: холл 5,5 кв.м, мастер-спальня 11,5 кв.м с гардеробной 7 кв.м и санузлом 7 кв.м, первая спальня 15 кв.м, вторая спальня 15 кв.м, санузел 6 кв.м.
Внутренняя отделка: дом - под отделку: внутренние стены - из газобетонных блоков, на второй этаж ведёт бетонная лестница.
Инженерное обеспечение: в дом подведены все коммуникации.
Тип участка: без деревьев.
Благоустройство участка: по периметру участка проходит дренажная система. \nСтатус земли: земли населённых пунктов, под жилищное строительство.
Коммуникации:
газ - есть (магистральный),
э/э - есть (10 кВт),
водопровод - центральный,
канализация - централизованная,
охрана - есть (посёлок огорожен со всех сторон, въезд через КПП).
Инфраструктура: Коттеджный посёлок на территории Новой Москвы на живописной опушке хвойного леса. Посёлок огорожен, находится под охраной (въезд через КПП). На территории предусмотрены широкие асфальтированные дороги, освещенные пешеходные зоны, места для строительства детских спортивных площадок, магазинов, школы и детского сада. В 700 метрах от посёлка – пруд с чистой водой и оборудованными зонами дл отдыха, купания и рыбалки. В 20 минутах езды на автомобиле – города Троицк, Апрелевка, поселение Первомайское.
Современный дом под отделку в новом формирующемся поселке ELIв живописной эко-локации новой Москвы. Планировка дома с функциональным зонированием и эффективным использованием площади: на втором этаже - 3 спальни (в том числе мастер-спальня), из просторной кухни-гостиной выход на большую 30-метровую террасу, ещё одна терраса у главного входа. Облицовка фасада премиальным планкеном из лиственницы естественного цвета. Дом расположен в охраняемом коттеджном посёлке, выполненном в едином архитектурном стиле, с трёх сторон посёлок окружает хвойный лес, в пешей доступности озеро с пляжной зоной.
Тип застройки: формирующийся к/п. Пл. дома 177кв.м., пл. участка 6.4 сот. Стадия готовности: под отделку. Спален: 3. С/узлов: 2. Количество с/узлов неполных. Комнат всего: 4.
Важные опции: терраса (2 террасы).
Год постройки дома: 2024.
1-ый этаж: терраса у входной группы 12 кв.м, прихожая 10 кв.м, кухня-гостиная 37 кв.м с выходом на вторую террасу 30 кв.м, гардеробная 6,5 кв.м, санузел 2,5 кв.м, котельная 5,5 кв.м, постирочная 6 кв.м.
2-ой этаж: холл 5,5 кв.м, мастер-спальня 11,5 кв.м с гардеробной 7 кв.м и санузлом 7 кв.м, первая спальня 15 кв.м, вторая спальня 15 кв.м, санузел 6 кв.м.
Внутренняя отделка: дом - под отделку: внутренние стены - из газобетонных блоков, на второй этаж ведёт бетонная лестница.
Инженерное обеспечение: в дом подведены все коммуникации.
Тип участка: без деревьев.
Благоустройство участка: по периметру участка проходит дренажная система. \nСтатус земли: земли населённых пунктов, под жилищное строительство.
Коммуникации:
газ - есть (магистральный),
э/э - есть (10 кВт),
водопровод - центральный,
канализация - централизованная,
охрана - есть (посёлок огорожен со всех сторон, въезд через КПП).
Инфраструктура: Коттеджный посёлок на территории Новой Москвы на живописной опушке хвойного леса. Посёлок огорожен, находится под охраной (въезд через КПП). На территории предусмотрены широкие асфальтированные дороги, освещенные пешеходные зоны, места для строительства детских спортивных площадок, магазинов, школы и детского сада. В 700 метрах от посёлка – пруд с чистой водой и оборудованными зонами дл отдыха, купания и рыбалки. В 20 минутах езды на автомобиле – города Троицк, Апрелевка, поселение Первомайское.
Расположение
г Москва, Филимонковский р-н
Санино
—
20 мин
Кокошкино
—
21 мин
Апрелевка
—
20 мин
Технические характеристики
Параметры
Водоснабжение
есть
Электричество
есть
Канализация
есть
Газ
есть
Статус владельца объявления
агентство
Новость дня
Расширение возможностей для B2B-клиентов: Avito вводит новые услуги для строительства складов
На платформе Авито теперь доступна категория "Коммерческое строительство" в сегменте услуг, предлагающая широкий выбор специализированных работ и возведение объектов "под ключ" для бизнеса, что упрощает поиск подрядчиков и субподрядчиков для коммерческих проектов.
Все новости
Вчера — 5 мая, вторник / Москва
"Сбербанк и Альфа-банк подали в суд на производителя обоев «Артекс» с требованием объявить его банкротом"
Вчера — 5 мая, вторник / Красноярский
"Магазин «ВкусВилл» открыл отдел shop-in-shop в Красноярске через партнерство"
Вчера — 5 мая, вторник / Адыгея
Строительство жилого комплекса на территории туристического парка "Дегуакская поляна" в Адыгее начнется архитектурным проектом от "Семьи" объемом 360 тыс. квадратных метров.
Вчера — 5 мая, вторник / Москва
"Прогнозируется достижение рекордной площади 500 тыс. кв. м под light industrial в Московском регионе к 2026 году"
Вчера — 5 мая, вторник / Астраханская
Фитнес-клуб DDX Fitness открылся в Торгово-Развлекательном Центре «Ярмарка» в городе Астрахань.
Вчера — 5 мая, вторник / Москва
"Объем спроса на офисные помещения в Москве сократился вдвое за последний год"
Вчера — 5 мая, вторник / Москва
"Рост стоимости отделки офисов в Москве превышает уровень инфляции"
Вчера — 5 мая, вторник / Москва
В России впервые за 20 лет не было открыто ни одной новой гостиницы в первом квартале
Вчера — 5 мая, вторник / Москва
Спрос на услуги аренды апартаментов в Санкт-Петербурге упал на четверть.
Вчера — 5 мая, вторник / Москва
"Сеть магазинов 'Лента' запустила свой первый розничный магазин специализированных товаров для ремонта, дачи и сада в Шушарах"
4 мая, понедельник / Москва
Вложения в недвижимость России за первую половину текущего года составили 169,5 миллиарда рублей.
4 мая, понедельник / Москва
Российский складской рынок продолжает расти: площадь складских помещений превысит 60 млн кв. м к концу 2026 года
4 мая, понедельник / Москва
"Компания "Галс-Девелопмент" получила одобрение на строительство делового центра "Дубининский"."
4 мая, понедельник / Москва
Инвестиционный фонд "Бумеранг Капитал" стал владельцем половины сети кофеен "Цех 85"
4 мая, понедельник / Краснодарский
В Анапе откроется первый отель с инновационными IT-сервисами
4 мая, понедельник / Москва
Планируется строительство торгового центра площадью свыше 6 тыс. кв. м в Краснопахорском районе Москвы.
4 мая, понедельник / Москва
Смена собственника у клубов «Дикая орхидея» и «Дефиле»
4 мая, понедельник / Вологодская
"Прекращена деятельность "наливаек" и магазинов электронных сигарет в Вологодской области"
4 мая, понедельник / Москва
"Exeed перемещает производство из Подмосковья на площадку АГР в Шушарах"
4 мая, понедельник / Москва
На юге Москвы запланировано строительство ТПУ "Кленовый бульвар" на площади 2 гектара.