Купить ПСН 288 м² в Расселение по реновации
ID 627098
Цена
14 642 000 ₽
Ставка
50 840 ₽ / м²
Площадь
288 м²
Этаж
1 из 5
ИФНС
7716
агентство недвижимости
г Москва, ул Егора Абакумова, д 7
На карте
Бабушкинская
—
9 мин
Медведково
—
42 мин
Свиблово
—
55 мин
Описание
Район - Ярославский
Транспортная доступность
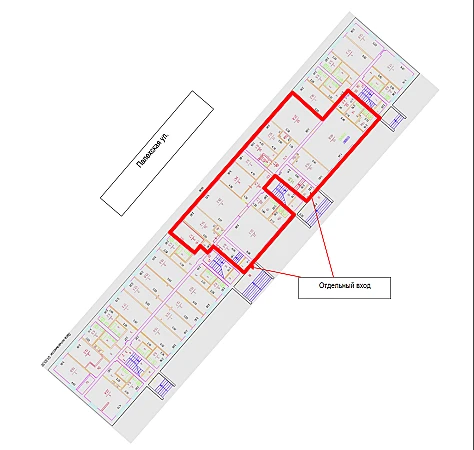
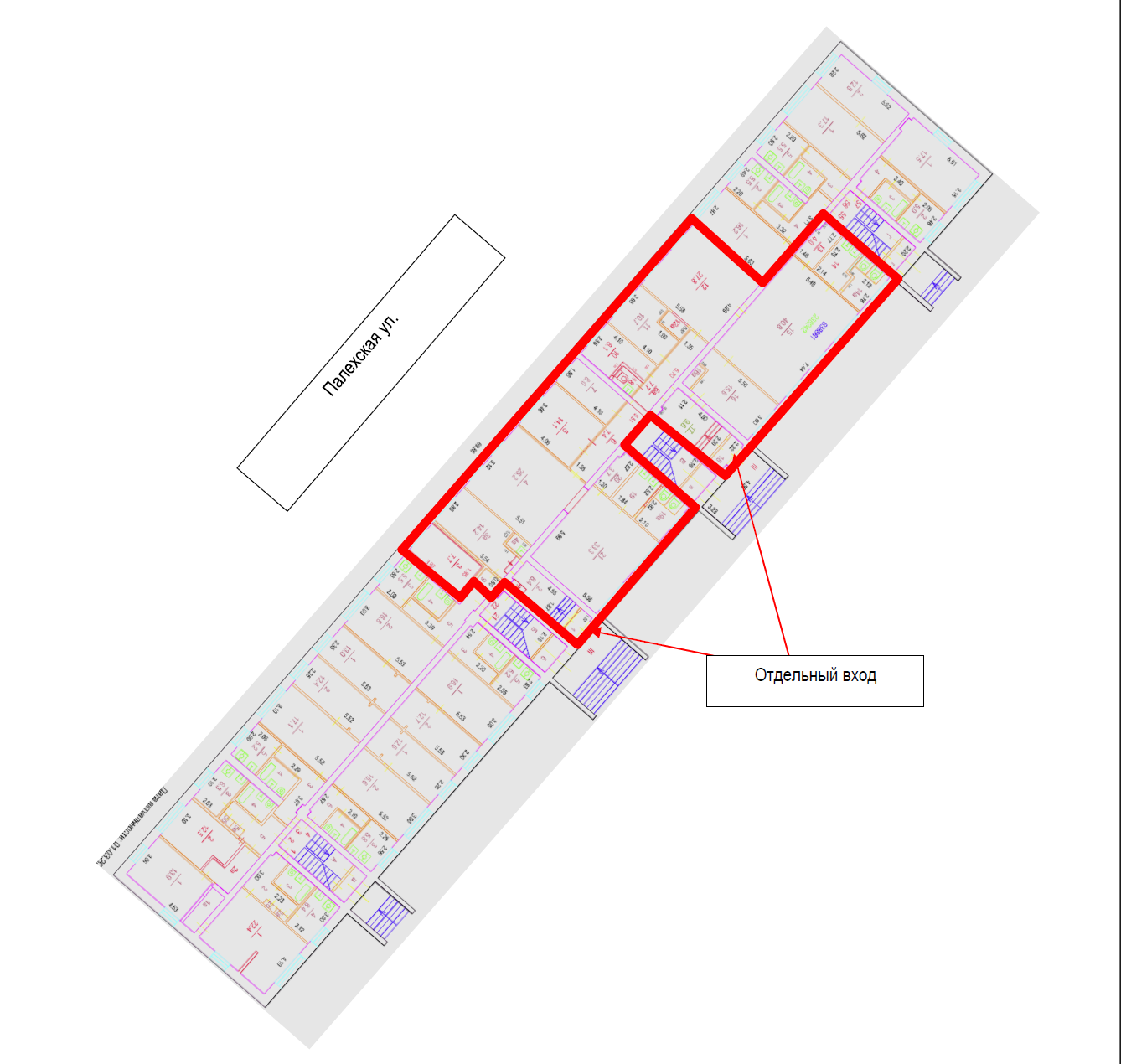
Продажа помещения свободного
288,9 м² , косметическим ремонтом. Этаж № 1
Расселение по реновации. Уникальная возможность получить объект большей площади, в новом, современном жк.
Отлично просматривается с улицы. Вокруг плотный жилой массив, за счет чего обеспечивается интенсивный автомобильный и пешеходный трафик.
Подойдет под любой вид коммерческой деятельности.
На сегодняшний день, самый статусный, надежный, стопроцентный, защищенный способ покупки. Открывающий для покупателей массу привилегий и бонусов. Цена объекта значительно ниже рыночной стоимости, что дает единственную в настоящее время уникальную возможность приобрести привлекательный объект, для личного использования, но еще и заработать, на перепродаже, тем самым без всяких рисков и усилий удвоив свой первоначальный капитал.
О
Транспортная доступность
Продажа помещения свободного
288,9 м² , косметическим ремонтом. Этаж № 1
Расселение по реновации. Уникальная возможность получить объект большей площади, в новом, современном жк.
Отлично просматривается с улицы. Вокруг плотный жилой массив, за счет чего обеспечивается интенсивный автомобильный и пешеходный трафик.
Подойдет под любой вид коммерческой деятельности.
На сегодняшний день, самый статусный, надежный, стопроцентный, защищенный способ покупки. Открывающий для покупателей массу привилегий и бонусов. Цена объекта значительно ниже рыночной стоимости, что дает единственную в настоящее время уникальную возможность приобрести привлекательный объект, для личного использования, но еще и заработать, на перепродаже, тем самым без всяких рисков и усилий удвоив свой первоначальный капитал.
О
Расположение
г Москва, ул Егора Абакумова, д 7
Бабушкинская
—
9 мин
Медведково
—
42 мин
Свиблово
—
55 мин
Технические характеристики
Новость дня
Расширение возможностей для B2B-клиентов: Avito вводит новые услуги для строительства складов
На платформе Авито теперь доступна категория "Коммерческое строительство" в сегменте услуг, предлагающая широкий выбор специализированных работ и возведение объектов "под ключ" для бизнеса, что упрощает поиск подрядчиков и субподрядчиков для коммерческих проектов.
Все новости
Вчера — 30 апреля, четверг / Москва
"Бумеранг Капитал" увеличил свою долю в сети кафе-пекарен "Цех 85" до 50%
Вчера — 30 апреля, четверг / Ставропольский
В Кисловодске начался проект строительства инвестиционного отеля "Реликт"
Вчера — 30 апреля, четверг / Москва
Ресторан «Долина 5165» и магазин Sokolov теперь доступны посетителям ТРЦ Avenue Sever
Вчера — 30 апреля, четверг / Москва
"Новый флагманский магазин под названием «Флаувау» открыл свои двери на Мясницкой улице"
Вчера — 30 апреля, четверг / Москва
"Уровень вакансии на складах в Московском регионе достиг 5,4% из-за увеличения предложений по субаренде"
Вчера — 30 апреля, четверг / Москва
"Прогнозируется незначительный прирост числа туристов в первом квартале 2026 года - всего 2,8%"
Вчера — 30 апреля, четверг / Москва
Компания "Ориентир" планирует вложить до 150 млрд рублей в расширение бизнеса и развитие новых секторов.
Вчера — 30 апреля, четверг / Москва
"Завершено строительство наземной парковки на 400 автомобильных мест в парке «Ривер Парк Коломенское»"
Вчера — 30 апреля, четверг / Москва
Скорось открытия новых магазинов «Лэтуаль» снизится - 150 точек закроются к 2026 году.
Вчера — 30 апреля, четверг / Москва
Смайл-бар сети "Белая точка" теперь доступен посетителям ТЦ "Левел Причальный"
29 апреля, среда / Москва
Московский цех открыл производство 3D-принтеров для металлической печати.
29 апреля, среда / Москва
БМ-банк завершил продажу большей части площадей в ТЦ «Весна» на Новом Арбате.
29 апреля, среда / Москва
Перефразированное название: "Сеть магазинов 'Жизньмарт' возобновляет свою деятельность в Челябинске"
29 апреля, среда / Санкт-Петербург
Сервисный офис «Практик» начал свою работу на Октябрьской набережной в Санкт-Петербурге.
29 апреля, среда / Санкт-Петербург
Строительство складских помещений в Санкт-Петербурге и Ленинградской области увеличилось в 2,5 раза.
29 апреля, среда / Москва
Москва увеличила объем строительства в рамках программы МПТ до 9,5 миллионов квадратных метров
29 апреля, среда / Санкт-Петербург
Соседский центр "ЖИВИ Клуб" открыл свои двери в Новоселье
29 апреля, среда / Москва
"Завершено строительство пятиэтажной наземной парковки в районе Нагатинский Затон"
29 апреля, среда / Санкт-Петербург
Рекордный уровень строительства складов зафиксирован в Санкт-Петербурге и Ленинградской области
29 апреля, среда / Москва
Аренда складов в Москве снизилась на 25%