Купить дом 400 м² в коттеджном поселке Зеленые холмы
Описание
ID объекта: Z-15196. Предлагается дом в охраняемом коттеджном поселке.Гараж в доме 34 кв.м. Парковка. Тихий поселок с живописными видами на реку Десна и лес. Соседи живут. Поблизости вся инфраструктура.
Поэтажное описание
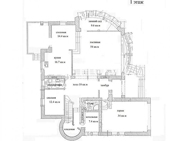
1 этаж: холл, гостиная с панорамным остеклением, зимний сад, кухня-столовая с выходом на патио, постирочная, котельная, кладовая, с/у, комната свободного назначения.
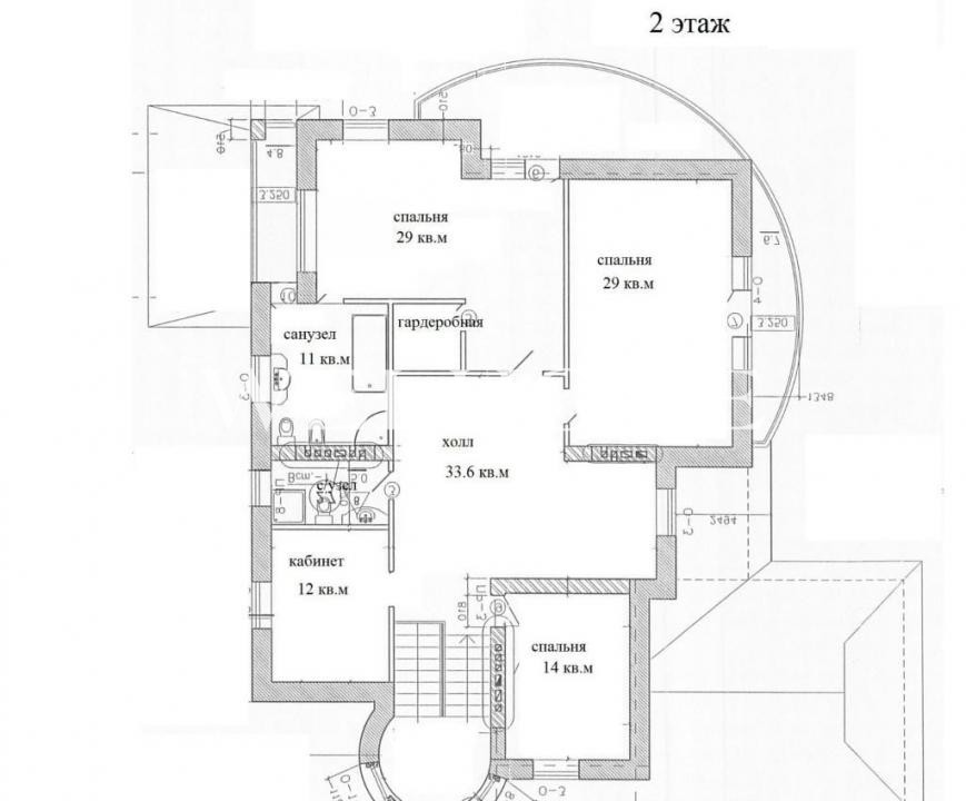
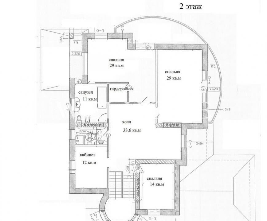
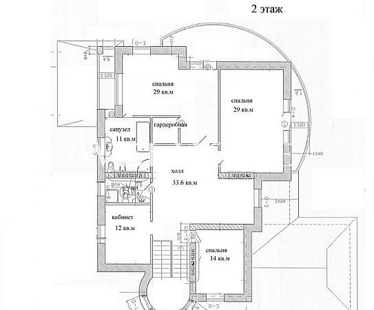
2 этаж: холл, 2 комнаты, комната с балконом, с/у, спальня со своим с/у, гардеробной и 2-мя балконами.
Поэтажное описание
1 этаж: холл, гостиная с панорамным остеклением, зимний сад, кухня-столовая с выходом на патио, постирочная, котельная, кладовая, с/у, комната свободного назначения.
2 этаж: холл, 2 комнаты, комната с балконом, с/у, спальня со своим с/у, гардеробной и 2-мя балконами.
Расположение
Московская обл, г Луховицы, тер Зеленые холмы (д Берхино)
Технические характеристики
Параметры
Водоснабжение
есть
Канализация
есть
Газ
есть
Отопление
есть
Статус владельца объявления
агентство
Свободные помещения в Коттеджный поселок Зеленые холмы
Новость дня
Расширение возможностей для B2B-клиентов: Avito вводит новые услуги для строительства складов
На платформе Авито теперь доступна категория "Коммерческое строительство" в сегменте услуг, предлагающая широкий выбор специализированных работ и возведение объектов "под ключ" для бизнеса, что упрощает поиск подрядчиков и субподрядчиков для коммерческих проектов.
Все новости
Вчера — 5 мая, вторник / Москва
"Сбербанк и Альфа-банк подали в суд на производителя обоев «Артекс» с требованием объявить его банкротом"
Вчера — 5 мая, вторник / Красноярский
"Магазин «ВкусВилл» открыл отдел shop-in-shop в Красноярске через партнерство"
Вчера — 5 мая, вторник / Адыгея
Строительство жилого комплекса на территории туристического парка "Дегуакская поляна" в Адыгее начнется архитектурным проектом от "Семьи" объемом 360 тыс. квадратных метров.
Вчера — 5 мая, вторник / Москва
"Прогнозируется достижение рекордной площади 500 тыс. кв. м под light industrial в Московском регионе к 2026 году"
Вчера — 5 мая, вторник / Астраханская
Фитнес-клуб DDX Fitness открылся в Торгово-Развлекательном Центре «Ярмарка» в городе Астрахань.
Вчера — 5 мая, вторник / Москва
"Объем спроса на офисные помещения в Москве сократился вдвое за последний год"
Вчера — 5 мая, вторник / Москва
"Рост стоимости отделки офисов в Москве превышает уровень инфляции"
Вчера — 5 мая, вторник / Москва
В России впервые за 20 лет не было открыто ни одной новой гостиницы в первом квартале
Вчера — 5 мая, вторник / Москва
Спрос на услуги аренды апартаментов в Санкт-Петербурге упал на четверть.
Вчера — 5 мая, вторник / Москва
"Сеть магазинов 'Лента' запустила свой первый розничный магазин специализированных товаров для ремонта, дачи и сада в Шушарах"
4 мая, понедельник / Москва
Вложения в недвижимость России за первую половину текущего года составили 169,5 миллиарда рублей.
4 мая, понедельник / Москва
Российский складской рынок продолжает расти: площадь складских помещений превысит 60 млн кв. м к концу 2026 года
4 мая, понедельник / Москва
"Компания "Галс-Девелопмент" получила одобрение на строительство делового центра "Дубининский"."
4 мая, понедельник / Москва
Инвестиционный фонд "Бумеранг Капитал" стал владельцем половины сети кофеен "Цех 85"
4 мая, понедельник / Краснодарский
В Анапе откроется первый отель с инновационными IT-сервисами
4 мая, понедельник / Москва
Планируется строительство торгового центра площадью свыше 6 тыс. кв. м в Краснопахорском районе Москвы.
4 мая, понедельник / Москва
Смена собственника у клубов «Дикая орхидея» и «Дефиле»
4 мая, понедельник / Вологодская
"Прекращена деятельность "наливаек" и магазинов электронных сигарет в Вологодской области"
4 мая, понедельник / Москва
"Exeed перемещает производство из Подмосковья на площадку АГР в Шушарах"
4 мая, понедельник / Москва
На юге Москвы запланировано строительство ТПУ "Кленовый бульвар" на площади 2 гектара.