Главная
Купить торговое помещение в Москве и МО
Торговое помещение 285 м² в апарт-комплексе Roza Rossa
Купить торговое помещение 285 м² в апарт-комплексе Roza Rossa
ID 756823
Цена
342 840 000 ₽
Ставка
1 202 947 ₽ / м²
Площадь
285 м²
Этаж
1 из 5
ИФНС
7704
агентство недвижимости
г Москва, ул Зубовская, д 7
На карте
Парк культуры
Парк культуры
Фрунзенская
—
13 мин
Описание
Номер лота на нашем сайте: 44027. Продается торговое помещение с НДС.
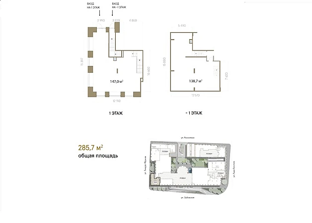
Предлагаем в покупку ПСН на ул. Зубовская в ЖК "Roza Rossa". 285,7 кв.м., угловое помещение с панорамным остеклением и отдельным входом с улицы Тимура Фрунзе. Высокие потолки. На первом этаже 4,15 метра и на -1 уровне 3,8 метра. Площадь первого этажа 147 кв.м., - 1 этаж 138,7 кв.м. Престижное окружение, район Хамовники. В самом ЖК 118 апартаментов, 8 пентхаусов, и бутик-отель. Профессиональное сервисное обслуживание УК. Пешеходный трафик 18972 чел. в день, Выделено 58 кВт электроэнергии.
Предлагаем в покупку ПСН на ул. Зубовская в ЖК "Roza Rossa". 285,7 кв.м., угловое помещение с панорамным остеклением и отдельным входом с улицы Тимура Фрунзе. Высокие потолки. На первом этаже 4,15 метра и на -1 уровне 3,8 метра. Площадь первого этажа 147 кв.м., - 1 этаж 138,7 кв.м. Престижное окружение, район Хамовники. В самом ЖК 118 апартаментов, 8 пентхаусов, и бутик-отель. Профессиональное сервисное обслуживание УК. Пешеходный трафик 18972 чел. в день, Выделено 58 кВт электроэнергии.
Расположение
г Москва, ул Зубовская, д 7
Парк культуры
Парк культуры
Фрунзенская
—
13 мин
Технические характеристики
Параметры
Электричество
есть
Инженерия
вентиляция, пожарная сигнализация
Статус владельца объявления
агентство
Свободные помещения в Апарт-комплекс Roza Rossa
Новость дня
Расширение возможностей для B2B-клиентов: Avito вводит новые услуги для строительства складов
На платформе Авито теперь доступна категория "Коммерческое строительство" в сегменте услуг, предлагающая широкий выбор специализированных работ и возведение объектов "под ключ" для бизнеса, что упрощает поиск подрядчиков и субподрядчиков для коммерческих проектов.
Все новости
Вчера — 30 апреля, четверг / Москва
"Бумеранг Капитал" увеличил свою долю в сети кафе-пекарен "Цех 85" до 50%
Вчера — 30 апреля, четверг / Ставропольский
В Кисловодске начался проект строительства инвестиционного отеля "Реликт"
Вчера — 30 апреля, четверг / Москва
Ресторан «Долина 5165» и магазин Sokolov теперь доступны посетителям ТРЦ Avenue Sever
Вчера — 30 апреля, четверг / Москва
"Новый флагманский магазин под названием «Флаувау» открыл свои двери на Мясницкой улице"
Вчера — 30 апреля, четверг / Москва
"Уровень вакансии на складах в Московском регионе достиг 5,4% из-за увеличения предложений по субаренде"
Вчера — 30 апреля, четверг / Москва
"Прогнозируется незначительный прирост числа туристов в первом квартале 2026 года - всего 2,8%"
Вчера — 30 апреля, четверг / Москва
Компания "Ориентир" планирует вложить до 150 млрд рублей в расширение бизнеса и развитие новых секторов.
Вчера — 30 апреля, четверг / Москва
"Завершено строительство наземной парковки на 400 автомобильных мест в парке «Ривер Парк Коломенское»"
Вчера — 30 апреля, четверг / Москва
Скорось открытия новых магазинов «Лэтуаль» снизится - 150 точек закроются к 2026 году.
Вчера — 30 апреля, четверг / Москва
Смайл-бар сети "Белая точка" теперь доступен посетителям ТЦ "Левел Причальный"
29 апреля, среда / Москва
Московский цех открыл производство 3D-принтеров для металлической печати.
29 апреля, среда / Москва
БМ-банк завершил продажу большей части площадей в ТЦ «Весна» на Новом Арбате.
29 апреля, среда / Москва
Перефразированное название: "Сеть магазинов 'Жизньмарт' возобновляет свою деятельность в Челябинске"
29 апреля, среда / Санкт-Петербург
Сервисный офис «Практик» начал свою работу на Октябрьской набережной в Санкт-Петербурге.
29 апреля, среда / Санкт-Петербург
Строительство складских помещений в Санкт-Петербурге и Ленинградской области увеличилось в 2,5 раза.
29 апреля, среда / Москва
Москва увеличила объем строительства в рамках программы МПТ до 9,5 миллионов квадратных метров
29 апреля, среда / Санкт-Петербург
Соседский центр "ЖИВИ Клуб" открыл свои двери в Новоселье
29 апреля, среда / Москва
"Завершено строительство пятиэтажной наземной парковки в районе Нагатинский Затон"
29 апреля, среда / Санкт-Петербург
Рекордный уровень строительства складов зафиксирован в Санкт-Петербурге и Ленинградской области
29 апреля, среда / Москва
Аренда складов в Москве снизилась на 25%