Описание
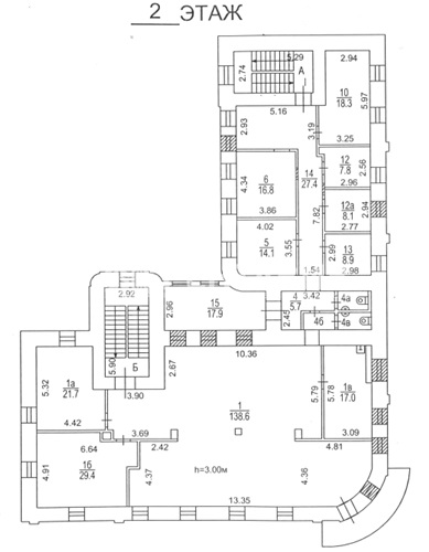
Номер объекта: 551232. От собственника - ПСН для размещения производства, цеха, склада или офиса (шоу-рума и офиса продаж). Производственное помещение расположено в 4-х этажном здании на территории промышленного кластера лайт-индастриал, на северо-востоке столицы, в районе Отрадное. Помещение площадью 1742,8 м2 находится на 2-м этаже (блок на плане 2.22). В этом помещении предусмотрена антресоль на высоте 4 метра - для размещения административного персонала и обеспечения бытовых нужд работников (АБК). Высота потолков 7 метров, нагрузка на пол на 2-м этаже – 1,5 тн/м2, шаг колонн — 12 м*12 м. Электрическая мощность 157 кВт (из расчета 90 Вт на м2). Помещение относится к городской промышленной недвижимости для малого и среднего бизнеса, это 1-я очередь проекта AFI ПРОМ Алтуфьево, общая площадь 1-й очереди 133 700 м2, срок ввода в эксплуатацию – декабрь 2026 года. В 1-й очереди – всего 87 помещений (на 1,2,3 и 4 этажах).
Продажа по ДКПБВ.
В здании установлены лифты грузоподъемностью 5 тн. Есть паркинг на крыше здания. Возможен заезд грузовых авто до 5 тн на верхние этажи здания. Все здание состоит из автономных коммерческих блоков, которые можно объединять, что позволяет адаптировать пространство под любые нужды.
Промышленный технопарк AFI ПРОМ Алтуфьево, где будут размещаться инновационные и легкие производства, строится в 4 этапа. 1-й этап - многоэтажное производственное здание формата Light Industrial площадью 133 700 м2, состоит из гибких производственных блоков и блоков АБК, готовность декабрь 2026 год. 2-й этап - строительство здания под требования заказчика, готовность 2027 год. 3-й этап – строительство комплекс для пищевого производства, готовность 2028 год. 4 этап – строительство многофункционального офисно-делового комплекса, готовность 2029 год. Технопарк АФИ Пром Алтуфьево строится в рамках реализации проекта комплексного развития территорий, объект реализуется таким образом, что грузовой транспорт может подъезжать к разгрузочным площадкам любого из 4-х этажей технопарка.
Близость комплекса AFI ПРОМ Алтуфьево к основным магистралям обеспечивает удобную логистику как для персонала, так и для грузоперевозок. В шаговой доступности находятся 5 станций метро/МЦК: "Дегунино", "Владыкино", "Отрадное", "Окружная", "Верхние Лихоборы". До Алтуфьевского шоссе всего 2 минуты, до СВХ и Дмитровского шоссе 5 минут, до ТТК 7 минут.
Возможны различные варианты оплаты: лизинг, аренда с правом выкупа, предоплата целиком.Объект № 551232
Продажа по ДКПБВ.
В здании установлены лифты грузоподъемностью 5 тн. Есть паркинг на крыше здания. Возможен заезд грузовых авто до 5 тн на верхние этажи здания. Все здание состоит из автономных коммерческих блоков, которые можно объединять, что позволяет адаптировать пространство под любые нужды.
Промышленный технопарк AFI ПРОМ Алтуфьево, где будут размещаться инновационные и легкие производства, строится в 4 этапа. 1-й этап - многоэтажное производственное здание формата Light Industrial площадью 133 700 м2, состоит из гибких производственных блоков и блоков АБК, готовность декабрь 2026 год. 2-й этап - строительство здания под требования заказчика, готовность 2027 год. 3-й этап – строительство комплекс для пищевого производства, готовность 2028 год. 4 этап – строительство многофункционального офисно-делового комплекса, готовность 2029 год. Технопарк АФИ Пром Алтуфьево строится в рамках реализации проекта комплексного развития территорий, объект реализуется таким образом, что грузовой транспорт может подъезжать к разгрузочным площадкам любого из 4-х этажей технопарка.
Близость комплекса AFI ПРОМ Алтуфьево к основным магистралям обеспечивает удобную логистику как для персонала, так и для грузоперевозок. В шаговой доступности находятся 5 станций метро/МЦК: "Дегунино", "Владыкино", "Отрадное", "Окружная", "Верхние Лихоборы". До Алтуфьевского шоссе всего 2 минуты, до СВХ и Дмитровского шоссе 5 минут, до ТТК 7 минут.
Возможны различные варианты оплаты: лизинг, аренда с правом выкупа, предоплата целиком.Объект № 551232
Расположение
г Москва, ш Алтуфьевское, д 27А стр 2
Владыкино
—
7 мин
Дегунино
—
13 мин
Технические характеристики
Параметры
Охрана
есть
Инженерия
кондиционер, лифт
Статус владельца объявления
агентство
Параметры помещения
Высота потолков
—
Новость дня
Расширение возможностей для B2B-клиентов: Avito вводит новые услуги для строительства складов
На платформе Авито теперь доступна категория "Коммерческое строительство" в сегменте услуг, предлагающая широкий выбор специализированных работ и возведение объектов "под ключ" для бизнеса, что упрощает поиск подрядчиков и субподрядчиков для коммерческих проектов.
Все новости
Вчера — 30 апреля, четверг / Москва
"Бумеранг Капитал" увеличил свою долю в сети кафе-пекарен "Цех 85" до 50%
Вчера — 30 апреля, четверг / Ставропольский
В Кисловодске начался проект строительства инвестиционного отеля "Реликт"
Вчера — 30 апреля, четверг / Москва
Ресторан «Долина 5165» и магазин Sokolov теперь доступны посетителям ТРЦ Avenue Sever
Вчера — 30 апреля, четверг / Москва
"Новый флагманский магазин под названием «Флаувау» открыл свои двери на Мясницкой улице"
Вчера — 30 апреля, четверг / Москва
"Уровень вакансии на складах в Московском регионе достиг 5,4% из-за увеличения предложений по субаренде"
Вчера — 30 апреля, четверг / Москва
"Прогнозируется незначительный прирост числа туристов в первом квартале 2026 года - всего 2,8%"
Вчера — 30 апреля, четверг / Москва
Компания "Ориентир" планирует вложить до 150 млрд рублей в расширение бизнеса и развитие новых секторов.
Вчера — 30 апреля, четверг / Москва
"Завершено строительство наземной парковки на 400 автомобильных мест в парке «Ривер Парк Коломенское»"
Вчера — 30 апреля, четверг / Москва
Скорось открытия новых магазинов «Лэтуаль» снизится - 150 точек закроются к 2026 году.
Вчера — 30 апреля, четверг / Москва
Смайл-бар сети "Белая точка" теперь доступен посетителям ТЦ "Левел Причальный"
29 апреля, среда / Москва
Московский цех открыл производство 3D-принтеров для металлической печати.
29 апреля, среда / Москва
БМ-банк завершил продажу большей части площадей в ТЦ «Весна» на Новом Арбате.
29 апреля, среда / Москва
Перефразированное название: "Сеть магазинов 'Жизньмарт' возобновляет свою деятельность в Челябинске"
29 апреля, среда / Санкт-Петербург
Сервисный офис «Практик» начал свою работу на Октябрьской набережной в Санкт-Петербурге.
29 апреля, среда / Санкт-Петербург
Строительство складских помещений в Санкт-Петербурге и Ленинградской области увеличилось в 2,5 раза.
29 апреля, среда / Москва
Москва увеличила объем строительства в рамках программы МПТ до 9,5 миллионов квадратных метров
29 апреля, среда / Санкт-Петербург
Соседский центр "ЖИВИ Клуб" открыл свои двери в Новоселье
29 апреля, среда / Москва
"Завершено строительство пятиэтажной наземной парковки в районе Нагатинский Затон"
29 апреля, среда / Санкт-Петербург
Рекордный уровень строительства складов зафиксирован в Санкт-Петербурге и Ленинградской области
29 апреля, среда / Москва
Аренда складов в Москве снизилась на 25%