Купить 5к квартиру 434 м² в клубном доме OPUS
Описание
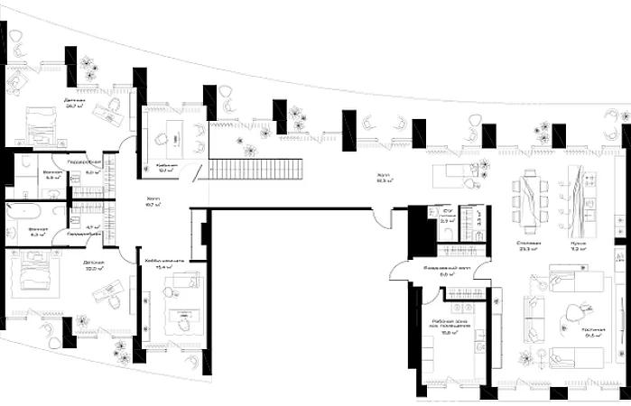
Прямая продажа от застройщика! Продаётся 5-к квартира общей площадью 434.6 кв. м. на 11-м этаже 11 этажного дома. Клубный дом OPUS - современный шедевр архитектуры от компании PIONEER, трансформирующий пространство, меняющий привычный ход вещей. Близость Москвы-реки определила его исключительную форму, вдохновлённую стихией воды. Уникальный и единственный в своём роде OPUS создаёт ощущение преображения, деликатно взаимодействуя с городской тканью. Продуманная территория с парковой атмосферой позволяет находиться в уединении в самом центре города, именно эти исключительные характеристики делают OPUS особенным. Площадь однокомнатной квартиры здесь превышает 50 квадратных метров, а отдельные трёхкомнатные решения восхищают 266-метровым простором и видами на реку. Уникальные квартиры с 8 балконами на разные стороны света, не менее эффектные решения - кабинеты и гардеробные с отдельными балконами, а ванные комнаты с панорамными окнами и собственным балконом. OPUS располагается в историческом месте с видом на Крутицкое подворье и Симоновский вал. Совсем рядом легендарное Замоскворечье - район, сохранивший камерную атмосферу старой Москвы. Локация уникальна также тем, что новые современные объекты будут соседствовать здесь с культовыми объектами культурного и исторического наследия города. За 22 года на рынке недвижимости компания PIONEER реализовала более 30 проектов. Сегодня PIONEER - девелопер премиальной недвижимости с 4 проектами класса премиум и deluxe. Продажа от застройщика. Покупка доступна в рассрочку и ипотеку. Звоните, и мы с удовольствием расскажем все подробности о проекте и условиях покупки.
Расположение
г Москва, ул Дербеневская, д 1
Павелецкая
—
11 мин
Павелецкая
—
11 мин
Крестьянская застава
—
13 мин
Пролетарская
—
13 мин
Технические характеристики
Параметры
Тип сделки
продажа от застройщика
Тип здания
монолитный
Инженерия
лифт
Вид из окна
на улицу
Статус владельца объявления
застройщик
Параметры помещения
Высота потолков
—
Свободные помещения в Клубный дом OPUS
Новость дня
Все новости
Вчера — 29 апреля, среда / Москва
Московский цех открыл производство 3D-принтеров для металлической печати.
Вчера — 29 апреля, среда / Москва
БМ-банк завершил продажу большей части площадей в ТЦ «Весна» на Новом Арбате.
Вчера — 29 апреля, среда / Москва
Перефразированное название: "Сеть магазинов 'Жизньмарт' возобновляет свою деятельность в Челябинске"
Вчера — 29 апреля, среда / Санкт-Петербург
Сервисный офис «Практик» начал свою работу на Октябрьской набережной в Санкт-Петербурге.
Вчера — 29 апреля, среда / Санкт-Петербург
Строительство складских помещений в Санкт-Петербурге и Ленинградской области увеличилось в 2,5 раза.
Вчера — 29 апреля, среда / Москва
Москва увеличила объем строительства в рамках программы МПТ до 9,5 миллионов квадратных метров
Вчера — 29 апреля, среда / Санкт-Петербург
Соседский центр "ЖИВИ Клуб" открыл свои двери в Новоселье
Вчера — 29 апреля, среда / Москва
"Завершено строительство пятиэтажной наземной парковки в районе Нагатинский Затон"
Вчера — 29 апреля, среда / Санкт-Петербург
Рекордный уровень строительства складов зафиксирован в Санкт-Петербурге и Ленинградской области
Вчера — 29 апреля, среда / Москва
Аренда складов в Москве снизилась на 25%
28 апреля, вторник / Москва
"Появление двух новых брендов на российском рынке в начале 2026 года"
28 апреля, вторник / Москва
27-этажный бизнес-центр класса А в Коммунарке завершает процесс утверждения своего архитектурного дизайна
28 апреля, вторник / Москва
Перефразированное название статьи: "Открытие первого флагманского магазина Lumique в «Авиапарке»"
28 апреля, вторник / Москва
"Подольская фабрика офсетной печати выставляет на приватизацию 49% своих акций"
28 апреля, вторник / Москва
Самострои в ЮВАО: площадь почти 4 тыс. кв. м за первый квартал
28 апреля, вторник / Москва
Иск на 11,7 млрд рублей подан банком «Санкт-Петербург» к структуре «Гранели»
28 апреля, вторник / Москва
"«Яндекс Фабрика» запускает цепь офлайн-магазинов в Москве"
28 апреля, вторник / Москва
Детская сеть магазинов "Кораблик" столкнулась с финансовыми трудностями
28 апреля, вторник / Москва
Снижение загрузки премиум отелей Москвы в первом квартале до 69,4%
28 апреля, вторник / Крым
"Продается комплекс солнечных электростанций на полуострове Крым"