Описание
Предложение в аренду № 61162.
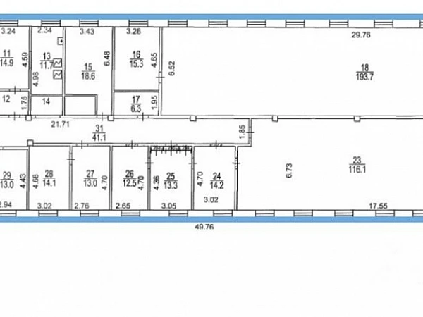
Первый этаж отдельно стоящего здания под учебный центр, танцы, спорт, фотостудию, или под офис в аренду от крупного собственника АО "Бизнес-Недвижимость". Административное здание из 3-х этажей.
. Арендуемая площадь 613,42 кв.м. с учетом коридорного коэффициента 12%. Планировка смешанная. Возможна перепланировка, организация и оформление пространства под задачи вашего бизнеса. Состояние помещений за выездом арендатора, рабочее. Лифт отсутствует.
. Арендная ставка 14 000 руб. за м2/год, включая НДС и эксплуатационные расходы. ОТДЕЛЬНО ОПЛАЧИВАЮТСЯ коммунальные платежи, интернет, телефония.
Без комиссии.
Первый этаж отдельно стоящего здания под учебный центр, танцы, спорт, фотостудию, или под офис в аренду от крупного собственника АО "Бизнес-Недвижимость". Административное здание из 3-х этажей.
. Арендуемая площадь 613,42 кв.м. с учетом коридорного коэффициента 12%. Планировка смешанная. Возможна перепланировка, организация и оформление пространства под задачи вашего бизнеса. Состояние помещений за выездом арендатора, рабочее. Лифт отсутствует.
. Арендная ставка 14 000 руб. за м2/год, включая НДС и эксплуатационные расходы. ОТДЕЛЬНО ОПЛАЧИВАЮТСЯ коммунальные платежи, интернет, телефония.
Без комиссии.
Расположение
г Москва, ул Фестивальная, д 39А стр 1
Беломорская
—
6 мин
Речной вокзал
—
8 мин
Ховрино
—
25 мин
Технические характеристики
Новость дня
Все новости
Вчера — 28 апреля, вторник / Москва
"Появление двух новых брендов на российском рынке в начале 2026 года"
Вчера — 28 апреля, вторник / Москва
27-этажный бизнес-центр класса А в Коммунарке завершает процесс утверждения своего архитектурного дизайна
Вчера — 28 апреля, вторник / Москва
Перефразированное название статьи: "Открытие первого флагманского магазина Lumique в «Авиапарке»"
Вчера — 28 апреля, вторник / Москва
"Подольская фабрика офсетной печати выставляет на приватизацию 49% своих акций"
Вчера — 28 апреля, вторник / Москва
Самострои в ЮВАО: площадь почти 4 тыс. кв. м за первый квартал
Вчера — 28 апреля, вторник / Москва
Иск на 11,7 млрд рублей подан банком «Санкт-Петербург» к структуре «Гранели»
Вчера — 28 апреля, вторник / Москва
"«Яндекс Фабрика» запускает цепь офлайн-магазинов в Москве"
Вчера — 28 апреля, вторник / Москва
Детская сеть магазинов "Кораблик" столкнулась с финансовыми трудностями
Вчера — 28 апреля, вторник / Москва
Снижение загрузки премиум отелей Москвы в первом квартале до 69,4%
Вчера — 28 апреля, вторник / Крым
"Продается комплекс солнечных электростанций на полуострове Крым"
27 апреля, понедельник / Москва
Гастропространство «НеДетский» на 630 посадочных мест открылось в Центральном детском магазине на Лубянке.
27 апреля, понедельник / Москва
"FORMA завершает продажу всех офисных помещений в бизнес-центре «ЛЕЙКС»"
27 апреля, понедельник / Москва
"Прогноз: восстановление офисного рынка Москвы ожидается к 2028 году"
27 апреля, понедельник / Москва
Проект строительства промышленного парка с двумя зданиями на востоке Москвы.
27 апреля, понедельник / Москва
Бизнес-центр площадью 22,7 тыс. кв. м открылся в Нагатинской пойме.
27 апреля, понедельник / Самарская
Недостроенный птицеводческий комплекс "Евробиотех" в Самарской области ищет покупателя
27 апреля, понедельник / Москва
"Планируется строительство восьмиэтажной автостоянки с коммерческими помещениями на 465 машиномест в Новой Москве"
27 апреля, понедельник / Москва
"«Монарх» приобрел участок площадью 1,36 га на территории бывшего Карачаровского механического завода"
27 апреля, понедельник / Москва
"Производство растительного молока от Сварщицы Екатерины"
27 апреля, понедельник / Москва
"Будущее магазинов Gate 31 под угрозой из-за финансовых трудностей"