Описание
Предложение в аренду № 60471.
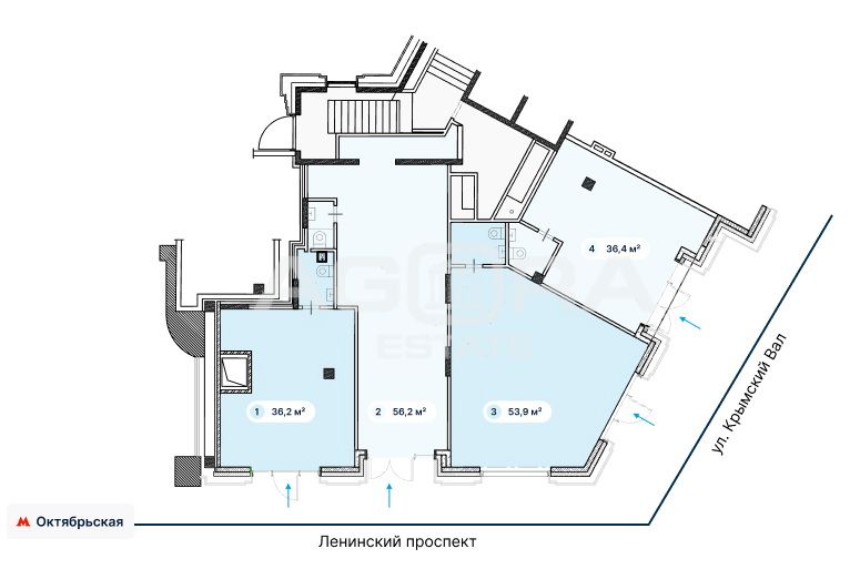
Предлагается помещение в ОСЗ, общая площадь 28.9 м2. Вход отдельный. 1 этаж. Высота потолков - 1 этаж: до 3,40 м. Коммуникации центральные, выделенная электрическая мощность, предоставляется по запросу ГВС/ХВС, ИТП, Отопление ИТП , Вентиляция и кондиционирование централизованное.
.
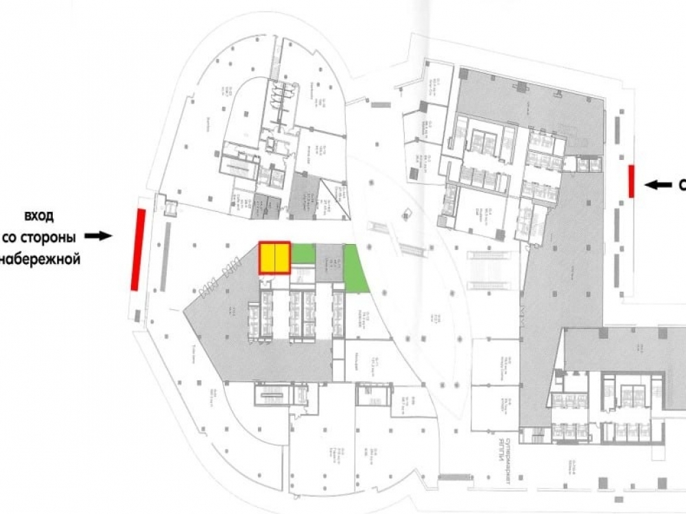
. Торговые помещения в отдельно стоящем здании на первой фасадной линии Садового кольца у станции метро «Павелецкая» напротив Павелецкого вокзала и ТРЦ «Павелецкая плаза». Рядом расположены 5 крупных Бизнес-центров. Сверинтенсивный пешеходный и автомобильный трафик.
Торговая недвижимость, Street Retail. 1 линия домов. Витрины. Место для рекламы. Проходное и проездное место.
Без комиссии.
Предлагается помещение в ОСЗ, общая площадь 28.9 м2. Вход отдельный. 1 этаж. Высота потолков - 1 этаж: до 3,40 м. Коммуникации центральные, выделенная электрическая мощность, предоставляется по запросу ГВС/ХВС, ИТП, Отопление ИТП , Вентиляция и кондиционирование централизованное.
.
. Торговые помещения в отдельно стоящем здании на первой фасадной линии Садового кольца у станции метро «Павелецкая» напротив Павелецкого вокзала и ТРЦ «Павелецкая плаза». Рядом расположены 5 крупных Бизнес-центров. Сверинтенсивный пешеходный и автомобильный трафик.
Торговая недвижимость, Street Retail. 1 линия домов. Витрины. Место для рекламы. Проходное и проездное место.
Без комиссии.
Расположение
г Москва, ул Бахрушина, д 36/14 стр 3
Павелецкая
—
3 мин
Павелецкая
—
3 мин
Серпуховская
—
12 мин
Технические характеристики
Новость дня
Все новости
Сегодня — 28 апреля, вторник / Москва
27-этажный бизнес-центр класса А в Коммунарке завершает процесс утверждения своего архитектурного дизайна
Сегодня — 28 апреля, вторник / Москва
Перефразированное название статьи: "Открытие первого флагманского магазина Lumique в «Авиапарке»"
Сегодня — 28 апреля, вторник / Москва
"Подольская фабрика офсетной печати выставляет на приватизацию 49% своих акций"
Сегодня — 28 апреля, вторник / Москва
Самострои в ЮВАО: площадь почти 4 тыс. кв. м за первый квартал
Сегодня — 28 апреля, вторник / Москва
Иск на 11,7 млрд рублей подан банком «Санкт-Петербург» к структуре «Гранели»
Сегодня — 28 апреля, вторник / Москва
"«Яндекс Фабрика» запускает цепь офлайн-магазинов в Москве"
Сегодня — 28 апреля, вторник / Москва
Детская сеть магазинов "Кораблик" столкнулась с финансовыми трудностями
Сегодня — 28 апреля, вторник / Москва
Снижение загрузки премиум отелей Москвы в первом квартале до 69,4%
Сегодня — 28 апреля, вторник / Крым
"Продается комплекс солнечных электростанций на полуострове Крым"
Вчера — 27 апреля, понедельник / Москва
Гастропространство «НеДетский» на 630 посадочных мест открылось в Центральном детском магазине на Лубянке.
Вчера — 27 апреля, понедельник / Москва
"FORMA завершает продажу всех офисных помещений в бизнес-центре «ЛЕЙКС»"
Вчера — 27 апреля, понедельник / Москва
"Прогноз: восстановление офисного рынка Москвы ожидается к 2028 году"
Вчера — 27 апреля, понедельник / Москва
Проект строительства промышленного парка с двумя зданиями на востоке Москвы.
Вчера — 27 апреля, понедельник / Москва
Бизнес-центр площадью 22,7 тыс. кв. м открылся в Нагатинской пойме.
Вчера — 27 апреля, понедельник / Самарская
Недостроенный птицеводческий комплекс "Евробиотех" в Самарской области ищет покупателя
Вчера — 27 апреля, понедельник / Москва
"Планируется строительство восьмиэтажной автостоянки с коммерческими помещениями на 465 машиномест в Новой Москве"
Вчера — 27 апреля, понедельник / Москва
"«Монарх» приобрел участок площадью 1,36 га на территории бывшего Карачаровского механического завода"
Вчера — 27 апреля, понедельник / Москва
"Производство растительного молока от Сварщицы Екатерины"
Вчера — 27 апреля, понедельник / Москва
"Будущее магазинов Gate 31 под угрозой из-за финансовых трудностей"
Вчера — 27 апреля, понедельник / Воронежская
Название статьи: "Открытие клубов Spirit Fitness площадью не менее 1,6 тыс. кв. м в Воронеже и Липецке"