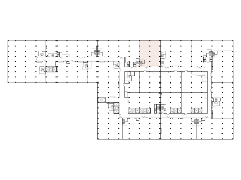
Купить склад 708 м²
ID 1038009
Цена
125 787 021 ₽
Ставка
177 665 ₽ / м²
Площадь
708 м²
Класс
A
Этаж
5 из 8
ИФНС
7733
застройщик
г Москва, ул Свободы, д 35
На карте
Планерная
—
25 мин
Сходненская
—
22 мин
Тушинская
—
21 мин
Спартак
—
23 мин
Тушинская
—
21 мин
Описание
Цена указана с учётом скидки.
Level work Свободы — производства и склады от 200 м² внутри МКАД на территории СЗАО Москвы. До станции метро «Сходненская» 5 мин. езды, до станции «Тушинская» — 7 мин.
Продуманное инженерное оснащение: спринклерная система пожаротушения и дымоудаления, электрическая мощность 120 Вт/м2 с возможностью увеличения, общее электроснабжение на проект — 22 МВт естественная инсоляция и проветривание помещений, приточно-вытяжная вентиляция, кратность воздухообмена — 1 с возможностью увеличения.
Всё готово для старта производства: техподдержка и доступ в комплекс 24/7, профессиональная управляющая компания, авизация и бронирование доков и погрузчиков.
Предусмотрены помещения разных площадей, высота потолков до 8 м, нагрузка на пол до 5 т/м².
Объект оснащён 28 погрузочно-разгрузочными доками, 19 промышленными лифтами с грузоподъёмностью от 5 до 10 тонн, 12 пассажирскими лифтами и паркингом на 300+ машино-мест.
Развитая инфраструктура включает, столовую, шоурумы, гибкие офисы и переговорные.
В проекте мы предусмотрели комфортную зону ожидания для водителей.
Level work Свободы создаёт универсальную среду как для высокотехнологичных производств, так и для фармацевтики, электроники и тяжёлой промышленности.
Агентская комиссия 3%.
Level work Свободы — производства и склады от 200 м² внутри МКАД на территории СЗАО Москвы. До станции метро «Сходненская» 5 мин. езды, до станции «Тушинская» — 7 мин.
Продуманное инженерное оснащение: спринклерная система пожаротушения и дымоудаления, электрическая мощность 120 Вт/м2 с возможностью увеличения, общее электроснабжение на проект — 22 МВт естественная инсоляция и проветривание помещений, приточно-вытяжная вентиляция, кратность воздухообмена — 1 с возможностью увеличения.
Всё готово для старта производства: техподдержка и доступ в комплекс 24/7, профессиональная управляющая компания, авизация и бронирование доков и погрузчиков.
Предусмотрены помещения разных площадей, высота потолков до 8 м, нагрузка на пол до 5 т/м².
Объект оснащён 28 погрузочно-разгрузочными доками, 19 промышленными лифтами с грузоподъёмностью от 5 до 10 тонн, 12 пассажирскими лифтами и паркингом на 300+ машино-мест.
Развитая инфраструктура включает, столовую, шоурумы, гибкие офисы и переговорные.
В проекте мы предусмотрели комфортную зону ожидания для водителей.
Level work Свободы создаёт универсальную среду как для высокотехнологичных производств, так и для фармацевтики, электроники и тяжёлой промышленности.
Агентская комиссия 3%.
Расположение
г Москва, ул Свободы, д 35
Планерная
—
25 мин
Сходненская
—
22 мин
Тушинская
—
21 мин
Спартак
—
23 мин
Тушинская
—
21 мин
Технические характеристики
Параметры
Инженерия
пожарная сигнализация, лифт
Статус владельца объявления
застройщик
Класс
a
Новость дня
Расширение возможностей для B2B-клиентов: Avito вводит новые услуги для строительства складов
На платформе Авито теперь доступна категория "Коммерческое строительство" в сегменте услуг, предлагающая широкий выбор специализированных работ и возведение объектов "под ключ" для бизнеса, что упрощает поиск подрядчиков и субподрядчиков для коммерческих проектов.
Все новости
30 апреля, четверг / Москва
"Бумеранг Капитал" увеличил свою долю в сети кафе-пекарен "Цех 85" до 50%
30 апреля, четверг / Ставропольский
В Кисловодске начался проект строительства инвестиционного отеля "Реликт"
30 апреля, четверг / Москва
Ресторан «Долина 5165» и магазин Sokolov теперь доступны посетителям ТРЦ Avenue Sever
30 апреля, четверг / Москва
"Новый флагманский магазин под названием «Флаувау» открыл свои двери на Мясницкой улице"
30 апреля, четверг / Москва
"Уровень вакансии на складах в Московском регионе достиг 5,4% из-за увеличения предложений по субаренде"
30 апреля, четверг / Москва
"Прогнозируется незначительный прирост числа туристов в первом квартале 2026 года - всего 2,8%"
30 апреля, четверг / Москва
Компания "Ориентир" планирует вложить до 150 млрд рублей в расширение бизнеса и развитие новых секторов.
30 апреля, четверг / Москва
"Завершено строительство наземной парковки на 400 автомобильных мест в парке «Ривер Парк Коломенское»"
30 апреля, четверг / Москва
Скорось открытия новых магазинов «Лэтуаль» снизится - 150 точек закроются к 2026 году.
30 апреля, четверг / Москва
Смайл-бар сети "Белая точка" теперь доступен посетителям ТЦ "Левел Причальный"
29 апреля, среда / Москва
Московский цех открыл производство 3D-принтеров для металлической печати.
29 апреля, среда / Москва
БМ-банк завершил продажу большей части площадей в ТЦ «Весна» на Новом Арбате.
29 апреля, среда / Москва
Перефразированное название: "Сеть магазинов 'Жизньмарт' возобновляет свою деятельность в Челябинске"
29 апреля, среда / Санкт-Петербург
Сервисный офис «Практик» начал свою работу на Октябрьской набережной в Санкт-Петербурге.
29 апреля, среда / Санкт-Петербург
Строительство складских помещений в Санкт-Петербурге и Ленинградской области увеличилось в 2,5 раза.
29 апреля, среда / Москва
Москва увеличила объем строительства в рамках программы МПТ до 9,5 миллионов квадратных метров
29 апреля, среда / Санкт-Петербург
Соседский центр "ЖИВИ Клуб" открыл свои двери в Новоселье
29 апреля, среда / Москва
"Завершено строительство пятиэтажной наземной парковки в районе Нагатинский Затон"
29 апреля, среда / Санкт-Петербург
Рекордный уровень строительства складов зафиксирован в Санкт-Петербурге и Ленинградской области
29 апреля, среда / Москва
Аренда складов в Москве снизилась на 25%