Главная
Аренда торговых помещений в Москве и МО
Торговое помещение 410 м² в ЖК Nagatino i-Land (Нагатино Ай-Ленд)
Снять торговое помещение 410 м² в ЖК Nagatino i-Land (Нагатино Ай-Ленд)
Описание
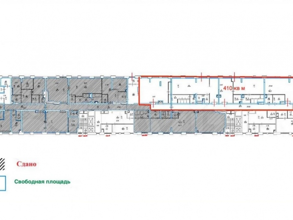
Предложение в аренду № 61723.
Сдаётся в аренду коммерческое помещение в активной бизнес-локации в центре Москвы в шаговой доступности от метро Технопарк
. ЖК Нагатино Айленд, 6350 квартир в окружении, с уникальной технологией!
. ЖК Нагатино i-land, проспект Лихачёва 20, центральный корпус ЖК, расположен в зоне активного пешеходного и автомобильного трафика
. Площадь правильной прямоугольной формы, центральный вход со стороны
. Лихачева, свободна на сегодня общая площадь 410 кв м, с отдельным входом с
. проспекта Лихачёва и 3-мя дополнительными входными группами, возможно
. деление площади от 220 кв м
. Помещение расположено на 1-ой линии, в прямой видимости от станции метро
. Технопарк,пешком 7 минут, на пересечении прогулочного бульвара к набережной и проспекта Лихачёва
. Помещение функциональное, без лишних перегородок
. Напротив помещения расположена гостевая парковка
. Помещение имеет витражное остекление
. Помещение идеально подходит под стоматологию, косметологию, танцы, фитнес, растяжку, йогу, пекарню, салон красоты и другие виды коммерческой
. деятельности
. Электрическая мощность 100 кВт, 3 отдельных технологических вытяжки помещений с такой технологией в локации нет.
Торговая недвижимость, Street Retail. 1 линия домов. Ресторанная вытяжка. Витрины. Место для рекламы. Проходное и проездное место.
Без комиссии.
Сдаётся в аренду коммерческое помещение в активной бизнес-локации в центре Москвы в шаговой доступности от метро Технопарк
. ЖК Нагатино Айленд, 6350 квартир в окружении, с уникальной технологией!
. ЖК Нагатино i-land, проспект Лихачёва 20, центральный корпус ЖК, расположен в зоне активного пешеходного и автомобильного трафика
. Площадь правильной прямоугольной формы, центральный вход со стороны
. Лихачева, свободна на сегодня общая площадь 410 кв м, с отдельным входом с
. проспекта Лихачёва и 3-мя дополнительными входными группами, возможно
. деление площади от 220 кв м
. Помещение расположено на 1-ой линии, в прямой видимости от станции метро
. Технопарк,пешком 7 минут, на пересечении прогулочного бульвара к набережной и проспекта Лихачёва
. Помещение функциональное, без лишних перегородок
. Напротив помещения расположена гостевая парковка
. Помещение имеет витражное остекление
. Помещение идеально подходит под стоматологию, косметологию, танцы, фитнес, растяжку, йогу, пекарню, салон красоты и другие виды коммерческой
. деятельности
. Электрическая мощность 100 кВт, 3 отдельных технологических вытяжки помещений с такой технологией в локации нет.
Торговая недвижимость, Street Retail. 1 линия домов. Ресторанная вытяжка. Витрины. Место для рекламы. Проходное и проездное место.
Без комиссии.
Расположение
г Москва, пр-кт Лихачёва, д 20
Технопарк
—
10 мин
Коломенская
—
16 мин
ЗИЛ
—
16 мин
Технические характеристики
Свободные помещения в ЖК Nagatino i-Land (Нагатино Ай-Ленд)
Новость дня
Все новости
Вчера — 28 апреля, вторник / Москва
"Появление двух новых брендов на российском рынке в начале 2026 года"
Вчера — 28 апреля, вторник / Москва
27-этажный бизнес-центр класса А в Коммунарке завершает процесс утверждения своего архитектурного дизайна
Вчера — 28 апреля, вторник / Москва
Перефразированное название статьи: "Открытие первого флагманского магазина Lumique в «Авиапарке»"
Вчера — 28 апреля, вторник / Москва
"Подольская фабрика офсетной печати выставляет на приватизацию 49% своих акций"
Вчера — 28 апреля, вторник / Москва
Самострои в ЮВАО: площадь почти 4 тыс. кв. м за первый квартал
Вчера — 28 апреля, вторник / Москва
Иск на 11,7 млрд рублей подан банком «Санкт-Петербург» к структуре «Гранели»
Вчера — 28 апреля, вторник / Москва
"«Яндекс Фабрика» запускает цепь офлайн-магазинов в Москве"
Вчера — 28 апреля, вторник / Москва
Детская сеть магазинов "Кораблик" столкнулась с финансовыми трудностями
Вчера — 28 апреля, вторник / Москва
Снижение загрузки премиум отелей Москвы в первом квартале до 69,4%
Вчера — 28 апреля, вторник / Крым
"Продается комплекс солнечных электростанций на полуострове Крым"
27 апреля, понедельник / Москва
Гастропространство «НеДетский» на 630 посадочных мест открылось в Центральном детском магазине на Лубянке.
27 апреля, понедельник / Москва
"FORMA завершает продажу всех офисных помещений в бизнес-центре «ЛЕЙКС»"
27 апреля, понедельник / Москва
"Прогноз: восстановление офисного рынка Москвы ожидается к 2028 году"
27 апреля, понедельник / Москва
Проект строительства промышленного парка с двумя зданиями на востоке Москвы.
27 апреля, понедельник / Москва
Бизнес-центр площадью 22,7 тыс. кв. м открылся в Нагатинской пойме.
27 апреля, понедельник / Самарская
Недостроенный птицеводческий комплекс "Евробиотех" в Самарской области ищет покупателя
27 апреля, понедельник / Москва
"Планируется строительство восьмиэтажной автостоянки с коммерческими помещениями на 465 машиномест в Новой Москве"
27 апреля, понедельник / Москва
"«Монарх» приобрел участок площадью 1,36 га на территории бывшего Карачаровского механического завода"
27 апреля, понедельник / Москва
"Производство растительного молока от Сварщицы Екатерины"
27 апреля, понедельник / Москва
"Будущее магазинов Gate 31 под угрозой из-за финансовых трудностей"